フュージョナル菊川(東京都墨田区 / 菊川駅) の賃貸物件情報
募集中のお部屋が1件あります


1/1
1/1
- 建物
- マンション (鉄筋コンクリート)
- 築年数
- 築11年 (2015年)
- 駐車場
- 無
- 交通
- 都営新宿線 / 菊川駅徒歩7分
- 総武線 / 両国駅徒歩18分
- 住所
- 東京都墨田区立川3丁目18-6
- コンビニエンスストア 140m
- スーパーマーケット 299m
- 総合病院 896m
- ドラッグストア 383m
- ホワイト急便立川4丁目店 293m
その他
- 駐車/駐輪
- 無
- 入居時期
- 2026年4月上旬
- 損保
- 住宅保険: 要
- 保証代行人
- 加入要 費用: 初回:月額総家賃の50%~
- その他費用
- -
- 情報
情報登録日:2026/1/15
情報更新日:2026/2/10
次回更新予定日:2026/2/17
- 備考
- 現況: 居住中 更新料: 新賃料の1.0ヶ月分 契約期間: 2年 総戸数: 34戸 バルコニー面積: 6.44㎡ 自社管理番号: B75097R215586
この建物からのPick Up
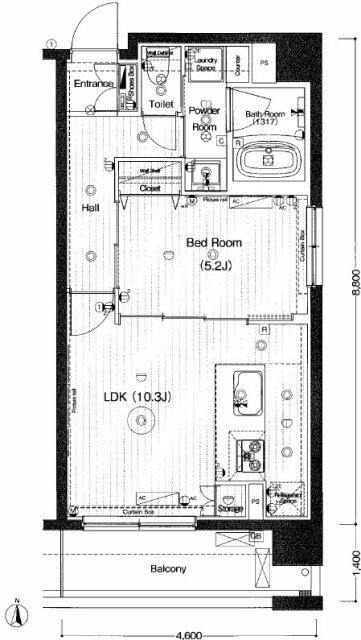
1LDK/3階
1/2
1/2
18 万円 / 管理費10,000円
- 敷金
- 18万円
- 保証金
- なし
- 礼金
- 18万円
- 広さ
- 40.23㎡
- 階数
- 3階 / 7階建
- 間取り
- 1LDK (LDK10.3帖 / 洋5.2帖)
- 向き
- 南
無料で10秒! カンタンお問い合わせ

フュージョナル菊川
敷
18万円礼
18万円特徴
バス・トイレ別
2階以上
エアコン付き
ペット相談可
駐車場あり
室内洗濯機置場
オートロック
洗面所独立
- 入居条件
- 保証人不要、初期費用カード決済可、ペット不可、二人入居可
- バス・トイレ
- 専用バス、浴室乾燥機、バストイレ別、専用トイレ、温水洗浄便座、洗面所独立
- キッチン
- カウンターキッチン、システムキッチン、ガスコンロ対応、3口以上コンロ
- セキュリティ
- オートロック、防犯カメラ
- 室内設備
- BS、クロゼット、CATV、ネット使用料不要、エアコン、インターネット対応、室内洗濯置、フローリング、CS、シューズボックス
- 部屋の特徴
- 角住戸、バルコニー、二階以上
- 共用部
- エレベーター、宅配ボックス
- その他の特徴
- 下水、分譲賃貸、公営水道、家賃保証付き、都市ガス
無料で10秒! カンタンお問い合わせ

フュージョナル菊川
敷
18万円礼
18万円おすすめ物件 (10件)
賃貸マンション
ビレッジハウス井崎1号棟
東海道本線 / 掛川駅 バス16分 井崎下車 徒歩2分
築45年 / 5階建
静岡県掛川市高瀬30-4
3.59万円 / 管理費なし
敷
無料礼
無料3DK / 53.96㎡ / 3階
賃貸マンション
ビレッジハウス城山下2号棟
東海道本線 / 菊川駅 バス15分 川中公民館下車 徒歩7分
築33年 / 5階建
静岡県菊川市川上1271-4
3.37万円 / 管理費なし
敷
無料礼
無料3DK / 53.08㎡ / 4階
賃貸マンション
ビレッジハウス御前崎1号棟
東海道本線 / 菊川駅 バス54分 白浜下下車 徒歩5分
築35年 / 5階建
静岡県御前崎市白羽1108-1
3.52万円 / 管理費なし
敷
無料礼
無料3DK / 53.08㎡ / 1階
賃貸マンション
ファーストシーン両国レジデンス

都営大江戸線 / 両国駅 徒歩7分
築20年 / 9階建
東京都墨田区横網2丁目6-7

17万円 / 管理費15,000円
敷
17万円礼
17万円1LDK / 50.43㎡ / 8階
賃貸マンション
墨田区 7階建 1987年築

都営大江戸線 / 両国駅 徒歩8分
築39年 / 7階建
東京都墨田区亀沢2丁目4-10

13.5万円 / 管理費13,000円
敷
13.5万円礼
13.5万円2K / 50.06㎡ / 6階
賃貸マンション
CASSIA錦糸町SOUTHCOURT
)
都営新宿線 / 菊川駅 徒歩12分
築20年 / 10階建
東京都墨田区江東橋1丁目1-6
)
17.7万円 / 管理費10,000円
敷
無料礼
17.7万円1LDK / 47.12㎡ / 5階
賃貸マンション
江東橋アパートメント
)
都営新宿線 / 菊川駅 徒歩5分
築14年 / 3階建
東京都墨田区江東橋5丁目1-7
)
15.5万円 / 管理費4,000円
敷
15.5万円礼
15.5万円1LDK / 46.03㎡ / 2階
賃貸マンション
M’s清澄白河

都営新宿線 / 菊川駅 徒歩8分
築12年 / 4階建
東京都江東区森下3丁目

17.7万円 / 管理費7,000円
敷
17.7万円礼
17.7万円1LDK / 45.84㎡ / 4階
賃貸マンション
ビレッジハウス井崎1号棟
東海道本線 / 掛川駅 バス16分 井崎下車 徒歩2分
築45年 / 5階建
静岡県掛川市高瀬30-4
3.59万円 / 管理費なし
敷
無料礼
無料3DK / 53.96㎡ / 3階
賃貸マンション
ビレッジハウス城山下2号棟
東海道本線 / 菊川駅 バス15分 川中公民館下車 徒歩7分
築33年 / 5階建
静岡県菊川市川上1271-4
3.37万円 / 管理費なし
敷
無料礼
無料3DK / 53.08㎡ / 4階
賃貸マンション
ビレッジハウス御前崎1号棟
東海道本線 / 菊川駅 バス54分 白浜下下車 徒歩5分
築35年 / 5階建
静岡県御前崎市白羽1108-1
3.52万円 / 管理費なし
敷
無料礼
無料3DK / 53.08㎡ / 1階
賃貸マンション
ファーストシーン両国レジデンス

都営大江戸線 / 両国駅 徒歩7分
築20年 / 9階建
東京都墨田区横網2丁目6-7

17万円 / 管理費15,000円
敷
17万円礼
17万円1LDK / 50.43㎡ / 8階
賃貸マンション
墨田区 7階建 1987年築

都営大江戸線 / 両国駅 徒歩8分
築39年 / 7階建
東京都墨田区亀沢2丁目4-10

13.5万円 / 管理費13,000円
敷
13.5万円礼
13.5万円2K / 50.06㎡ / 6階
賃貸マンション
CASSIA錦糸町SOUTHCOURT
)
都営新宿線 / 菊川駅 徒歩12分
築20年 / 10階建
東京都墨田区江東橋1丁目1-6
)
17.7万円 / 管理費10,000円
敷
無料礼
17.7万円1LDK / 47.12㎡ / 5階
賃貸マンション
江東橋アパートメント
)
都営新宿線 / 菊川駅 徒歩5分
築14年 / 3階建
東京都墨田区江東橋5丁目1-7
)
15.5万円 / 管理費4,000円
敷
15.5万円礼
15.5万円1LDK / 46.03㎡ / 2階
賃貸マンション
M’s清澄白河

都営新宿線 / 菊川駅 徒歩8分
築12年 / 4階建
東京都江東区森下3丁目

17.7万円 / 管理費7,000円
敷
17.7万円礼
17.7万円1LDK / 45.84㎡ / 4階



