パレスシンシア江東橋1K/10階(東京都墨田区 / 錦糸町駅)の賃貸
1/24
1/24
13.6万円
初期費用を知りたい管理費15,000円
家賃割引サービス適用で最大2年間4.8万円割引
- 敷金
- 無料
- 保証金
- なし
- 礼金
- 無料
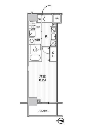
- 広さ
- 27.31㎡
- 階数
- 10階 / 14階建
- 間取り
- 1K
- 建物
- マンション (鉄筋コンクリート)
- 築年数
- 新築
- 向き
- 南
- 交通
- 総武本線 / 錦糸町駅徒歩6分
- 総武本線 / 錦糸町駅徒歩6分
- 住所
- 東京都墨田区江東橋4丁目13-11
コンビニエンスストア 130m
スーパーマーケット 620m
ドラッグストア 880m
アルカキット錦糸町 810m
無料で10秒! カンタンお問い合わせ
パレスシンシア江東橋
敷
無料礼
無料特徴
バス・トイレ別
2階以上
エアコン付き
ペット相談可
駐車場あり
室内洗濯機置場
オートロック
洗面所独立
- 入居条件
- 保証人不要、初期費用カード決済可、即入居可最新の空室状況が知りたい
- バス・トイレ
- 給湯、専用バス、オートバス、追焚機能浴室、浴室乾燥機、シャワー、専用トイレ、温水洗浄便座、バストイレ別、洗面所独立
- キッチン
- ガスコンロ対応、2口コンロ、システムキッチン
- セキュリティ
- オートロック、防犯カメラ
- 室内設備
- BS、CS、インターネット対応、エアコン、冷房、クロゼット、全居室収納、シューズボックス、室内洗濯置、フローリングお部屋の詳しい情報を知りたい
- 部屋の特徴
- バルコニー、角住戸、二階以上写真を送ってほしい
- 共用部
- エレベーター、宅配ボックス、駐輪場、バイク置場
- その他の特徴
- 定期借家、都市ガス、外壁タイル張り
無料で10秒! カンタンお問い合わせ
パレスシンシア江東橋
敷
無料礼
無料同じ建物で掲載中の物件 (21件)
不動産会社からのコメント
お部屋探しはタウンハウジング門前仲町店へ!お部屋探しはタウンハウジング秋葉原店へ!
お一人お一人様に合ったお部屋をお探し致します。分からない事は何でもご相談下さいませ!
その他
- 駐車/駐輪
- 要確認 / あり駐車可能な車種や台数を知りたい
- 入居時期
- 損保
- 住宅保険: 要
- 保証人代行
- 加入要 会社名: その他 費用: 0.50ヶ月 初回保証料:総賃料の50% 月額保証料:総賃料の1%/株式会社東京アパートメント保証
- その他費用
初期費用を知りたい契約事務手数料:11,000円
- 情報
情報登録日:2025/9/26
情報更新日:2025/10/28
次回更新予定日:2025/12/16
- 備考
- 現況: 空家 状態: 未入居 更新料: 新賃料の1.0ヶ月分 契約期間: 2年 ※定期借家 総戸数: 49戸
取扱い会社
- 取扱い会社
- 株式会社タウンハウジング 門前仲町店条件が近い物件も紹介してほしい
- 免許番号
- 国土交通大臣(1)9926号
- 取引態様
- 仲介
- 所在地
- 東京都江東区門前仲町1丁目 6-14 グリーンキャピタル門前仲町103号室
- 電話番号
- 03-3630-7722
- 所属団体名
- 東京都宅地建物取引業協会
おすすめ物件 (20件)
賃貸マンション
ステージグランデ錦糸町Ⅱ

総武線 / 錦糸町駅 徒歩10分
築4年 / 14階建
東京都墨田区緑4丁目27-2

12.9万円 / 管理費10,000円
敷
無料礼
無料1K / 25.81㎡ / 14階
賃貸マンション
パークアクシス錦糸町レジデンス

東京メトロ半蔵門線 / 錦糸町駅 徒歩8分
築12年 / 14階建
東京都墨田区江東橋1丁目2-6

12万円 / 管理費10,000円
敷
12万円礼
12万円1K / 25.6㎡ / 14階
賃貸マンション
PREMIUM CUBE 両国DEUX

総武本線 / 錦糸町駅 徒歩13分
築4年 / 12階建
東京都墨田区亀沢4丁目25-2

11.9万円 / 管理費15,000円
敷
11.9万円礼
11.9万円2K / 27.54㎡ / 6階
賃貸マンション
墨田区 11階建 2021年築

東京メトロ半蔵門線 / 錦糸町駅 徒歩12分
築4年 / 11階建
東京都墨田区緑3丁目11-8

12.1万円 / 管理費12,000円
敷
無料礼
無料1K / 25.14㎡ / 6階
賃貸マンション
パークアクシス錦糸公園

東京メトロ半蔵門線 / 錦糸町駅 徒歩5分
築2年 / 14階建
東京都墨田区錦糸4丁目10-4

14.6万円 / 管理費15,000円
敷
14.6万円礼
14.6万円1DK / 29.26㎡ / 2階
賃貸マンション
クレヴィアリグゼ錦糸町

総武線 / 錦糸町駅 徒歩6分
築2年 / 15階建
東京都墨田区江東橋1丁目10-9

13.4万円 / 管理費12,000円
敷
13.4万円礼
13.4万円1LDK / 25.33㎡ / 5階
賃貸マンション
アスール両国

東京メトロ半蔵門線 / 錦糸町駅 徒歩15分
築7年 / 13階建
東京都墨田区緑3丁目14-10

12.9万円 / 管理費10,000円
敷
無料礼
無料ワンルーム / 29.13㎡ / 3階
賃貸マンション
レジディア錦糸町Ⅱ

総武線 / 錦糸町駅 徒歩8分
築17年 / 14階建
東京都墨田区緑4丁目24-5

12.5万円 / 管理費10,000円
敷
無料礼
無料ワンルーム / 23.86㎡ / 6階
賃貸マンション
S-RESIDENCE菊川rivie

東京メトロ半蔵門線 / 錦糸町駅 徒歩14分
築3年 / 9階建
東京都墨田区緑3丁目1-13

12.9万円 / 管理費13,000円
敷
無料礼
無料1DK / 29.66㎡ / 4階
賃貸マンション
パークアクシス錦糸町・親水公園

東京メトロ半蔵門線 / 錦糸町駅 徒歩12分
築13年 / 7階建
東京都墨田区亀沢4丁目22-8

11.7万円 / 管理費10,000円
敷
11.7万円礼
11.7万円1K / 26.3㎡ / 6階
賃貸マンション
シーズンフラッツ錦糸町WEST

総武線 / 錦糸町駅 徒歩9分
築3年 / 9階建
東京都墨田区緑4丁目34-8

13.5万円 / 管理費10,000円
敷
無料礼
無料1DK / 28.93㎡ / 2階
賃貸マンション
オーキッドレジデンス住吉

総武線 / 錦糸町駅 徒歩11分
築5年 / 8階建
東京都江東区毛利1丁目1-4

13.6万円 / 管理費10,000円
敷
13.6万円礼
無料1DK / 25.53㎡ / 5階
賃貸マンション
プレール・ドゥーク菊川

東京メトロ半蔵門線 / 錦糸町駅 徒歩13分
築2年 / 6階建
東京都墨田区立川4丁目13-13

11.8万円 / 管理費20,000円
敷
無料礼
無料1K / 25.8㎡ / 4階
賃貸マンション
ベルファース錦糸町South

総武線 / 錦糸町駅 徒歩8分
築2年 / 14階建
東京都墨田区江東橋1丁目5-8

13.5万円 / 管理費10,000円
敷
13.5万円礼
無料1DK / 25.56㎡ / 3階
賃貸マンション
ジェノヴィア両国Ⅵグリーンヴェール

総武線 / 錦糸町駅 徒歩12分
築3年 / 12階建
東京都墨田区緑3丁目17-11

12.2万円 / 管理費15,000円
敷
無料礼
無料ワンルーム / 26.53㎡ / 6階
賃貸マンション
パークキューブ亀戸

東京メトロ半蔵門線 / 錦糸町駅 徒歩15分
築18年 / 13階建
東京都江東区亀戸2丁目36-9

12.2万円 / 管理費8,000円
敷
12.2万円礼
12.2万円ワンルーム / 28.74㎡ / 12階
賃貸マンション
アーバネックス深川住吉Ⅲ

総武線 / 錦糸町駅 徒歩13分
築4年 / 14階建
東京都江東区住吉2丁目24-2

13.5万円 / 管理費10,000円
敷
13.5万円礼
無料1DK / 25.16㎡ / 10階
賃貸マンション
ステージグランデ錦糸町Ⅱ

総武線 / 錦糸町駅 徒歩10分
築4年 / 14階建
東京都墨田区緑4丁目27-2

12.9万円 / 管理費10,000円
敷
無料礼
無料1K / 25.81㎡ / 14階
賃貸マンション
パークアクシス錦糸町レジデンス

東京メトロ半蔵門線 / 錦糸町駅 徒歩8分
築12年 / 14階建
東京都墨田区江東橋1丁目2-6

12万円 / 管理費10,000円
敷
12万円礼
12万円1K / 25.6㎡ / 14階
賃貸マンション
PREMIUM CUBE 両国DEUX

総武本線 / 錦糸町駅 徒歩13分
築4年 / 12階建
東京都墨田区亀沢4丁目25-2

11.9万円 / 管理費15,000円
敷
11.9万円礼
11.9万円2K / 27.54㎡ / 6階
賃貸マンション
墨田区 11階建 2021年築

東京メトロ半蔵門線 / 錦糸町駅 徒歩12分
築4年 / 11階建
東京都墨田区緑3丁目11-8

12.1万円 / 管理費12,000円
敷
無料礼
無料1K / 25.14㎡ / 6階
賃貸マンション
パークアクシス錦糸公園

東京メトロ半蔵門線 / 錦糸町駅 徒歩5分
築2年 / 14階建
東京都墨田区錦糸4丁目10-4

14.6万円 / 管理費15,000円
敷
14.6万円礼
14.6万円1DK / 29.26㎡ / 2階
賃貸マンション
クレヴィアリグゼ錦糸町

総武線 / 錦糸町駅 徒歩6分
築2年 / 15階建
東京都墨田区江東橋1丁目10-9

13.4万円 / 管理費12,000円
敷
13.4万円礼
13.4万円1LDK / 25.33㎡ / 5階
賃貸マンション
アスール両国

東京メトロ半蔵門線 / 錦糸町駅 徒歩15分
築7年 / 13階建
東京都墨田区緑3丁目14-10

12.9万円 / 管理費10,000円
敷
無料礼
無料ワンルーム / 29.13㎡ / 3階
賃貸マンション
レジディア錦糸町Ⅱ

総武線 / 錦糸町駅 徒歩8分
築17年 / 14階建
東京都墨田区緑4丁目24-5

12.5万円 / 管理費10,000円
敷
無料礼
無料ワンルーム / 23.86㎡ / 6階
賃貸マンション
S-RESIDENCE菊川rivie

東京メトロ半蔵門線 / 錦糸町駅 徒歩14分
築3年 / 9階建
東京都墨田区緑3丁目1-13

12.9万円 / 管理費13,000円
敷
無料礼
無料1DK / 29.66㎡ / 4階
賃貸マンション
パークアクシス錦糸町・親水公園

東京メトロ半蔵門線 / 錦糸町駅 徒歩12分
築13年 / 7階建
東京都墨田区亀沢4丁目22-8

11.7万円 / 管理費10,000円
敷
11.7万円礼
11.7万円1K / 26.3㎡ / 6階
賃貸マンション
シーズンフラッツ錦糸町WEST

総武線 / 錦糸町駅 徒歩9分
築3年 / 9階建
東京都墨田区緑4丁目34-8

13.5万円 / 管理費10,000円
敷
無料礼
無料1DK / 28.93㎡ / 2階
賃貸マンション
オーキッドレジデンス住吉

総武線 / 錦糸町駅 徒歩11分
築5年 / 8階建
東京都江東区毛利1丁目1-4

13.6万円 / 管理費10,000円
敷
13.6万円礼
無料1DK / 25.53㎡ / 5階
賃貸マンション
プレール・ドゥーク菊川

東京メトロ半蔵門線 / 錦糸町駅 徒歩13分
築2年 / 6階建
東京都墨田区立川4丁目13-13

11.8万円 / 管理費20,000円
敷
無料礼
無料1K / 25.8㎡ / 4階
賃貸マンション
ベルファース錦糸町South

総武線 / 錦糸町駅 徒歩8分
築2年 / 14階建
東京都墨田区江東橋1丁目5-8

13.5万円 / 管理費10,000円
敷
13.5万円礼
無料1DK / 25.56㎡ / 3階
賃貸マンション
ジェノヴィア両国Ⅵグリーンヴェール

総武線 / 錦糸町駅 徒歩12分
築3年 / 12階建
東京都墨田区緑3丁目17-11

12.2万円 / 管理費15,000円
敷
無料礼
無料ワンルーム / 26.53㎡ / 6階
賃貸マンション
パークキューブ亀戸

東京メトロ半蔵門線 / 錦糸町駅 徒歩15分
築18年 / 13階建
東京都江東区亀戸2丁目36-9

12.2万円 / 管理費8,000円
敷
12.2万円礼
12.2万円ワンルーム / 28.74㎡ / 12階
賃貸マンション
アーバネックス深川住吉Ⅲ

総武線 / 錦糸町駅 徒歩13分
築4年 / 14階建
東京都江東区住吉2丁目24-2

13.5万円 / 管理費10,000円
敷
13.5万円礼
無料1DK / 25.16㎡ / 10階
同じ最寄り駅 × 同じ特徴 で探す
同じ市区町村 × 同じ特徴 で探す




)
)






