ウィステリアコート正雀1K/1階/101(大阪府摂津市 / 正雀駅)の賃貸
1/28
1/28
7.2万円
初期費用を知りたい管理費7,000円
適用で最大2年間4.8万円割引
本物件のヘヤワリ適用可否については、不動産会社へご確認ください。
- 敷金
- 無料
- 保証金
- なし
- 礼金
- 7.2万円
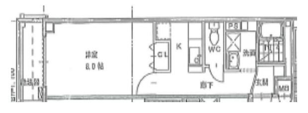
- 広さ
- 28.6㎡
- 階数
- 1階 / 3階建
- 間取り
- 1K
- 建物
- アパート (鉄骨)
- 築年数
- 築1年
- 向き
- 南
- 交通
- 阪急京都線 / 正雀駅徒歩9分
- 大阪モノレール本線 / 摂津駅徒歩10分
- 住所
- 大阪府摂津市正雀2丁目3-25
無料で10秒! カンタンお問い合わせ

ウィステリアコート正雀
敷
無料礼
7.2万円特徴
バス・トイレ別
2階以上
エアコン付き
ペット相談可
駐車場あり
室内洗濯機置場
オートロック
洗面所独立
- 入居条件
- ペット不可、保証人要、敷金不要、即入居可最新の空室状況が知りたい
- バス・トイレ
- 給湯、シャワー付洗面化粧台、温水洗浄便座、洗面所独立、専用バス、バストイレ別、シャワー
- キッチン
- システムキッチン、ガスコンロ対応、2口コンロ
- セキュリティ
- オートロック
- 室内設備
- CATV、クロゼット、シューズボックス、エアコン、室内洗濯置、フローリング、インターネット対応、ネット使用料不要お部屋の詳しい情報を知りたい
- 部屋の特徴
- 角住戸写真を送ってほしい
- 共用部
- 駐輪場
- その他の特徴
- 公営水道、都市ガス、下水
無料で10秒! カンタンお問い合わせ

ウィステリアコート正雀
敷
無料礼
7.2万円不動産会社からのコメント
正雀駅から徒歩10分、ネット無料の新築マンションです。設備も整っております。
その他
- 駐車/駐輪
- 空無 / あり駐車可能な車種や台数を知りたい
- 入居時期
- 損保
- 住宅保険: 要
- 保証人代行
- 加入要 会社名: K-net株式会社 費用: 初回契約時:40%、更新時:12,000円
- その他費用
初期費用を知りたい自転車ステッカー:220円
水道料:2,750円
室内清掃費用:38,500円
- 情報
情報登録日:2026/4/6
情報更新日:2026/5/24
次回更新予定日:2026/5/31
- 備考
- 現況: 空家 契約期間: 2年 管理人: 巡回 総戸数: 15戸 その他交通: 阪急京都本線摂津市駅 徒歩12分 自社管理番号: 14099299
取扱い会社
- 取扱い会社
- 株式会社潤拓 ハウスコムFC阪急茨木店条件が近い物件も紹介してほしい
- 免許番号
- 大阪府知事免許(2) 第60538号
- 取引態様
- 一般媒介
- 所在地
- 大阪府茨木市永代町6-19近藤ビル101号
- 電話番号
- 072-697-8288
- 所属団体名
- 全国宅地建物取引業保証協会
おすすめ物件 (20件)
賃貸アパート
La vie est belle

阪急京都線 / 正雀駅 徒歩21分
築5年 / 3階建
大阪府吹田市岸部北3丁目11-5

8万円 / 管理費5,800円
敷
無料礼
16万円1LDK / 34.23㎡ / 3階
賃貸マンション
パークナードフィット吹田健都

阪急京都線 / 正雀駅 徒歩18分
築6年 / 7階建
大阪府吹田市岸部新町

8万円 / 管理費9,000円
敷
1万円礼
16万円ワンルーム / 28.68㎡ / 7階
賃貸マンション
ファーストフィオーレ吹田ウインズテラス

阪急京都線 / 正雀駅 徒歩17分
新築 / 4階建
大阪府吹田市岸部中5丁目

7.83万円 / 管理費8,000円
敷
無料礼
7.83万円1DK / 26.1㎡ / 3階
賃貸マンション
摂津市 7階建 2007年築

阪急京都線 / 正雀駅 徒歩2分
築19年 / 7階建
大阪府摂津市正雀本町1丁目25番4号

7.3万円 / 管理費6,000円
敷
5万円礼
10万円1DK / 29.6㎡ / 4階
賃貸マンション
吹田市岸部南1丁目 9階建 2021年築

阪急京都線 / 正雀駅 徒歩3分
築5年 / 9階建
大阪府吹田市岸部南1丁目20-8

8.2万円 / 管理費8,000円
敷
5万円礼
20万円1DK / 28.64㎡ / 3階
賃貸アパート
LA・VIE-ESTBELIE

阪急京都線 / 正雀駅 徒歩20分
築4年 / 3階建
大阪府吹田市岸部北3丁目

7.9万円 / 管理費5,000円
敷
無料礼
15.8万円1LDK / 34.23㎡ / 2階
賃貸マンション
アンフィニⅩⅦマローネ

阪急京都線 / 正雀駅 徒歩3分
築5年 / 9階建
大阪府吹田市岸部南1丁目20-8

8.3万円 / 管理費8,000円
敷
10万円礼
30万円1DK / 28.64㎡ / 5階
賃貸アパート
ベルリッジ岸辺 B

阪急京都線 / 正雀駅 徒歩16分
築1年 / 3階建
大阪府吹田市岸部中3丁目26-21

8万円 / 管理費6,000円
敷
8万円礼
16万円1LDK / 35.97㎡ / 2階
賃貸マンション
吹田市 5階建 2023年築

阪急京都線 / 正雀駅 徒歩14分
築3年 / 5階建
大阪府吹田市岸部中3丁目

9.1万円 / 管理費10,000円
敷
無料礼
5.05万円1LDK / 30.54㎡ / 4階
賃貸マンション
センターポイント吉志部

阪急京都線 / 正雀駅 徒歩18分
築18年 / 5階建
大阪府吹田市岸部中3丁目

8.7万円 / 管理費10,000円
敷
無料礼
8.7万円1DK / 35.1㎡ / 1階
賃貸アパート
吹田市 3階建 2023年築

阪急京都線 / 正雀駅 徒歩13分
築3年 / 3階建
大阪府吹田市岸部中4丁目

8.7万円 / 管理費3,500円
敷
無料礼
10万円1LDK / 35.6㎡ / 2階
賃貸アパート
La vie est belle

阪急京都線 / 正雀駅 徒歩21分
築5年 / 3階建
大阪府吹田市岸部北3丁目11-5

8万円 / 管理費5,800円
敷
無料礼
16万円1LDK / 34.23㎡ / 3階
賃貸マンション
パークナードフィット吹田健都

阪急京都線 / 正雀駅 徒歩18分
築6年 / 7階建
大阪府吹田市岸部新町

8万円 / 管理費9,000円
敷
1万円礼
16万円ワンルーム / 28.68㎡ / 7階
賃貸マンション
ファーストフィオーレ吹田ウインズテラス

阪急京都線 / 正雀駅 徒歩17分
新築 / 4階建
大阪府吹田市岸部中5丁目

7.83万円 / 管理費8,000円
敷
無料礼
7.83万円1DK / 26.1㎡ / 3階
賃貸マンション
摂津市 7階建 2007年築

阪急京都線 / 正雀駅 徒歩2分
築19年 / 7階建
大阪府摂津市正雀本町1丁目25番4号

7.3万円 / 管理費6,000円
敷
5万円礼
10万円1DK / 29.6㎡ / 4階
賃貸マンション
吹田市岸部南1丁目 9階建 2021年築

阪急京都線 / 正雀駅 徒歩3分
築5年 / 9階建
大阪府吹田市岸部南1丁目20-8

8.2万円 / 管理費8,000円
敷
5万円礼
20万円1DK / 28.64㎡ / 3階
賃貸アパート
LA・VIE-ESTBELIE

阪急京都線 / 正雀駅 徒歩20分
築4年 / 3階建
大阪府吹田市岸部北3丁目

7.9万円 / 管理費5,000円
敷
無料礼
15.8万円1LDK / 34.23㎡ / 2階
賃貸マンション
アンフィニⅩⅦマローネ

阪急京都線 / 正雀駅 徒歩3分
築5年 / 9階建
大阪府吹田市岸部南1丁目20-8

8.3万円 / 管理費8,000円
敷
10万円礼
30万円1DK / 28.64㎡ / 5階
賃貸アパート
ベルリッジ岸辺 B

阪急京都線 / 正雀駅 徒歩16分
築1年 / 3階建
大阪府吹田市岸部中3丁目26-21

8万円 / 管理費6,000円
敷
8万円礼
16万円1LDK / 35.97㎡ / 2階
賃貸マンション
吹田市 5階建 2023年築

阪急京都線 / 正雀駅 徒歩14分
築3年 / 5階建
大阪府吹田市岸部中3丁目

9.1万円 / 管理費10,000円
敷
無料礼
5.05万円1LDK / 30.54㎡ / 4階
賃貸マンション
センターポイント吉志部

阪急京都線 / 正雀駅 徒歩18分
築18年 / 5階建
大阪府吹田市岸部中3丁目

8.7万円 / 管理費10,000円
敷
無料礼
8.7万円1DK / 35.1㎡ / 1階
賃貸アパート
吹田市 3階建 2023年築

阪急京都線 / 正雀駅 徒歩13分
築3年 / 3階建
大阪府吹田市岸部中4丁目

8.7万円 / 管理費3,500円
敷
無料礼
10万円1LDK / 35.6㎡ / 2階
同じ最寄り駅 × 同じ特徴 で探す
同じ市区町村 × 同じ特徴 で探す















































