中野区丸山 9階建 2013年築1K/5階/502(東京都中野区 / 野方駅)の賃貸
1/34
1/34
8.9万円
初期費用を知りたい管理費9,000円
- 敷金
- 無料
- 保証金
- なし
- 礼金
- 8.9万円
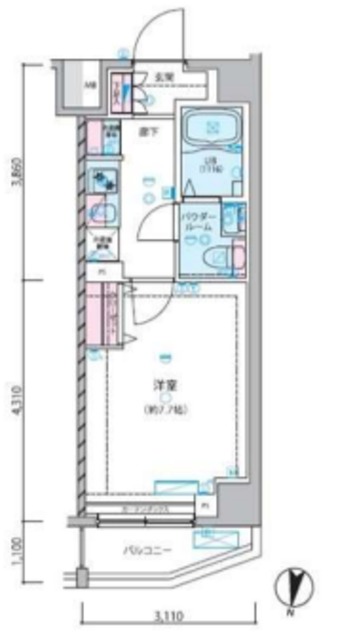
- 広さ
- 29.38㎡
- 階数
- 5階 / 9階建
- 間取り
- 1K
- 建物
- マンション (鉄筋コンクリート)
- 築年数
- 築12年
- 向き
- 北西
- 交通
- 西武新宿線 / 野方駅徒歩8分
- 都営大江戸線 / 練馬駅徒歩19分
- 都営大江戸線 / 新江古田駅徒歩25分
- 住所
- 東京都中野区丸山1丁目11-11
サンドラッグ 野方店 671m
まいばすけっと野方駅南口店 754m
ローソン 808m
ファミリーマート 775m
セブンイレブン 868m
サミット(株)/鷺宮店 855m
マルエツ都立家政駅前店 1180m
丸山小学校 364m
第十一中学校 339m
コンビニ 190m
スーパー 233m
無料で10秒! カンタンお問い合わせ
)
中野区丸山 9階建 2013年築
敷
無料礼
8.9万円特徴
バス・トイレ別
2階以上
エアコン付き
ペット相談可
駐車場あり
室内洗濯機置場
オートロック
洗面所独立
- 入居条件
- ペット可、二人入居可最新の空室状況が知りたい
- バス・トイレ
- 給湯、シャワー、シャンプードレッサー、バストイレ別、浴室乾燥機、洗面所独立、温水洗浄便座
- キッチン
- ガスキッチン、コンロ2口以上、システムキッチン
- セキュリティ
- オートロック、24時間緊急通報システム、防犯カメラ、ディンプルキー、オートロック、24時間緊急通報システム
- 室内設備
- エアコン、暖房、BS、CS、インターホン、インターネット対応、フローリング、室内洗濯置、クロゼット、照明付、シューズボックス、24時間換気システム、光ファイバーお部屋の詳しい情報を知りたい
- 部屋の特徴
- ベランダ、バルコニー、二階以上写真を送ってほしい
- 共用部
- エレベーター、宅配ボックス、敷地内ごみ置き場、駐輪場、バイク置場
- その他の特徴
- 地デジ対応、デザイナーズ、外壁タイル張り、分譲賃貸、都市ガス
無料で10秒! カンタンお問い合わせ
)
中野区丸山 9階建 2013年築
敷
無料礼
8.9万円同じ建物で掲載中の物件 (1件)
その他
- 駐車/駐輪
- 無し / あり駐車可能な車種や台数を知りたい
- 入居時期
- 2026年2月中旬最新の空室状況が知りたい
- 損保
- 住宅保険: 要 15000円
- 保証人代行
- 保証人: 不要
- その他費用
- 情報
情報登録日:2025/12/7
情報更新日:2025/12/6
次回更新予定日:2025/12/22
- 備考
- 定期借家 ※24ヶ月 フリーレントあり 退去時費用備考: 退去費用実費精算 その他: 再契約可能定借:再契約時賃料の1ヶ月分 保証会社利用必須 初回:総賃料の50% 月次保証料:月額1,000円 その他初期費用 77000円 業者管理CD: 86949505
取扱い会社
- 取扱い会社
- アパマンショップ中野南口店 Apaman Leasing 株式会社条件が近い物件も紹介してほしい
- 免許番号
- 国土交通大臣(1)10927
- 取引態様
- 一般媒介
- 所在地
- 東京都中野区中野2丁目
- 電話番号
- 03-5342-2670
- 所属団体名
- (公社)東京都宅地建物取引業協会,(公社) 首都圏不動産公正取引協議会加盟
おすすめ物件 (14件)
賃貸マンション
練馬区豊玉中3丁目 4階建 2018年築

都営大江戸線 / 練馬駅 徒歩8分
築7年 / 4階建
東京都練馬区豊玉中3丁目

9.9万円 / 管理費8,000円
敷
9.9万円礼
9.9万円1K / 20.73㎡ / 3階
賃貸マンション
練馬区豊玉北4丁目 7階建 2020年築

都営大江戸線 / 練馬駅 徒歩6分
築5年 / 7階建
東京都練馬区豊玉北4丁目

10.5万円 / 管理費10,000円
敷
無料礼
無料1K / 22.07㎡ / 6階
賃貸マンション
中野区大和町3丁目 4階建 2007年築

西武新宿線 / 野方駅 徒歩18分
築18年 / 4階建
東京都中野区大和町3丁目

9.4万円 / 管理費6,000円
敷
無料礼
無料ワンルーム / 23.41㎡ / 2階
賃貸マンション
ジェノヴィア練馬春日町スカイガーデン

都営大江戸線 / 練馬春日町駅 徒歩7分
築4年 / 6階建
東京都練馬区春日町2丁目8-20

10.7万円 / 管理費10,000円
敷
無料礼
無料1K / 25.4㎡ / 5階
賃貸アパート
Hale Laule′a

西武池袋線 / 練馬駅 徒歩13分
築7年 / 3階建
東京都練馬区練馬4丁目24-11

8.8万円 / 管理費3,000円
敷
無料礼
17.6万円1K / 24.12㎡ / 3階
賃貸マンション
GENOVIA中野野方GREENVEIL(ジェノヴィアナカノノ
)
西武新宿線 / 野方駅 徒歩8分
築12年 / 9階建
東京都中野区丸山1丁目
)
8.9万円 / 管理費9,000円
敷
無料礼
8.9万円1K / 29.38㎡ / 5階
賃貸マンション
GENOVIA中野野方GREEN VEIL
)
西武新宿線 / 野方駅 徒歩8分
築12年 / 9階建
東京都中野区丸山1丁目11-11
)
9.1万円 / 管理費5,000円
敷
無料礼
9.1万円1K / 25.76㎡ / 9階
賃貸マンション
練馬区豊玉中3丁目 4階建 2018年築

都営大江戸線 / 練馬駅 徒歩8分
築7年 / 4階建
東京都練馬区豊玉中3丁目

9.9万円 / 管理費8,000円
敷
9.9万円礼
9.9万円1K / 20.73㎡ / 3階
賃貸マンション
練馬区豊玉北4丁目 7階建 2020年築

都営大江戸線 / 練馬駅 徒歩6分
築5年 / 7階建
東京都練馬区豊玉北4丁目

10.5万円 / 管理費10,000円
敷
無料礼
無料1K / 22.07㎡ / 6階
賃貸マンション
中野区大和町3丁目 4階建 2007年築

西武新宿線 / 野方駅 徒歩18分
築18年 / 4階建
東京都中野区大和町3丁目

9.4万円 / 管理費6,000円
敷
無料礼
無料ワンルーム / 23.41㎡ / 2階
賃貸マンション
ジェノヴィア練馬春日町スカイガーデン

都営大江戸線 / 練馬春日町駅 徒歩7分
築4年 / 6階建
東京都練馬区春日町2丁目8-20

10.7万円 / 管理費10,000円
敷
無料礼
無料1K / 25.4㎡ / 5階
賃貸アパート
Hale Laule′a

西武池袋線 / 練馬駅 徒歩13分
築7年 / 3階建
東京都練馬区練馬4丁目24-11

8.8万円 / 管理費3,000円
敷
無料礼
17.6万円1K / 24.12㎡ / 3階
賃貸マンション
GENOVIA中野野方GREENVEIL(ジェノヴィアナカノノ
)
西武新宿線 / 野方駅 徒歩8分
築12年 / 9階建
東京都中野区丸山1丁目
)
8.9万円 / 管理費9,000円
敷
無料礼
8.9万円1K / 29.38㎡ / 5階
賃貸マンション
GENOVIA中野野方GREEN VEIL
)
西武新宿線 / 野方駅 徒歩8分
築12年 / 9階建
東京都中野区丸山1丁目11-11
)
9.1万円 / 管理費5,000円
敷
無料礼
9.1万円1K / 25.76㎡ / 9階
)
)
)
)
)
)
)
)
)
)
)
)
)
)
)
)
)
)
)
)
)
)
)
)
)
)
)
)
)
)
)
)













)
)