グランジット蔵前1DK/7階(東京都台東区 / 蔵前駅)の賃貸
1/15
1/15
14.2万円
初期費用を知りたい管理費15,000円
- 敷金
- 無料
- 保証金
- なし
- 礼金
- 無料
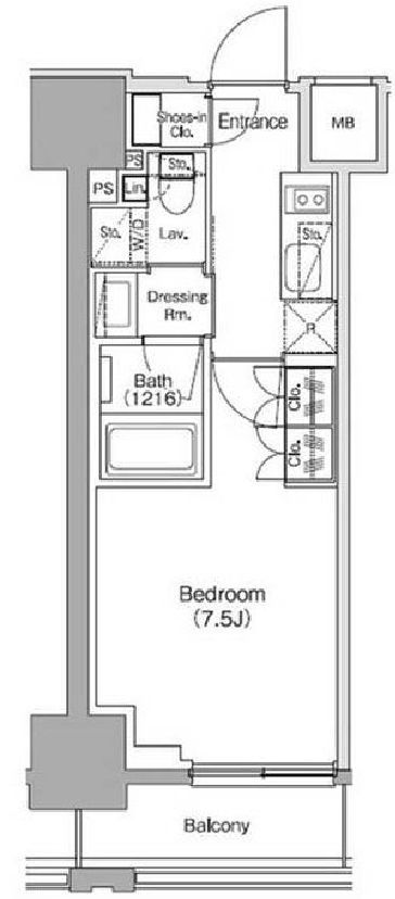
- 広さ
- 25.9㎡
- 階数
- 7階 / 9階建
- 間取り
- 1DK
- 建物
- マンション (鉄筋コンクリート)
- 築年数
- 新築
- 向き
- 西
- 交通
- 都営浅草線 / 蔵前駅徒歩7分
- 都営大江戸線 / 新御徒町駅徒歩7分
- 総武線 / 浅草橋駅徒歩10分
- 住所
- 東京都台東区三筋1
台東区立くらまえオレンジ図書館(図書館)まで537m
蔵前警察署(警察署・交番)まで688m
屋形舟 隅田川下り(公園)まで1197m
公益財団法人ライフ・エクステンション研究所付属永寿総合病院柳(病院)まで845m
栃木銀行東京支店(銀行)まで288m
台東三筋郵便局(郵便局)まで161m
無料で10秒! カンタンお問い合わせ
グランジット蔵前
敷
無料礼
無料特徴
バス・トイレ別
2階以上
エアコン付き
ペット相談可
駐車場あり
室内洗濯機置場
オートロック
洗面所独立
- 入居条件
- 即入居可、フリーレント最新の空室状況が知りたい
- バス・トイレ
- バストイレ別、浴室乾燥機、温水洗浄便座、脱衣所
- キッチン
- ガスコンロ対応、システムキッチン、2口コンロ
- セキュリティ
- オートロック
- 室内設備
- エアコン、フローリング、室内洗濯置、ネット使用料不要お部屋の詳しい情報を知りたい
- 部屋の特徴
- バルコニー、二階以上写真を送ってほしい
- 共用部
- エレベーター、駐輪場、宅配ボックス、バイク置場、敷地内ごみ置き場
- その他の特徴
- 都市ガス
無料で10秒! カンタンお問い合わせ
グランジット蔵前
敷
無料礼
無料同じ建物で掲載中の物件 (19件)
不動産会社からのコメント
取扱店舗:ミニミニ秋葉原店 03-5297-3231
千代田区・中央区・台東区の賃貸物件のご紹介はお任せください!【お部屋探しはミニミニ秋葉原店で♪】初期費用のお見積りもお気軽にご相談ください。
その他
- 駐車/駐輪
- 要確認 / あり駐車可能な車種や台数を知りたい
- 入居時期
- 損保
- 2万円2年
- 保証人代行
- -
- その他費用
合計3.52万円(内訳:入居安心サービス料1.76万円/消毒料1.76万円) 初期費用を知りたい- 情報
情報登録日:2026/1/22
情報更新日:2026/2/5
次回更新予定日:2026/2/21
- 備考
- 保証会社: 保証会社利用必 エポス保証(ROOMID) 毎月賃料等請求金額の合計40% 月額保証料:1% その他:秋葉原店(JR山手線 秋葉原駅 徒歩1分)保証会社■エポス保証(ROOMID) ・初回保証料:月額賃料等の40% 月額保証料:1%(最低保証料有) / 条件: フリーレント1ヶ月 / ほか初期費用: 合計3.52万円(内訳:入居安心サービス料1.76万円/消毒料1.76万円) / ほか諸費用: バイク置場代9900円/駐輪場代550円
取扱い会社
- 取扱い会社
- 株式会社ミニミニ城東 ミニミニ秋葉原店条件が近い物件も紹介してほしい
- 免許番号
- 国土交通大臣免許(5)第6271号
- 取引態様
- 一般媒介
- 所在地
- 東京都千代田区外神田1-16-8 GEEKS AKIHABARA 1F
- 電話番号
- 03-5297-3231
- 営業時間
- 10:00~18:00
- 定休日
- 1月~3月無休
おすすめ物件 (20件)
賃貸マンション
ディームス蔵前

都営大江戸線 / 新御徒町駅 徒歩6分
築6年 / 14階建
東京都台東区蔵前4丁目37-3

13.5万円 / 管理費8,000円
敷
13.5万円礼
13.5万円1K / 26.1㎡ / 6階
賃貸マンション
QUALITAS秋葉原

総武線 / 浅草橋駅 徒歩6分
築4年 / 16階建
東京都千代田区神田佐久間町4丁目21

15.4万円 / 管理費15,000円
敷
無料礼
7.7万円1K / 30.25㎡ / 4階
賃貸マンション
GENOVIA浅草橋Ⅱ skygarden

総武線 / 浅草橋駅 徒歩8分
築5年 / 13階建
東京都台東区鳥越1丁目15-6

12.3万円 / 管理費10,000円
敷
無料礼
無料1K / 26.26㎡ / 8階
賃貸マンション
ルフォンプログレ蔵前プレミア

都営浅草線 / 蔵前駅 徒歩4分
築4年 / 14階建
東京都台東区浅草橋3丁目20-11

13.8万円 / 管理費15,000円
敷
13.8万円礼
13.8万円1K / 25.3㎡ / 7階
賃貸マンション
アーバネックス新御徒町

都営大江戸線 / 新御徒町駅 徒歩4分
築3年 / 12階建
東京都台東区小島1丁目15-7

13.8万円 / 管理費12,000円
敷
13.8万円礼
無料1DK / 25.72㎡ / 6階
賃貸マンション
JMFレジデンス蔵前二丁目

都営浅草線 / 蔵前駅 徒歩4分
築2年 / 13階建
東京都台東区蔵前2丁目10-8

14.4万円 / 管理費10,000円
敷
14.4万円礼
14.4万円1DK / 25.14㎡ / 12階
賃貸マンション
パークアクシス元浅草ステージ

都営大江戸線 / 新御徒町駅 徒歩3分
築18年 / 地上16階地下1階建
東京都台東区元浅草1丁目8-11

16万円 / 管理費15,000円
敷
16万円礼
16万円1DK / 32.82㎡ / 12階
賃貸マンション
JMFレジデンス蔵前鳥越

都営浅草線 / 蔵前駅 徒歩5分
築2年 / 13階建
東京都台東区鳥越2丁目2-2

13.6万円 / 管理費10,000円
敷
13.6万円礼
13.6万円1DK / 25.88㎡ / 10階
賃貸マンション
プラウドフラット東日本橋

総武線 / 浅草橋駅 徒歩5分
築8年 / 10階建
東京都中央区東日本橋2丁目27-7

14.6万円 / 管理費10,000円
敷
14.6万円礼
14.6万円1K / 25.67㎡ / 8階
賃貸マンション
La Douceur浅草橋

都営浅草線 / 浅草橋駅 徒歩7分
築18年 / 12階建
東京都台東区蔵前1丁目1-1

12.6万円 / 管理費8,000円
敷
無料礼
12.6万円ワンルーム / 25.12㎡ / 4階
賃貸マンション
ミリアレジデンス蔵前

都営浅草線 / 蔵前駅 徒歩4分
築3年 / 13階建
東京都台東区鳥越2丁目13-13

15.8万円 / 管理費10,000円
敷
無料礼
無料1DK / 28.59㎡ / 10階
賃貸マンション
ルフォンプログレ秋葉原EAST

総武線 / 浅草橋駅 徒歩8分
築4年 / 15階建
東京都台東区浅草橋5丁目25-5

14.4万円 / 管理費15,000円
敷
14.4万円礼
14.4万円1DK / 25.2㎡ / 13階
賃貸マンション
レジディア新御徒町Ⅱ

都営大江戸線 / 新御徒町駅 徒歩3分
築11年 / 12階建
東京都台東区小島2丁目8-7

13.7万円 / 管理費15,000円
敷
無料礼
無料1K / 25.11㎡ / 6階
賃貸マンション
オープンブルーム浅草橋

総武線 / 浅草橋駅 徒歩7分
築2年 / 10階建
東京都台東区浅草橋5丁目14-3

12.8万円 / 管理費12,000円
敷
12.8万円礼
無料1DK / 25.37㎡ / 4階
賃貸マンション
メインステージ浅草橋駅前

総武線 / 浅草橋駅 徒歩4分
築21年 / 10階建
東京都台東区柳橋2丁目2-7

12.9万円 / 管理費10,000円
敷
12.9万円礼
12.9万円1K / 30.45㎡ / 3階
賃貸マンション
グランパセオ日本橋イースト

都営浅草線 / 浅草橋駅 徒歩4分
築3年 / 10階建
東京都中央区日本橋馬喰町2丁目5-1

14.7万円 / 管理費15,000円
敷
無料礼
無料1DK / 29.28㎡ / 2階
賃貸マンション
ディームス蔵前

都営大江戸線 / 新御徒町駅 徒歩6分
築6年 / 14階建
東京都台東区蔵前4丁目37-3

13.5万円 / 管理費8,000円
敷
13.5万円礼
13.5万円1K / 26.1㎡ / 6階
賃貸マンション
QUALITAS秋葉原

総武線 / 浅草橋駅 徒歩6分
築4年 / 16階建
東京都千代田区神田佐久間町4丁目21

15.4万円 / 管理費15,000円
敷
無料礼
7.7万円1K / 30.25㎡ / 4階
賃貸マンション
GENOVIA浅草橋Ⅱ skygarden

総武線 / 浅草橋駅 徒歩8分
築5年 / 13階建
東京都台東区鳥越1丁目15-6

12.3万円 / 管理費10,000円
敷
無料礼
無料1K / 26.26㎡ / 8階
賃貸マンション
ルフォンプログレ蔵前プレミア

都営浅草線 / 蔵前駅 徒歩4分
築4年 / 14階建
東京都台東区浅草橋3丁目20-11

13.8万円 / 管理費15,000円
敷
13.8万円礼
13.8万円1K / 25.3㎡ / 7階
賃貸マンション
アーバネックス新御徒町

都営大江戸線 / 新御徒町駅 徒歩4分
築3年 / 12階建
東京都台東区小島1丁目15-7

13.8万円 / 管理費12,000円
敷
13.8万円礼
無料1DK / 25.72㎡ / 6階
賃貸マンション
JMFレジデンス蔵前二丁目

都営浅草線 / 蔵前駅 徒歩4分
築2年 / 13階建
東京都台東区蔵前2丁目10-8

14.4万円 / 管理費10,000円
敷
14.4万円礼
14.4万円1DK / 25.14㎡ / 12階
賃貸マンション
パークアクシス元浅草ステージ

都営大江戸線 / 新御徒町駅 徒歩3分
築18年 / 地上16階地下1階建
東京都台東区元浅草1丁目8-11

16万円 / 管理費15,000円
敷
16万円礼
16万円1DK / 32.82㎡ / 12階
賃貸マンション
JMFレジデンス蔵前鳥越

都営浅草線 / 蔵前駅 徒歩5分
築2年 / 13階建
東京都台東区鳥越2丁目2-2

13.6万円 / 管理費10,000円
敷
13.6万円礼
13.6万円1DK / 25.88㎡ / 10階
賃貸マンション
プラウドフラット東日本橋

総武線 / 浅草橋駅 徒歩5分
築8年 / 10階建
東京都中央区東日本橋2丁目27-7

14.6万円 / 管理費10,000円
敷
14.6万円礼
14.6万円1K / 25.67㎡ / 8階
賃貸マンション
La Douceur浅草橋

都営浅草線 / 浅草橋駅 徒歩7分
築18年 / 12階建
東京都台東区蔵前1丁目1-1

12.6万円 / 管理費8,000円
敷
無料礼
12.6万円ワンルーム / 25.12㎡ / 4階
賃貸マンション
ミリアレジデンス蔵前

都営浅草線 / 蔵前駅 徒歩4分
築3年 / 13階建
東京都台東区鳥越2丁目13-13

15.8万円 / 管理費10,000円
敷
無料礼
無料1DK / 28.59㎡ / 10階
賃貸マンション
ルフォンプログレ秋葉原EAST

総武線 / 浅草橋駅 徒歩8分
築4年 / 15階建
東京都台東区浅草橋5丁目25-5

14.4万円 / 管理費15,000円
敷
14.4万円礼
14.4万円1DK / 25.2㎡ / 13階
賃貸マンション
レジディア新御徒町Ⅱ

都営大江戸線 / 新御徒町駅 徒歩3分
築11年 / 12階建
東京都台東区小島2丁目8-7

13.7万円 / 管理費15,000円
敷
無料礼
無料1K / 25.11㎡ / 6階
賃貸マンション
オープンブルーム浅草橋

総武線 / 浅草橋駅 徒歩7分
築2年 / 10階建
東京都台東区浅草橋5丁目14-3

12.8万円 / 管理費12,000円
敷
12.8万円礼
無料1DK / 25.37㎡ / 4階
賃貸マンション
メインステージ浅草橋駅前

総武線 / 浅草橋駅 徒歩4分
築21年 / 10階建
東京都台東区柳橋2丁目2-7

12.9万円 / 管理費10,000円
敷
12.9万円礼
12.9万円1K / 30.45㎡ / 3階
賃貸マンション
グランパセオ日本橋イースト

都営浅草線 / 浅草橋駅 徒歩4分
築3年 / 10階建
東京都中央区日本橋馬喰町2丁目5-1

14.7万円 / 管理費15,000円
敷
無料礼
無料1DK / 29.28㎡ / 2階














