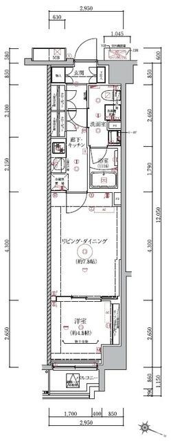
ベルシード板橋本町プレミアII1LDK/10階/1002(東京都板橋区 / 板橋本町駅)の賃貸
1/30
1/30
18.2万円
初期費用を知りたい管理費15,000円
家賃割引サービス適用で最大2年間4.8万円割引
- 敷金
- 無料
- 保証金
- なし
- 礼金
- 無料
- 広さ
- 35.85㎡
- 階数
- 10階 / 10階建
- 間取り
- 1LDK
- 建物
- マンション (鉄筋コンクリート)
- 築年数
- 新築
- 向き
- 北東
- 交通
- 都営三田線 / 板橋本町駅徒歩7分
- 都営三田線 / 本蓮沼駅徒歩10分
- 住所
- 東京都板橋区清水町
コンビニエンスストア 340m
スーパーマーケット 430m
ドラッグストア 330m
商店街 6540m
私立星美学園中学校 2630m
無料で10秒! カンタンお問い合わせ
ベルシード板橋本町プレミアII
敷
無料礼
無料特徴
バス・トイレ別
2階以上
エアコン付き
ペット相談可
駐車場あり
室内洗濯機置場
オートロック
洗面所独立
- 入居条件
- 保証人不要、事務所(SOHO)不可、ペット相談、ペット可、二人入居可、即入居可、フリーレント最新の空室状況が知りたい
- バス・トイレ
- 給湯、専用バス、浴室乾燥機、シャワー、専用トイレ、温水洗浄便座、バストイレ別、洗面所独立
- キッチン
- ガスコンロ対応、2口コンロ、システムキッチン
- セキュリティ
- オートロック、防犯カメラ、24時間セキュリティ
- 室内設備
- BS、CS、インターネット対応、エアコン、照明付、クロゼット、シューズボックス、シューズインクロゼット、室内洗濯置、フローリング、ネット使用料不要お部屋の詳しい情報を知りたい
- 部屋の特徴
- バルコニー、二階以上、最上階写真を送ってほしい
- 共用部
- エレベーター、宅配ボックス、駐輪場、バイク置場、敷地内駐車場
- その他の特徴
- 下水、公営水道、都市ガス、外壁タイル張り、駐車場あり
無料で10秒! カンタンお問い合わせ
ベルシード板橋本町プレミアII
敷
無料礼
無料同じ建物で掲載中の物件 (14件)
不動産会社からのコメント
お部屋探しはタウンハウジング蕨店まで★
初回委託保証料:880円 少額短期保険:950円 24時間サポート:880円 ★お問い合わせはタウンハウジング蕨店にお任せ下さい★電話にて申込の手続きも承りますのでお気軽にお問合せください!
その他
- 駐車/駐輪
- 空有 費用: 27,500円 税: 税込み 距離: 0m 空き数: 1 / あり駐車可能な車種や台数を知りたい
- 入居時期
- 損保
- 住宅保険: 要
- 保証人代行
- 加入要 会社名: その他 費用: 初回保証料は総賃料等の100%、以降1年毎に1万円~。
- その他費用
初期費用を知りたいバイク置場料金:7,700円
駐輪場料金:330円
24時間サポート:880円
鍵交換費用:17,600円
- 情報
情報登録日:2025/9/21
情報更新日:2025/10/19
次回更新予定日:2025/12/14
- 備考
- 現況: 空家 状態: 未入居 更新料: 新賃料の1.0ヶ月分 フリーレント: 2ヶ月(2ヶ月) 契約期間: 2年 総戸数: 62戸
取扱い会社
- 取扱い会社
- 株式会社タウンハウジング 蕨店条件が近い物件も紹介してほしい
- 免許番号
- 国土交通大臣(4)第6225号
- 取引態様
- 仲介
- 所在地
- 埼玉県蕨市中央1-24-3 MKビル 1階 WEST
- 電話番号
- 048-433-6150
おすすめ物件 (10件)
賃貸マンション
板橋区清水町 14階建 2023年築

都営三田線 / 本蓮沼駅 徒歩4分
築2年 / 14階建
東京都板橋区清水町

16.5万円 / 管理費10,000円
敷
16.5万円礼
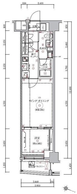
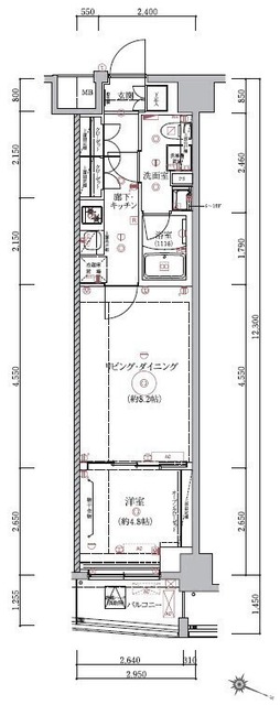
無料1LDK / 38.06㎡ / 13階
賃貸マンション
ベルシード板橋本町プレミアII
都営三田線 / 板橋本町駅 徒歩7分
新築 / 10階建
東京都板橋区清水町55-3
17.8万円 / 管理費15,000円
敷
無料礼
無料1LDK / 40.48㎡ / 4階
賃貸マンション
板橋区本町 5階建 2024年築

都営三田線 / 板橋本町駅 徒歩7分
築1年 / 5階建
東京都板橋区本町

16.5万円 / 管理費35,000円
敷
無料礼
無料1LDK / 36.42㎡ / 3階
賃貸マンション
エレミ本蓮沼
都営三田線 / 本蓮沼駅 徒歩2分
新築 / 14階建
東京都板橋区蓮沼町45-12
18.7万円 / 管理費15,000円
敷
18.7万円礼
無料1LDK / 45.03㎡ / 12階
賃貸マンション
板橋区 14階建 2023年築
都営三田線 / 本蓮沼駅 徒歩4分
築2年 / 14階建
東京都板橋区清水町78-6
16.5万円 / 管理費10,000円
敷
16.5万円礼
16.5万円1LDK / 38.06㎡ / 13階
賃貸マンション
板橋区本町 地上5階地下1階建 2024年築

都営三田線 / 板橋本町駅 徒歩7分
築1年 / 地上5階地下1階建
東京都板橋区本町

18万円 / 管理費35,000円
敷
無料礼
無料2DK / 38.25㎡ / 4階
賃貸マンション
板橋区中板橋 13階建 2023年築

都営三田線 / 板橋本町駅 徒歩16分
築2年 / 13階建
東京都板橋区中板橋

16.5万円 / 管理費9,000円
敷
無料礼
無料1LDK / 35.42㎡ / 13階
賃貸マンション
板橋区中板橋 13階建 2023年築

都営三田線 / 板橋本町駅 徒歩16分
築2年 / 13階建
東京都板橋区中板橋

16.5万円 / 管理費9,000円
敷
無料礼
無料1LDK / 35.42㎡ / 13階
賃貸マンション
板橋区 5階建 2024年築
都営三田線 / 板橋本町駅 徒歩7分
築1年 / 5階建
東京都板橋区稲荷台26-7
18万円 / 管理費20,000円
敷
無料礼
18万円2DK / 37.2㎡ / 2階
賃貸マンション
板橋区清水町 14階建 2023年築

都営三田線 / 本蓮沼駅 徒歩4分
築2年 / 14階建
東京都板橋区清水町

16.5万円 / 管理費10,000円
敷
16.5万円礼
無料1LDK / 38.06㎡ / 13階
賃貸マンション
ベルシード板橋本町プレミアII
都営三田線 / 板橋本町駅 徒歩7分
新築 / 10階建
東京都板橋区清水町55-3
17.8万円 / 管理費15,000円
敷
無料礼
無料1LDK / 40.48㎡ / 4階
賃貸マンション
板橋区本町 5階建 2024年築

都営三田線 / 板橋本町駅 徒歩7分
築1年 / 5階建
東京都板橋区本町

16.5万円 / 管理費35,000円
敷
無料礼
無料1LDK / 36.42㎡ / 3階
賃貸マンション
エレミ本蓮沼
都営三田線 / 本蓮沼駅 徒歩2分
新築 / 14階建
東京都板橋区蓮沼町45-12
18.7万円 / 管理費15,000円
敷
18.7万円礼
無料1LDK / 45.03㎡ / 12階
賃貸マンション
板橋区 14階建 2023年築
都営三田線 / 本蓮沼駅 徒歩4分
築2年 / 14階建
東京都板橋区清水町78-6
16.5万円 / 管理費10,000円
敷
16.5万円礼
16.5万円1LDK / 38.06㎡ / 13階
賃貸マンション
板橋区本町 地上5階地下1階建 2024年築

都営三田線 / 板橋本町駅 徒歩7分
築1年 / 地上5階地下1階建
東京都板橋区本町

18万円 / 管理費35,000円
敷
無料礼
無料2DK / 38.25㎡ / 4階
賃貸マンション
板橋区中板橋 13階建 2023年築

都営三田線 / 板橋本町駅 徒歩16分
築2年 / 13階建
東京都板橋区中板橋

16.5万円 / 管理費9,000円
敷
無料礼
無料1LDK / 35.42㎡ / 13階
賃貸マンション
板橋区中板橋 13階建 2023年築

都営三田線 / 板橋本町駅 徒歩16分
築2年 / 13階建
東京都板橋区中板橋

16.5万円 / 管理費9,000円
敷
無料礼
無料1LDK / 35.42㎡ / 13階
賃貸マンション
板橋区 5階建 2024年築
都営三田線 / 板橋本町駅 徒歩7分
築1年 / 5階建
東京都板橋区稲荷台26-7
18万円 / 管理費20,000円
敷
無料礼
18万円2DK / 37.2㎡ / 2階
同じ最寄り駅 × 同じ特徴 で探す
同じ市区町村 × 同じ特徴 で探す



)
)
)
)


