GRAN PASEO上野1SLDK/2階/201(東京都台東区 / 稲荷町駅)の賃貸
1/21
1/21
19万円
初期費用を知りたい管理費20,000円
家賃割引サービス適用で最大2年間4.8万円割引
- 敷金
- 無料
- 保証金
- なし
- 礼金
- 無料
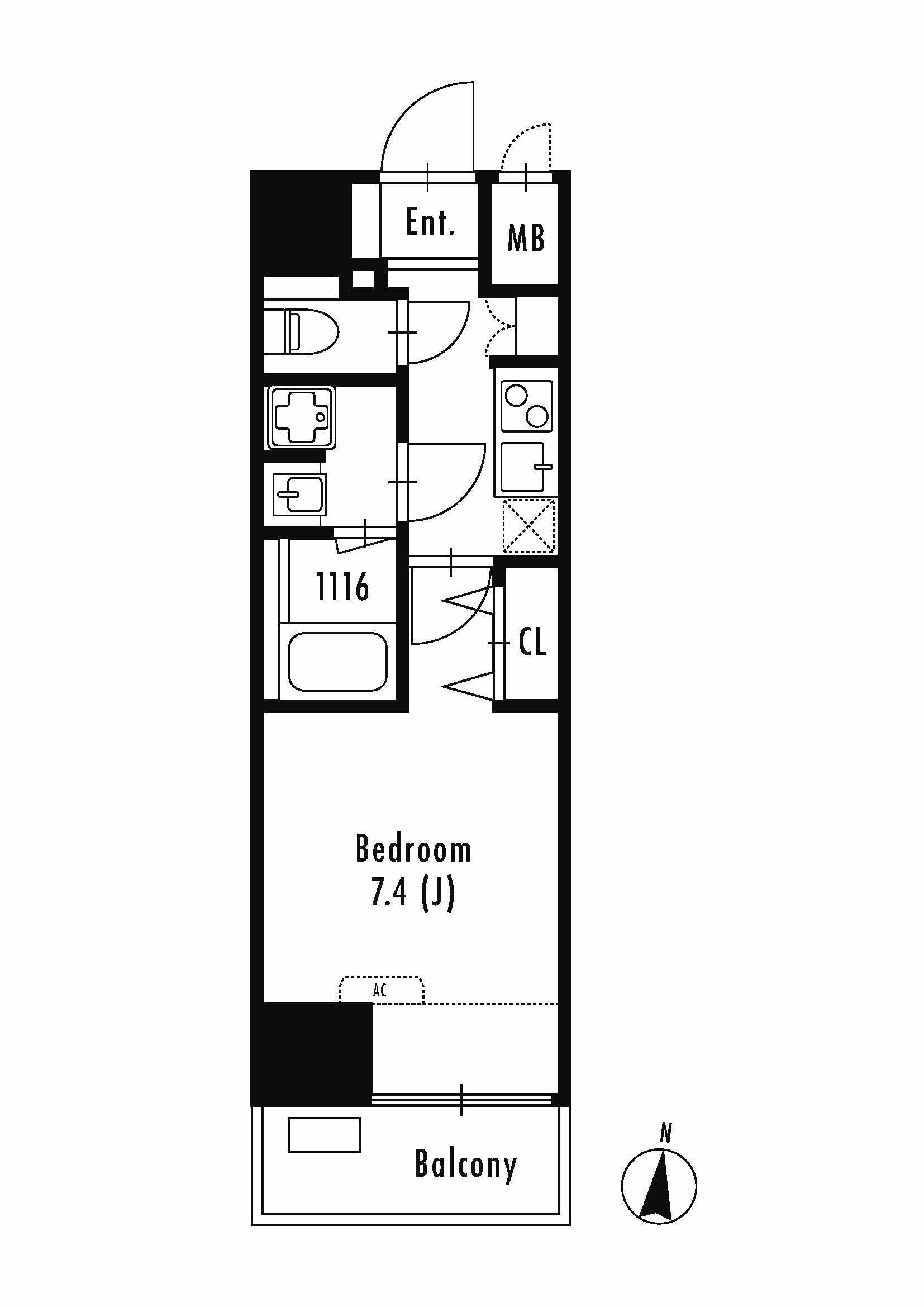
- 広さ
- 39.98㎡
- 階数
- 2階 / 12階建
- 間取り
- 1SLDK
- 建物
- マンション (鉄筋コンクリート)
- 築年数
- 築3年
- 向き
- 北
- 交通
- 東京メトロ銀座線 / 稲荷町駅徒歩7分
- 山手線 / 上野駅徒歩8分
- 住所
- 東京都台東区東上野1丁目24-8
コンビニエンスストア 300m
スーパーマーケット 270m
ドラッグストア 860m
松坂屋上野店 730m
無料で10秒! カンタンお問い合わせ
GRAN PASEO上野
敷
無料礼
無料特徴
バス・トイレ別
2階以上
エアコン付き
ペット相談可
駐車場あり
室内洗濯機置場
オートロック
洗面所独立
- 入居条件
- 保証人不要、二人入居可、初期費用カード決済可最新の空室状況が知りたい
- バス・トイレ
- 給湯、専用バス、オートバス、追焚機能浴室、浴室乾燥機、シャワー、専用トイレ、温水洗浄便座、バストイレ別、シャワー付洗面化粧台、洗面所独立
- キッチン
- ガスコンロ対応、1口コンロ、2口コンロ、3口以上コンロ、カウンターキッチン、システムキッチン
- セキュリティ
- オートロック、防犯カメラ
- 室内設備
- BS、CS、インターネット対応、エアコン、冷房、照明付、クロゼット、シューズボックス、室内洗濯置、フローリング、ネット使用料不要お部屋の詳しい情報を知りたい
- 部屋の特徴
- バルコニー、角住戸、眺望が良い、二階以上写真を送ってほしい
- 共用部
- エレベーター、宅配ボックス、駐輪場、バイク置場
- その他の特徴
- 都市ガス、デザイナーズ
無料で10秒! カンタンお問い合わせ
GRAN PASEO上野
敷
無料礼
無料不動産会社からのコメント
お部屋探しはタウンハウジングまで!是非お問い合わせ下さい!
お部屋の詳細はどんなことでもお問い合わせください!【初期費用一部クレジット決済相談可】
その他
- 駐車/駐輪
- 要確認 / あり駐車可能な車種や台数を知りたい
- 入居時期
- 2026年1月中旬最新の空室状況が知りたい
- 損保
- 住宅保険: 不要
- 保証人代行
- 加入要 会社名: その他 費用: 0.70ヶ月 初回保証委託料総賃料70%年間保証委託料1万円・決済手数料330円
- その他費用
初期費用を知りたいコンシェリア24安心入居パック:39,600円
鍵交換費用:32,450円
室内抗菌代:22,000円
- 情報
情報登録日:2025/12/24
情報更新日:2025/12/23
次回更新予定日:2026/1/13
- 備考
- 現況: 居住中 更新料: 新賃料の1.0ヶ月分 契約期間: 2年
取扱い会社
- 取扱い会社
- 株式会社タウンハウジング 錦糸町店条件が近い物件も紹介してほしい
- 免許番号
- 国土交通大臣(1)9926号
- 取引態様
- 仲介
- 所在地
- 東京都墨田区江東橋2-14-6 JU錦糸町駅前ビル1階
- 電話番号
- 03-3634-6055
- 営業時間
- 10:00~19:00
- 定休日
- 水曜日
- 所属団体名
- 東京都宅地建物取引業協会
おすすめ物件 (20件)
賃貸マンション
コンフォリア東上野

東京メトロ銀座線 / 稲荷町駅 徒歩3分
築2年 / 地上15階地下1階建
東京都台東区東上野6丁目1-14

20万円 / 管理費10,000円
敷
20万円礼
無料1LDK / 41.86㎡ / 5階
賃貸マンション
プライムブリス上野元浅草

東京メトロ銀座線 / 稲荷町駅 徒歩7分
築4年 / 14階建
東京都台東区元浅草3丁目17-12

19.2万円 / 管理費15,000円
敷
19.2万円礼
無料1LDK / 40.74㎡ / 7階
賃貸マンション
オーキッドレジデンス上野稲荷町Ⅱ

東京メトロ銀座線 / 稲荷町駅 徒歩4分
築8年 / 12階建
東京都台東区松が谷1丁目5-8

18.4万円 / 管理費10,200円
敷
無料礼
無料1LDK / 41㎡ / 2階
賃貸マンション
オーキッドレジデンス上野

東北本線 / 上野駅 徒歩10分
築7年 / 15階建
東京都台東区北上野2丁目18-2

20.2万円 / 管理費12,000円
敷
無料礼
無料1LDK / 41.03㎡ / 9階
賃貸マンション
ルジェンテ・バリュ上野

高崎線 / 上野駅 徒歩4分
築9年 / 地上13階地下1階建
東京都台東区上野7丁目12-12

18.3万円 / 管理費12,000円
敷
無料礼
18.3万円1LDK / 33.46㎡ / 2階
賃貸マンション
シーズンフラッツ上野稲荷町

東京メトロ銀座線 / 稲荷町駅 徒歩7分
築1年 / 13階建
東京都台東区元浅草3丁目19-11

18.7万円 / 管理費18,000円
敷
18.7万円礼
無料1LDK / 40.24㎡ / 4階
賃貸マンション
ハイリーフ上野

東京メトロ銀座線 / 稲荷町駅 徒歩8分
築19年 / 11階建
東京都台東区東上野6丁目27-5

17.1万円 / 管理費12,000円
敷
無料礼
無料1LDK / 39.04㎡ / 11階
賃貸マンション
クレストコート上野

東京メトロ銀座線 / 稲荷町駅 徒歩6分
築2年 / 14階建
東京都台東区北上野2丁目6-1

18万円 / 管理費15,000円
敷
18万円礼
無料1LDK / 37.07㎡ / 10階
賃貸マンション
ディームス上野(旧nido上野)

東京メトロ銀座線 / 稲荷町駅 徒歩9分
築4年 / 13階建
東京都台東区北上野2丁目2-8

17.6万円 / 管理費15,000円
敷
無料礼
8.8万円1LDK / 36.36㎡ / 11階
賃貸マンション
JP noie 上野稲荷町 旧ルネフラッツ上野稲荷町

東京メトロ銀座線 / 稲荷町駅 徒歩6分
築9年 / 15階建
東京都台東区東上野6丁目17-12

19.6万円 / 管理費15,000円
敷
19.6万円礼
無料1LDK / 40.4㎡ / 15階
賃貸マンション
オーキッドレジデンス上野稲荷町

東京メトロ銀座線 / 稲荷町駅 徒歩3分
築6年 / 9階建
東京都台東区東上野3丁目5-4

21万円 / 管理費15,000円
敷
21万円礼
無料1LDK / 40.67㎡ / 4階
賃貸マンション
ジェノヴィア新御徒町スカイガーデン

東京メトロ銀座線 / 稲荷町駅 徒歩7分
築7年 / 13階建
東京都台東区元浅草3丁目18-16

19.5万円 / 管理費11,000円
敷
無料礼
19.5万円1LDK / 41.79㎡ / 11階
賃貸マンション
台東区 15階建 2019年築

山手線 / 上野駅 徒歩5分
築7年 / 15階建
東京都台東区東上野5丁目7-5

17万円 / 管理費10,000円
敷
17万円礼
17万円1LDK / 33.63㎡ / 2階
賃貸マンション
シーフォルム上野アジールコート

山手線 / 上野駅 徒歩5分
築9年 / 9階建
東京都台東区東上野4丁目20-9

18.9万円 / 管理費10,000円
敷
18.9万円礼
18.9万円1LDK / 41.15㎡ / 9階
賃貸マンション
アスール北上野

山手線 / 上野駅 徒歩10分
築8年 / 13階建
東京都台東区北上野2丁目9-15

19.4万円 / 管理費15,000円
敷
19.4万円礼
19.4万円1LDK / 41.62㎡ / 7階
賃貸マンション
プライマル上野EAST

東京メトロ銀座線 / 稲荷町駅 徒歩5分
築11年 / 11階建
東京都台東区松が谷1丁目3-16

17万円 / 管理費15,000円
敷
17万円礼
無料1LDK / 40.4㎡ / 9階
賃貸マンション
プライマル上野・稲荷町

東京メトロ銀座線 / 稲荷町駅 徒歩6分
築6年 / 14階建
東京都台東区松が谷2丁目6-5

19.2万円 / 管理費15,000円
敷
19.2万円礼
無料1LDK / 40.16㎡ / 6階
賃貸マンション
プライマル上野イースト
東京メトロ銀座線 / 稲荷町駅 徒歩6分
築11年 / 11階建
東京都台東区松が谷1丁目3-16
17.8万円 / 管理費15,000円
敷
17.8万円礼
無料1LDK / 40.4㎡ / 11階
賃貸マンション
Prime Bliss上野元浅草

東京メトロ銀座線 / 稲荷町駅 徒歩7分
築4年 / 14階建
東京都台東区元浅草3丁目17-12

家賃カード決済可
19.8万円 / 管理費15,000円
敷
19.8万円礼
無料1LDK / 40.74㎡ / 13階
賃貸マンション
SEASON FLATS 新御徒町

東京メトロ銀座線 / 稲荷町駅 徒歩8分
築3年 / 11階建
東京都台東区台東4丁目26-6

家賃カード決済可
18.5万円 / 管理費15,000円
敷
18.5万円礼
無料1LDK / 34.09㎡ / 11階
賃貸マンション
コンフォリア東上野

東京メトロ銀座線 / 稲荷町駅 徒歩3分
築2年 / 地上15階地下1階建
東京都台東区東上野6丁目1-14

20万円 / 管理費10,000円
敷
20万円礼
無料1LDK / 41.86㎡ / 5階
賃貸マンション
プライムブリス上野元浅草

東京メトロ銀座線 / 稲荷町駅 徒歩7分
築4年 / 14階建
東京都台東区元浅草3丁目17-12

19.2万円 / 管理費15,000円
敷
19.2万円礼
無料1LDK / 40.74㎡ / 7階
賃貸マンション
オーキッドレジデンス上野稲荷町Ⅱ

東京メトロ銀座線 / 稲荷町駅 徒歩4分
築8年 / 12階建
東京都台東区松が谷1丁目5-8

18.4万円 / 管理費10,200円
敷
無料礼
無料1LDK / 41㎡ / 2階
賃貸マンション
オーキッドレジデンス上野

東北本線 / 上野駅 徒歩10分
築7年 / 15階建
東京都台東区北上野2丁目18-2

20.2万円 / 管理費12,000円
敷
無料礼
無料1LDK / 41.03㎡ / 9階
賃貸マンション
ルジェンテ・バリュ上野

高崎線 / 上野駅 徒歩4分
築9年 / 地上13階地下1階建
東京都台東区上野7丁目12-12

18.3万円 / 管理費12,000円
敷
無料礼
18.3万円1LDK / 33.46㎡ / 2階
賃貸マンション
シーズンフラッツ上野稲荷町

東京メトロ銀座線 / 稲荷町駅 徒歩7分
築1年 / 13階建
東京都台東区元浅草3丁目19-11

18.7万円 / 管理費18,000円
敷
18.7万円礼
無料1LDK / 40.24㎡ / 4階
賃貸マンション
ハイリーフ上野

東京メトロ銀座線 / 稲荷町駅 徒歩8分
築19年 / 11階建
東京都台東区東上野6丁目27-5

17.1万円 / 管理費12,000円
敷
無料礼
無料1LDK / 39.04㎡ / 11階
賃貸マンション
クレストコート上野

東京メトロ銀座線 / 稲荷町駅 徒歩6分
築2年 / 14階建
東京都台東区北上野2丁目6-1

18万円 / 管理費15,000円
敷
18万円礼
無料1LDK / 37.07㎡ / 10階
賃貸マンション
ディームス上野(旧nido上野)

東京メトロ銀座線 / 稲荷町駅 徒歩9分
築4年 / 13階建
東京都台東区北上野2丁目2-8

17.6万円 / 管理費15,000円
敷
無料礼
8.8万円1LDK / 36.36㎡ / 11階
賃貸マンション
JP noie 上野稲荷町 旧ルネフラッツ上野稲荷町

東京メトロ銀座線 / 稲荷町駅 徒歩6分
築9年 / 15階建
東京都台東区東上野6丁目17-12

19.6万円 / 管理費15,000円
敷
19.6万円礼
無料1LDK / 40.4㎡ / 15階
賃貸マンション
オーキッドレジデンス上野稲荷町

東京メトロ銀座線 / 稲荷町駅 徒歩3分
築6年 / 9階建
東京都台東区東上野3丁目5-4

21万円 / 管理費15,000円
敷
21万円礼
無料1LDK / 40.67㎡ / 4階
賃貸マンション
ジェノヴィア新御徒町スカイガーデン

東京メトロ銀座線 / 稲荷町駅 徒歩7分
築7年 / 13階建
東京都台東区元浅草3丁目18-16

19.5万円 / 管理費11,000円
敷
無料礼
19.5万円1LDK / 41.79㎡ / 11階
賃貸マンション
台東区 15階建 2019年築

山手線 / 上野駅 徒歩5分
築7年 / 15階建
東京都台東区東上野5丁目7-5

17万円 / 管理費10,000円
敷
17万円礼
17万円1LDK / 33.63㎡ / 2階
賃貸マンション
シーフォルム上野アジールコート

山手線 / 上野駅 徒歩5分
築9年 / 9階建
東京都台東区東上野4丁目20-9

18.9万円 / 管理費10,000円
敷
18.9万円礼
18.9万円1LDK / 41.15㎡ / 9階
賃貸マンション
アスール北上野

山手線 / 上野駅 徒歩10分
築8年 / 13階建
東京都台東区北上野2丁目9-15

19.4万円 / 管理費15,000円
敷
19.4万円礼
19.4万円1LDK / 41.62㎡ / 7階
賃貸マンション
プライマル上野EAST

東京メトロ銀座線 / 稲荷町駅 徒歩5分
築11年 / 11階建
東京都台東区松が谷1丁目3-16

17万円 / 管理費15,000円
敷
17万円礼
無料1LDK / 40.4㎡ / 9階
賃貸マンション
プライマル上野・稲荷町

東京メトロ銀座線 / 稲荷町駅 徒歩6分
築6年 / 14階建
東京都台東区松が谷2丁目6-5

19.2万円 / 管理費15,000円
敷
19.2万円礼
無料1LDK / 40.16㎡ / 6階
賃貸マンション
プライマル上野イースト
東京メトロ銀座線 / 稲荷町駅 徒歩6分
築11年 / 11階建
東京都台東区松が谷1丁目3-16
17.8万円 / 管理費15,000円
敷
17.8万円礼
無料1LDK / 40.4㎡ / 11階
賃貸マンション
Prime Bliss上野元浅草

東京メトロ銀座線 / 稲荷町駅 徒歩7分
築4年 / 14階建
東京都台東区元浅草3丁目17-12

家賃カード決済可
19.8万円 / 管理費15,000円
敷
19.8万円礼
無料1LDK / 40.74㎡ / 13階
賃貸マンション
SEASON FLATS 新御徒町

東京メトロ銀座線 / 稲荷町駅 徒歩8分
築3年 / 11階建
東京都台東区台東4丁目26-6

家賃カード決済可
18.5万円 / 管理費15,000円
敷
18.5万円礼
無料1LDK / 34.09㎡ / 11階
同じ最寄り駅 × 同じ特徴 で探す
同じ市区町村 × 同じ特徴 で探す



