ピエス綱島3LDK/5階/501(神奈川県横浜市港北区 / 綱島駅)の賃貸
1/4
1/4
18.8万円
初期費用を知りたい管理費10,000円
- 敷金
- 37.6万円
- 保証金
- なし
- 礼金
- 37.6万円
- 広さ
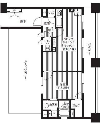
- 64.96㎡
- 階数
- 5階 / 7階建
- 間取り
- 3LDK
- 建物
- マンション (鉄筋コンクリート)
- 築年数
- 築19年
- 向き
- 西
- 交通
- 東急東横線 / 綱島駅徒歩11分
- 東急東横線 / 大倉山駅徒歩17分
- 住所
- 神奈川県横浜市港北区樽町1丁目21-15
無料で10秒! カンタンお問い合わせ

ピエス綱島
敷
37.6万円礼
37.6万円特徴
バス・トイレ別
2階以上
エアコン付き
ペット相談可
駐車場あり
室内洗濯機置場
オートロック
洗面所独立
- 入居条件
- 楽器相談、二人入居可最新の空室状況が知りたい
- バス・トイレ
- 専用バス、専用トイレ、バストイレ別、シャワー、追焚機能浴室、温水洗浄便座、浴室乾燥機、洗面所独立
- キッチン
- ガスコンロ対応、3口以上コンロ、システムキッチン
- セキュリティ
- オートロック、防犯カメラ
- 室内設備
- エアコン、室内洗濯置、CATV、CS、BS、フローリング、光ファイバー、クロゼット、シューズボックスお部屋の詳しい情報を知りたい
- 部屋の特徴
- バルコニー、二階以上写真を送ってほしい
- 共用部
- エレベーター、宅配ボックス、駐輪場、バイク置場、敷地内駐車場
- その他の特徴
- 駐車場あり
無料で10秒! カンタンお問い合わせ

ピエス綱島
敷
37.6万円礼
37.6万円不動産会社からのコメント
共用部にはゴミ出し24時間OK・宅配ボックスなどが揃っており、とても充実しています。収納はクロゼット
セキュリティ面は、オートロック・TVインターホンなどを備え付けているので安心して暮らせます。収納はシューズボックス・クロゼットなど豊富なので、衣類や履き物の整理がしやすく便利です。共用部には宅配ボックス・ゴミ出し24時間OKなどが揃っており、とても充実しています。横浜市港北区や綱島付近のことなら、当社までお気軽にご連絡下さい。あなたに合う素敵なお部屋がきっと見つかります。
その他
- 駐車/駐輪
- 空有 費用: 14,300円 税: 税込み / あり駐車可能な車種や台数を知りたい
- 入居時期
- 損保
- 住宅保険: 要
- 保証人代行
- 加入要 費用: 詳細はお問い合わせください。
- その他費用
初期費用を知りたい鍵交換費用:22,000円
- 情報
情報登録日:2025/10/10
情報更新日:2025/12/18
次回更新予定日:2025/12/22
- 備考
- 現況: 空家 更新料: 新賃料の1.0ヶ月分 契約期間: 2年 管理人: 日勤 自社管理番号: 4049167
取扱い会社
- 取扱い会社
- 神宮前不動産株式会社条件が近い物件も紹介してほしい
- 免許番号
- 東京都知事(1)第105473号
- 取引態様
- 仲介
- 所在地
- 東京都渋谷区神宮前6丁目19−15 高野第一ビル 6階
- 電話番号
- 03-6427-1124
- 営業時間
- 10:00~19:00
- 定休日
- 水曜日
おすすめ物件 (1件)
賃貸アパート
アベニール大倉山

東急東横線 / 大倉山駅 徒歩20分
築1年 / 3階建
神奈川県横浜市港北区大倉山6丁目27-20

17.5万円 / 管理費6,000円
敷
無料礼
35万円2LDK / 62.68㎡ / 2階
賃貸アパート
アベニール大倉山

東急東横線 / 大倉山駅 徒歩20分
築1年 / 3階建
神奈川県横浜市港北区大倉山6丁目27-20

17.5万円 / 管理費6,000円
敷
無料礼
35万円2LDK / 62.68㎡ / 2階







