レキシントンスクエア白金高輪2LDK/10階(東京都港区 / 白金高輪駅)の賃貸
1/25
1/25
32万円
初期費用を知りたい管理費20,000円
- 敷金
- 無料
- 保証金
- なし
- 礼金
- 無料
- 広さ
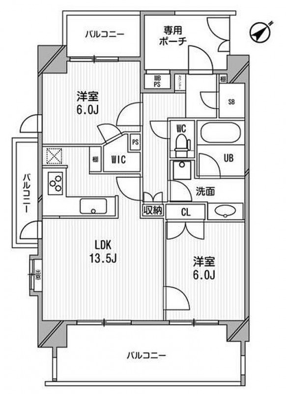
- 56.22㎡
- 階数
- 10階 / 地上22階地下1階建
- 間取り
- 2LDK
- 建物
- マンション (鉄筋コンクリート)
- 築年数
- 築20年
- 向き
- 南東
- 交通
- 都営三田線 / 白金高輪駅徒歩1分
- 東京メトロ南北線 / 白金高輪駅徒歩1分
- 住所
- 東京都港区高輪1丁目
コンビニエンスストア 394m
スーパーマーケット 249m
ピーコックストア 高輪魚籃坂店 249m
無料で10秒! カンタンお問い合わせ

レキシントンスクエア白金高輪
敷
無料礼
無料特徴
バス・トイレ別
2階以上
エアコン付き
ペット相談可
駐車場あり
室内洗濯機置場
オートロック
洗面所独立
- 入居条件
- 初期費用カード決済可、ペット不可、保証人不要最新の空室状況が知りたい
- バス・トイレ
- 専用バス、専用トイレ、バストイレ別、シャワー、追焚機能浴室、温水洗浄便座、浴室乾燥機、洗面所独立、オートバス
- キッチン
- ガスコンロ対応、2口コンロ、システムキッチン
- セキュリティ
- オートロック、防犯カメラ
- 室内設備
- エアコン、室内洗濯置、フローリング、クロゼット、シューズボックス、照明付お部屋の詳しい情報を知りたい
- 部屋の特徴
- バルコニー、二階以上写真を送ってほしい
- 共用部
- エレベーター、宅配ボックス、駐輪場、バイク置場
- その他の特徴
- 公営水道、都市ガス、下水、分譲賃貸
無料で10秒! カンタンお問い合わせ

レキシントンスクエア白金高輪
敷
無料礼
無料同じ建物で掲載中の物件 (9件)
不動産会社からのコメント
歩いて346mの場所に、クイーンズ伊勢丹白金高輪店があります。共用部にはゴミ出し24時間OK・宅配ボ
こだわりポイント満載のレキシントンスクエア白金高輪。セキュリティ面は、TVインターホン・オートロックなど充実しているので、防犯対策もばっちりです。独立洗面台を備えているので、洗面台前で身支度をサッと整えられます。賃貸住宅をお探しの方は、お気軽に当社へご連絡下さい。当社は、お客様のご希望に適した住まいのご紹介をいたします。また、しっかりとサポート致しますのでご安心してお任せ下さい。
その他
- 駐車/駐輪
- 要確認 / あり駐車可能な車種や台数を知りたい
- 入居時期
- 2026年2月中旬最新の空室状況が知りたい
- 損保
- 住宅保険: 要
- 保証人代行
- 加入要 費用: 初回保証料:40%、月次:無、更新料:10000円/1年 or 14000円/1年
- その他費用
初期費用を知りたい鍵交換費用:42,900円
- 情報
情報登録日:2025/12/10
情報更新日:2025/12/11
次回更新予定日:2025/12/18
- 備考
- 現況: 居住中 更新料: 新賃料の1.0ヶ月分 契約期間: 2年 その他交通: 東京地下鉄南北線 白金台駅 徒歩11分 自社管理番号: 6498649
取扱い会社
- 取扱い会社
- 株式会社リブマックスリーシング 新橋駅前店条件が近い物件も紹介してほしい
- 免許番号
- 国土交通大臣 (3) 第8116号
- 取引態様
- 仲介
- 所在地
- 東京都港区新橋2丁目6-7 花菱ビル 5F
- 電話番号
- 03-3503-5050
- 定休日
- 無し(年末年始、GW、夏季)
- 所属団体名
- 公益社団法人 全国宅地建物取引業保証協会
おすすめ物件 (5件)
賃貸マンション
カスタリア高輪

東京メトロ南北線 / 白金高輪駅 徒歩12分
築20年 / 地上12階地下1階建
東京都港区高輪2丁目

31万円 / 管理費10,000円
敷
31万円礼
31万円1LDK / 53.81㎡ / 3階
賃貸マンション
都営三田線 白金高輪駅 13階建 築31年
東京メトロ南北線 / 白金高輪駅 徒歩8分
築30年 / 13階建
東京都港区南麻布2
33.8万円 / 管理費22,000円
敷
67.6万円礼
33.8万円2LDK / 63.48㎡ / 5階
賃貸マンション
ライオンズシティ白金高輪

東京メトロ南北線 / 白金高輪駅 徒歩6分
築20年 / 12階建
東京都港区三田5丁目

33.2万円 / 管理費20,000円
敷
無料礼
無料2LDK / 61.23㎡ / 9階
賃貸マンション
港区南麻布3丁目 地上3階地下1階建 2013年築

東京メトロ南北線 / 白金高輪駅 徒歩10分
築12年 / 3階建
東京都港区南麻布3丁目

家賃カード決済可
31.6万円 / 管理費なし
敷
31.6万円礼
31.6万円2LDK / 60.89㎡ / 3階
賃貸マンション
港区高輪2丁目 地上10階地下1階建 2004年築

東京メトロ南北線 / 白金高輪駅 徒歩7分
築21年 / 地上10階地下1階建
東京都港区高輪2丁目1-9

32万円 / 管理費10,000円
敷
32万円礼
32万円1LDK / 55.58㎡ / 8階
賃貸マンション
カスタリア高輪

東京メトロ南北線 / 白金高輪駅 徒歩12分
築20年 / 地上12階地下1階建
東京都港区高輪2丁目

31万円 / 管理費10,000円
敷
31万円礼
31万円1LDK / 53.81㎡ / 3階
賃貸マンション
都営三田線 白金高輪駅 13階建 築31年
東京メトロ南北線 / 白金高輪駅 徒歩8分
築30年 / 13階建
東京都港区南麻布2
33.8万円 / 管理費22,000円
敷
67.6万円礼
33.8万円2LDK / 63.48㎡ / 5階
賃貸マンション
ライオンズシティ白金高輪

東京メトロ南北線 / 白金高輪駅 徒歩6分
築20年 / 12階建
東京都港区三田5丁目

33.2万円 / 管理費20,000円
敷
無料礼
無料2LDK / 61.23㎡ / 9階
賃貸マンション
港区南麻布3丁目 地上3階地下1階建 2013年築

東京メトロ南北線 / 白金高輪駅 徒歩10分
築12年 / 3階建
東京都港区南麻布3丁目

家賃カード決済可
31.6万円 / 管理費なし
敷
31.6万円礼
31.6万円2LDK / 60.89㎡ / 3階
賃貸マンション
港区高輪2丁目 地上10階地下1階建 2004年築

東京メトロ南北線 / 白金高輪駅 徒歩7分
築21年 / 地上10階地下1階建
東京都港区高輪2丁目1-9

32万円 / 管理費10,000円
敷
32万円礼
32万円1LDK / 55.58㎡ / 8階
同じ最寄り駅 × 同じ特徴 で探す
同じ市区町村 × 同じ特徴 で探す
































