世田谷区下馬6丁目 5階建 1983年築(東京都世田谷区 / 学芸大学駅) の賃貸物件情報
募集中のお部屋が2件あります
































1/16
1/16
- 建物
- マンション (鉄筋コンクリート)
- 築年数
- 築42年 (1983年)
- 駐車場
- 近隣 費用: 38,500円(税込) 距離: 210m
- 交通
- 東急東横線 / 学芸大学駅徒歩5分
- 東急東横線 / 祐天寺駅徒歩18分
- 山手線 / 恵比寿駅バス17分 下馬六丁目下車 徒歩4分
- 住所
- 東京都世田谷区下馬6丁目15-13
掲載中の物件(2件)
- 東急ストア駒沢通り野沢店 403m
- セブンイレブン野沢店 197m
- マツモトキヨシ学芸大学東口店 599m
- GAKUDAI KOUKASHITA 556m
- かやしま医院 249m
- 碑文谷公園 560m
その他
- 駐車/駐輪
- 近隣 費用: 38,500円(税込) 距離: 210m
- 入居時期
- 即
- 損保
- 住宅保険: 要
- 保証代行人
- 連帯保証人: 不要 保証人代行: 必須 保証人代行会社: その他 月額賃料等の50%(初回保証料)、440円/月(口座振替手数料)、2年目以降は1万円/年
- その他費用
- -
- 情報
情報登録日:2025/6/8
情報更新日:2025/12/13
次回更新予定日:2025/12/28
- 備考
- 契約期間: 2年
この建物からのPick Up
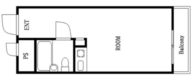
1R/4階
1/28
1/28
5.8 万円 / 管理費5,000円
- 敷金
- 5.8万円
- 保証金
- なし
- 礼金
- 5.8万円
- 広さ
- 14.71㎡
- 階数
- 4階 / 5階建
- 間取り
- 1R (洋6帖)
- 向き
- 南
無料で10秒! カンタンお問い合わせ

世田谷区下馬6丁目 5階建 1983年築
敷
5.8万円礼
5.8万円特徴
バス・トイレ別
2階以上
エアコン付き
ペット相談可
駐車場あり
室内洗濯機置場
オートロック
洗面所独立
- 入居条件
- 即入居可、保証人不要
- バス・トイレ
- 給湯、シャワー、洗面台
- キッチン
- 2口コンロ、ガスコンロ対応
- セキュリティ
- オートロック
- 室内設備
- エアコン、インターホン、インターネット対応、シューズボックス
- 部屋の特徴
- バルコニー、二階以上
- 共用部
- 敷地内ごみ置き場
- その他の特徴
- 下水、分譲賃貸、公営水道、駐車場あり、外壁タイル張り
無料で10秒! カンタンお問い合わせ

世田谷区下馬6丁目 5階建 1983年築
敷
5.8万円礼
5.8万円おすすめ物件 (10件)
賃貸アパート
パークサイド八雲
)
東急東横線 / 学芸大学駅 徒歩23分
築36年 / 2階建
東京都目黒区八雲5丁目11-24
)
7.3万円 / 管理費2,000円
敷
7.3万円礼
7.3万円1K / 26.31㎡ / 1階
賃貸マンション
パシモントハウス

東急東横線 / 学芸大学駅 徒歩21分
築30年 / 3階建
東京都目黒区柿の木坂1丁目

7.5万円 / 管理費3,000円
敷
7.5万円礼
7.5万円ワンルーム / 25.02㎡ / 1階
賃貸マンション
安東ビル
)
東急東横線 / 学芸大学駅 徒歩13分
築30年 / 3階建
東京都目黒区目黒本町2丁目22-11
)
6.3万円 / 管理費3,000円
敷
6.3万円礼
6.3万円ワンルーム / 25㎡ / 1階
賃貸アパート
けやきハイツ

東急東横線 / 学芸大学駅 徒歩14分
築43年 / 2階建
東京都世田谷区野沢3丁目22-3

家賃カード決済可
6.7万円 / 管理費3,000円
敷
6.7万円礼
無料1DK / 23㎡ / 1階
賃貸マンション
ハウスエディ

東急東横線 / 祐天寺駅 徒歩17分
築45年 / 4階建
東京都世田谷区下馬1丁目32-10

6.4万円 / 管理費3,000円
敷
6.4万円礼
6.4万円1K / 22.65㎡ / 3階
賃貸マンション
東が丘ハイツ

東急東横線 / 学芸大学駅 徒歩19分
築37年 / 地上2階地下1階建
東京都目黒区東が丘1丁目13-17

6.3万円 / 管理費2,000円
敷
6.3万円礼
無料1K / 20.48㎡ / 1階
賃貸アパート
パークサイド八雲
)
東急東横線 / 学芸大学駅 徒歩23分
築36年 / 2階建
東京都目黒区八雲5丁目11-24
)
7.3万円 / 管理費2,000円
敷
7.3万円礼
7.3万円1K / 26.31㎡ / 1階
賃貸マンション
パシモントハウス

東急東横線 / 学芸大学駅 徒歩21分
築30年 / 3階建
東京都目黒区柿の木坂1丁目

7.5万円 / 管理費3,000円
敷
7.5万円礼
7.5万円ワンルーム / 25.02㎡ / 1階
賃貸マンション
安東ビル
)
東急東横線 / 学芸大学駅 徒歩13分
築30年 / 3階建
東京都目黒区目黒本町2丁目22-11
)
6.3万円 / 管理費3,000円
敷
6.3万円礼
6.3万円ワンルーム / 25㎡ / 1階
賃貸アパート
けやきハイツ

東急東横線 / 学芸大学駅 徒歩14分
築43年 / 2階建
東京都世田谷区野沢3丁目22-3

家賃カード決済可
6.7万円 / 管理費3,000円
敷
6.7万円礼
無料1DK / 23㎡ / 1階
賃貸マンション
ハウスエディ

東急東横線 / 祐天寺駅 徒歩17分
築45年 / 4階建
東京都世田谷区下馬1丁目32-10

6.4万円 / 管理費3,000円
敷
6.4万円礼
6.4万円1K / 22.65㎡ / 3階
賃貸マンション
東が丘ハイツ

東急東横線 / 学芸大学駅 徒歩19分
築37年 / 地上2階地下1階建
東京都目黒区東が丘1丁目13-17

6.3万円 / 管理費2,000円
敷
6.3万円礼
無料1K / 20.48㎡ / 1階

















)
)
