東急世田谷線 上町駅 3階建 新築1LDK/2階(東京都世田谷区 / 上町駅)の賃貸
1/20
1/20
16.2万円
初期費用を知りたい管理費3,300円
- 敷金
- 無料
- 保証金
- なし
- 礼金
- 24.3万円
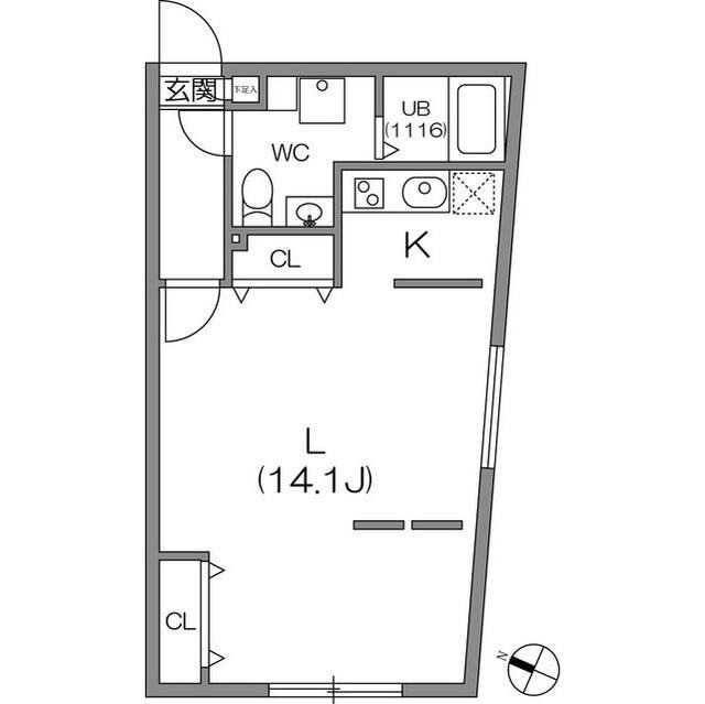
- 広さ
- 41.97㎡
- 階数
- 2階 / 3階建
- 間取り
- 1LDK
- 建物
- アパート (木造)
- 築年数
- 新築
- 向き
- 南
- 交通
- 東急世田谷線 / 上町駅徒歩7分
- 東急田園都市線 / 桜新町駅徒歩18分
- 小田急線 / 経堂駅徒歩18分
- 住所
- 東京都世田谷区世田谷2
ぴっころ保育園(幼稚園・保育園)まで1234m
さくら幼稚園(幼稚園・保育園)まで1568m
ファミリーマート 世田谷二丁目店(コンビニ)まで319m
サミットストア 桜店(スーパー)まで406m
セブンイレブン 世田谷桜小前店(コンビニ)まで480m
セブンイレブン 世田谷駒留通り店(コンビニ)まで626m
無料で10秒! カンタンお問い合わせ
東急世田谷線 上町駅 3階建 新築
敷
無料礼
24.3万円特徴
バス・トイレ別
2階以上
エアコン付き
ペット相談可
駐車場あり
室内洗濯機置場
オートロック
洗面所独立
- 入居条件
- 保証人不要最新の空室状況が知りたい
- バス・トイレ
- バストイレ別、浴室乾燥機、追焚機能浴室、温水洗浄便座、洗面所独立
- キッチン
- ガスコンロ対応、システムキッチン、3口以上コンロ、カウンターキッチン
- セキュリティ
- オートロック、防犯カメラ、24時間緊急通報システム
- 室内設備
- エアコン、クロゼット、室内洗濯置、シューズボックス、光ファイバー、CS、ネット使用料不要、24時間換気システム、BSお部屋の詳しい情報を知りたい
- 部屋の特徴
- バルコニー、角住戸、二階以上写真を送ってほしい
- 共用部
- 宅配ボックス、敷地内ごみ置き場
- その他の特徴
- 都市ガス
無料で10秒! カンタンお問い合わせ
東急世田谷線 上町駅 3階建 新築
敷
無料礼
24.3万円同じ建物で掲載中の物件 (1件)
不動産会社からのコメント
他社様掲載の物件まとめてご案内できます♪お問い合わせ下さい♪
【豪徳寺駅・三軒茶屋駅・中目黒駅・下高井戸駅の4店舗で営業中♪】お部屋探しはファニーホーム♪地域密着店だから出来るお家賃交渉や当社独自の物件情報がございます!他社様掲載物件のお調べ・ご紹介が可能です♪
その他
- 駐車/駐輪
- 要確認 / なし駐車可能な車種や台数を知りたい
- 入居時期
- 2026年3月中旬最新の空室状況が知りたい
- 損保
- 要
- 保証人代行
- -
- その他費用
合計0.33万円(内訳:鍵交換代0.33万円) 初期費用を知りたい- 情報
情報登録日:2025/11/14
情報更新日:2025/12/6
次回更新予定日:2025/12/22
- 備考
- 契約期間: 普通借家 2年 保証会社: 保証会社利用必 保証委託料 契約時:22000円 月額:賃料総額の2.2%又は5.5%必要。 その他:▲▽初期費用に関して▽▲クレジットカード払いも可能です!初期費用等ご不安な事はお気軽にご相談ください。賃貸、売買、賃貸管理はファニーホームへお任せください!★リモート内見承ります★ / 条件: 二人入居可 / ほか初期費用: 合計0.33万円(内訳:鍵交換代0.33万円) / ほか諸費用: 室内清掃費用 60000円 収納手数料 月額170円
取扱い会社
- 取扱い会社
- 株式会社ファニーホーム 三軒茶屋店条件が近い物件も紹介してほしい
- 免許番号
- 東京都知事 (1) 第103922号
- 取引態様
- 一般媒介
- 所在地
- 東京都世田谷区三軒茶屋1-36-6
- 電話番号
- 03-6450-9212
- 営業時間
- 10:00~19:00
- 定休日
- 無(年末年始・夏季休暇・GW)
- 所属団体名
- (公社)東京都宅地建物取引業協会
おすすめ物件 (13件)
賃貸マンション
ミリアレジデンス桜新町

東急田園都市線 / 桜新町駅 徒歩7分
築18年 / 5階建
東京都世田谷区用賀3丁目

16.7万円 / 管理費15,000円
敷
無料礼
無料1K / 33.16㎡ / 2階
賃貸マンション
世田谷区世田谷3丁目 6階建 2008年築

東急世田谷線 / 上町駅 徒歩2分
築17年 / 6階建
東京都世田谷区世田谷3丁目4-2

14.3万円 / 管理費なし
敷
14.3万円礼
14.3万円1LDK / 37.62㎡ / 2階
賃貸マンション
世田谷区世田谷3丁目 6階建 2008年築

東急世田谷線 / 上町駅 徒歩2分
築17年 / 6階建
東京都世田谷区世田谷3丁目4-2

14.3万円 / 管理費なし
敷
14.3万円礼
14.3万円1LDK / 37.62㎡ / 2階
賃貸アパート
Liberte経堂

小田急小田原線 / 経堂駅 徒歩2分
築8年 / 3階建
東京都世田谷区経堂2丁目

15.5万円 / 管理費3,000円
敷
15.5万円礼
15.5万円1LDK / 50.3㎡ / 3階
賃貸マンション
ミヤコウエスト

小田急小田原線 / 経堂駅 徒歩4分
築7年 / 3階建
東京都世田谷区宮坂3丁目

15.5万円 / 管理費5,000円
敷
15.5万円礼
15.5万円1LDK / 40.14㎡ / 2階
賃貸マンション
EXAM用賀
東急田園都市線 / 桜新町駅 徒歩8分
築7年 / 5階建
東京都世田谷区用賀2
17.5万円 / 管理費15,000円
敷
17.5万円礼
17.5万円1LDK / 40.33㎡ / 5階
賃貸マンション
ガーデン千歳船橋

小田急小田原線 / 経堂駅 徒歩13分
築16年 / 5階建
東京都世田谷区船橋5丁目1-8

17.2万円 / 管理費8,000円
敷
17.2万円礼
17.2万円1LDK / 51.76㎡ / 5階
賃貸マンション
Ferio経堂

小田急小田原線 / 経堂駅 徒歩3分
築10年 / 地上5階地下1階建
東京都世田谷区経堂1丁目6-12

15.3万円 / 管理費11,500円
敷
30.6万円礼
8.415万円1LDK / 41.02㎡ / 3階
賃貸アパート
メゾン アイティ クイーン

東急世田谷線 / 上町駅 徒歩7分
新築 / 3階建
東京都世田谷区世田谷2丁目29

16.3万円 / 管理費3,300円
敷
無料礼
24.4万円1LDK / 41.97㎡ / 3階
賃貸マンション
ZESTY駒沢大学Ⅱ

東急田園都市線 / 桜新町駅 徒歩25分
築19年 / 4階建
東京都目黒区東が丘2丁目12-21

16.4万円 / 管理費10,000円
敷
無料礼
16.4万円1DK / 39.95㎡ / 2階
賃貸マンション
世田谷区経堂3丁目 3階建 2017年築

小田急小田原線 / 経堂駅 徒歩11分
築8年 / 3階建
東京都世田谷区経堂3丁目16‐13

14.8万円 / 管理費10,000円
敷
14.8万円礼
14.8万円1LDK / 41.69㎡ / 2階
賃貸マンション
ミリアレジデンス桜新町

東急田園都市線 / 桜新町駅 徒歩7分
築18年 / 5階建
東京都世田谷区用賀3丁目

16.7万円 / 管理費15,000円
敷
無料礼
無料1K / 33.16㎡ / 2階
賃貸マンション
世田谷区世田谷3丁目 6階建 2008年築

東急世田谷線 / 上町駅 徒歩2分
築17年 / 6階建
東京都世田谷区世田谷3丁目4-2

14.3万円 / 管理費なし
敷
14.3万円礼
14.3万円1LDK / 37.62㎡ / 2階
賃貸マンション
世田谷区世田谷3丁目 6階建 2008年築

東急世田谷線 / 上町駅 徒歩2分
築17年 / 6階建
東京都世田谷区世田谷3丁目4-2

14.3万円 / 管理費なし
敷
14.3万円礼
14.3万円1LDK / 37.62㎡ / 2階
賃貸アパート
Liberte経堂

小田急小田原線 / 経堂駅 徒歩2分
築8年 / 3階建
東京都世田谷区経堂2丁目

15.5万円 / 管理費3,000円
敷
15.5万円礼
15.5万円1LDK / 50.3㎡ / 3階
賃貸マンション
ミヤコウエスト

小田急小田原線 / 経堂駅 徒歩4分
築7年 / 3階建
東京都世田谷区宮坂3丁目

15.5万円 / 管理費5,000円
敷
15.5万円礼
15.5万円1LDK / 40.14㎡ / 2階
賃貸マンション
EXAM用賀
東急田園都市線 / 桜新町駅 徒歩8分
築7年 / 5階建
東京都世田谷区用賀2
17.5万円 / 管理費15,000円
敷
17.5万円礼
17.5万円1LDK / 40.33㎡ / 5階
賃貸マンション
ガーデン千歳船橋

小田急小田原線 / 経堂駅 徒歩13分
築16年 / 5階建
東京都世田谷区船橋5丁目1-8

17.2万円 / 管理費8,000円
敷
17.2万円礼
17.2万円1LDK / 51.76㎡ / 5階
賃貸マンション
Ferio経堂

小田急小田原線 / 経堂駅 徒歩3分
築10年 / 地上5階地下1階建
東京都世田谷区経堂1丁目6-12

15.3万円 / 管理費11,500円
敷
30.6万円礼
8.415万円1LDK / 41.02㎡ / 3階
賃貸アパート
メゾン アイティ クイーン

東急世田谷線 / 上町駅 徒歩7分
新築 / 3階建
東京都世田谷区世田谷2丁目29

16.3万円 / 管理費3,300円
敷
無料礼
24.4万円1LDK / 41.97㎡ / 3階
賃貸マンション
ZESTY駒沢大学Ⅱ

東急田園都市線 / 桜新町駅 徒歩25分
築19年 / 4階建
東京都目黒区東が丘2丁目12-21

16.4万円 / 管理費10,000円
敷
無料礼
16.4万円1DK / 39.95㎡ / 2階
賃貸マンション
世田谷区経堂3丁目 3階建 2017年築

小田急小田原線 / 経堂駅 徒歩11分
築8年 / 3階建
東京都世田谷区経堂3丁目16‐13

14.8万円 / 管理費10,000円
敷
14.8万円礼
14.8万円1LDK / 41.69㎡ / 2階


