シティノーブル中の島2LDK/4階(北海道札幌市豊平区 / 中の島駅)の賃貸
1/18
1/18
8万円
初期費用を知りたい管理費4,000円
- 敷金
- 8万円
- 保証金
- なし
- 礼金
- 無料
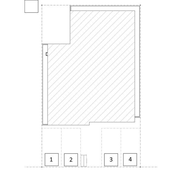
- 広さ
- 48.07㎡
- 階数
- 4階 / 4階建
- 間取り
- 2LDK
- 建物
- マンション (鉄筋コンクリート)
- 築年数
- 新築
- 向き
- 南
- 交通
- 地下鉄南北線 / 中の島駅徒歩9分
- 札幌市電 / 幌南小学校前駅徒歩10分
- 住所
- 北海道札幌市豊平区中の島二条5丁目
札幌市立中の島小学校 850m
札幌市立中の島中学校 350m
コンビニエンスストア 342m
スーパーマーケット 277m
ドラッグストア 528m
無料で10秒! カンタンお問い合わせ

シティノーブル中の島
敷
8万円礼
無料特徴
バス・トイレ別
2階以上
エアコン付き
ペット相談可
駐車場あり
室内洗濯機置場
オートロック
洗面所独立
- 入居条件
- 二人入居可、ペット可、保証人不要、小型犬可、初期費用カード決済可、礼金不要最新の空室状況が知りたい
- バス・トイレ
- 給湯、追焚機能浴室、シャワー付洗面化粧台、温水洗浄便座、浴室乾燥機、洗面所独立、専用バス、バストイレ別、シャワー
- セキュリティ
- オートロック、防犯カメラ
- 室内設備
- CS、BS、クロゼット、シューズボックス、エアコン、ガス暖房、室内洗濯置、フローリング、インターネット対応、ネット使用料不要お部屋の詳しい情報を知りたい
- 部屋の特徴
- 角住戸、二階以上、最上階写真を送ってほしい
- その他の特徴
- 公営水道、都市ガス、下水
無料で10秒! カンタンお問い合わせ

シティノーブル中の島
敷
8万円礼
無料不動産会社からのコメント
お部屋探しのご相談からご契約までオンライン対応が可能です。
お部屋探しの「面倒・大変・不安」は、北海道で生まれ育ったわたしたち常口アトムが解決します。お客様のライフステージにあわせた「迅速・安心・丁寧」なお客様目線のお部屋探しを常口アトムがお届けします。
その他
- 駐車/駐輪
- 空無 / なし駐車可能な車種や台数を知りたい
- 入居時期
- 2026年3月上旬最新の空室状況が知りたい
- 損保
- 住宅保険: 要
- 保証人代行
- 加入要 会社名: オリコフォレントインシュア(保証会社) 費用: 初回保証料 月額賃料等の50% 月額保証料1.5% その他保証プラン有
- その他費用
初期費用を知りたいペット礼金:80,000円
24時間管理費:1,100円
町内会費:200円
鍵交換費用:11,000円
- 情報
情報登録日:2025/11/4
情報更新日:2025/12/15
次回更新予定日:2025/12/22
- 備考
- 現況: 未完成 状態: 未入居 契約期間: 2年 管理人: 巡回 総戸数: 12戸 その他交通: 札幌市営地下鉄南北線平岸駅 徒歩10分 自社管理番号: 1620865
取扱い会社
- 取扱い会社
- 株式会社常口アトム 平岸店条件が近い物件も紹介してほしい
- 免許番号
- 北海道知事 石狩(3)第7934号
- 取引態様
- 仲介
- 所在地
- 北海道札幌市豊平区平岸3条6丁目6番25号 サンセットハイツ 1F
- 電話番号
- 011-817-0500
- 営業時間
- 10:00~18:30
- 定休日
- 水曜日(1~3月は除く)
- 所属団体名
- 宅地建物取引業協会
おすすめ物件 (7件)
賃貸マンション
ファランドール平岸

地下鉄南北線 / 中の島駅 徒歩7分
築12年 / 4階建
北海道札幌市豊平区平岸一条2丁目7番27号

7.3万円 / 管理費4,000円
敷
7.3万円礼
無料2LDK / 46.83㎡ / 4階
賃貸マンション
アンコールワット

地下鉄南北線 / 中の島駅 徒歩9分
築16年 / 4階建
北海道札幌市豊平区平岸一条9丁目2番15号

7万円 / 管理費4,000円
敷
7万円礼
無料2LDK / 46.98㎡ / 3階
賃貸マンション
バインド

地下鉄南北線 / 中の島駅 徒歩10分
築35年 / 8階建
北海道札幌市豊平区平岸三条7丁目4番3号

7.5万円 / 管理費5,000円
敷
7.5万円礼
無料2LDK / 45㎡ / 5階
賃貸マンション
EF Town 2nd

地下鉄南北線 / 中の島駅 徒歩7分
築18年 / 8階建
北海道札幌市豊平区中の島一条4丁目5番1号

8.6万円 / 管理費6,000円
敷
8.6万円礼
無料2LDK / 53.2㎡ / 4階
賃貸マンション
ラフィナート山鼻
地下鉄南北線 / 中の島駅 徒歩14分
築4年 / 4階建
北海道札幌市中央区南十五条西7
6.2万円 / 管理費5,000円
敷
6.2万円礼
無料1K / 38.19㎡ / 2階
賃貸マンション
札幌市電 石山通駅 4階建 築7年
札幌市電 / 幌南小学校前駅 徒歩7分
築6年 / 4階建
北海道札幌市中央区南二十一条西9
6.7万円 / 管理費4,000円
敷
6.7万円礼
無料2LDK / 50㎡ / 2階
賃貸マンション
地下鉄南北線 南平岸駅 4階建 新築
札幌市電 / 幌南小学校前駅 徒歩15分
新築 / 4階建
北海道札幌市豊平区中の島二条8
9.3万円 / 管理費5,000円
敷
無料礼
9.3万円2LDK / 54.42㎡ / 2階
賃貸マンション
ファランドール平岸

地下鉄南北線 / 中の島駅 徒歩7分
築12年 / 4階建
北海道札幌市豊平区平岸一条2丁目7番27号

7.3万円 / 管理費4,000円
敷
7.3万円礼
無料2LDK / 46.83㎡ / 4階
賃貸マンション
アンコールワット

地下鉄南北線 / 中の島駅 徒歩9分
築16年 / 4階建
北海道札幌市豊平区平岸一条9丁目2番15号

7万円 / 管理費4,000円
敷
7万円礼
無料2LDK / 46.98㎡ / 3階
賃貸マンション
バインド

地下鉄南北線 / 中の島駅 徒歩10分
築35年 / 8階建
北海道札幌市豊平区平岸三条7丁目4番3号

7.5万円 / 管理費5,000円
敷
7.5万円礼
無料2LDK / 45㎡ / 5階
賃貸マンション
EF Town 2nd

地下鉄南北線 / 中の島駅 徒歩7分
築18年 / 8階建
北海道札幌市豊平区中の島一条4丁目5番1号

8.6万円 / 管理費6,000円
敷
8.6万円礼
無料2LDK / 53.2㎡ / 4階
賃貸マンション
ラフィナート山鼻
地下鉄南北線 / 中の島駅 徒歩14分
築4年 / 4階建
北海道札幌市中央区南十五条西7
6.2万円 / 管理費5,000円
敷
6.2万円礼
無料1K / 38.19㎡ / 2階
賃貸マンション
札幌市電 石山通駅 4階建 築7年
札幌市電 / 幌南小学校前駅 徒歩7分
築6年 / 4階建
北海道札幌市中央区南二十一条西9
6.7万円 / 管理費4,000円
敷
6.7万円礼
無料2LDK / 50㎡ / 2階
賃貸マンション
地下鉄南北線 南平岸駅 4階建 新築
札幌市電 / 幌南小学校前駅 徒歩15分
新築 / 4階建
北海道札幌市豊平区中の島二条8
9.3万円 / 管理費5,000円
敷
無料礼
9.3万円2LDK / 54.42㎡ / 2階



















