イーストメゾンビルT1K/4階/0402(千葉県松戸市 / 東松戸駅)の賃貸
1/19
1/19
6.2万円
初期費用を知りたい管理費6,000円
- 敷金
- 6.2万円
- 保証金
- なし
- 礼金
- 12.4万円
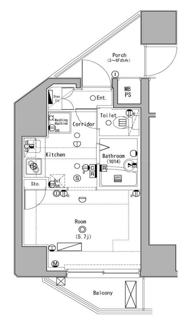
- 広さ
- 26.73㎡
- 階数
- 4階 / 9階建
- 間取り
- 1K
- 建物
- マンション (鉄筋コンクリート)
- 築年数
- 築14年
- 向き
- 南西
- 交通
- 武蔵野線 / 東松戸駅徒歩2分
- 武蔵野線 / 新松戸駅徒歩18分
- 住所
- 千葉県松戸市東松戸1丁目6-5
銀行 359m
東松戸中央公園 411m
無料で10秒! カンタンお問い合わせ

イーストメゾンビルT
敷
6.2万円礼
12.4万円特徴
バス・トイレ別
2階以上
エアコン付き
ペット相談可
駐車場あり
室内洗濯機置場
オートロック
洗面所独立
- 入居条件
- 楽器不可、事務所(SOHO)不可、二人入居不可、ペット不可最新の空室状況が知りたい
- バス・トイレ
- 専用バス、専用トイレ、シャワー付洗面化粧台
- キッチン
- ガスコンロ対応、2口コンロ、システムキッチン
- セキュリティ
- オートロック
- 室内設備
- エアコン、室内洗濯置お部屋の詳しい情報を知りたい
- 部屋の特徴
- 二階以上写真を送ってほしい
- 共用部
- エレベーター、宅配ボックス、駐輪場
- その他の特徴
- 公営水道、都市ガス、下水、外壁タイル張り
無料で10秒! カンタンお問い合わせ

イーストメゾンビルT
敷
6.2万円礼
12.4万円同じ建物で掲載中の物件 (1件)
不動産会社からのコメント
TLC2200円(月額)
その他
- 駐車/駐輪
- 無 / あり駐車可能な車種や台数を知りたい
- 入居時期
- 損保
- 住宅保険: 要
- 保証人代行
- 会社名: オリコフォレントインシュア 費用: 初回:総賃料の50% ・ 月額継続保証料:総賃料の2%
- その他費用
初期費用を知りたいエアコンクリーニング費用:16,500円
新入居応援セット:42,900円
- 情報
情報登録日:2025/12/14
情報更新日:2025/12/13
次回更新予定日:2025/12/21
- 備考
- 現況: 居住中 償却・敷引金: 62,000円 更新料: 新賃料の1.0ヶ月分 契約期間: 2年 管理人: 巡回 自社管理番号: 250968
取扱い会社
- 取扱い会社
- 株式会社タイセイ・ハウジー 西船橋営業所条件が近い物件も紹介してほしい
- 免許番号
- 国土交通大臣(10) 第3440号
- 取引態様
- 代理
- 所在地
- 千葉県船橋市西船4丁目23-7
- 電話番号
- 047-434-6181
- 営業時間
- 10:00~18:00
- 定休日
- 水曜日(1月~3月は無休)(GW・夏季休暇・年末年始)
おすすめ物件 (7件)
賃貸アパート
松戸市秋山1丁目 2階建 2020年築

成田スカイアクセス / 東松戸駅 徒歩19分
築5年 / 2階建
千葉県松戸市秋山1丁目9-6

7.5万円 / 管理費4,000円
敷
無料礼
7.5万円1LDK / 25.94㎡ / 2階
賃貸アパート
KEIAI RESIDENCE新松戸I

常磐線 / 新松戸駅 徒歩10分
新築 / 3階建
千葉県松戸市大谷口

7.3万円 / 管理費3,500円
敷
無料礼
7.3万円1K / 22.87㎡ / 3階
賃貸マンション
イーストメゾンビルT

武蔵野線 / 東松戸駅 徒歩2分
築14年 / 9階建
千葉県松戸市東松戸1丁目6-5

6.5万円 / 管理費6,000円
敷
6.5万円礼
13万円1K / 26.73㎡ / 6階
賃貸マンション
ラグジュアリーガーデン東松戸

武蔵野線 / 東松戸駅 徒歩3分
築18年 / 14階建
千葉県松戸市東松戸3丁目5-7

5.7万円 / 管理費8,000円
敷
無料礼
5.7万円ワンルーム / 20.81㎡ / 6階
賃貸アパート
松戸市秋山1丁目 2階建 2020年築

成田スカイアクセス / 東松戸駅 徒歩19分
築5年 / 2階建
千葉県松戸市秋山1丁目9-6

7.5万円 / 管理費4,000円
敷
無料礼
7.5万円1LDK / 25.94㎡ / 2階
賃貸アパート
KEIAI RESIDENCE新松戸I

常磐線 / 新松戸駅 徒歩10分
新築 / 3階建
千葉県松戸市大谷口

7.3万円 / 管理費3,500円
敷
無料礼
7.3万円1K / 22.87㎡ / 3階
賃貸マンション
イーストメゾンビルT

武蔵野線 / 東松戸駅 徒歩2分
築14年 / 9階建
千葉県松戸市東松戸1丁目6-5

6.5万円 / 管理費6,000円
敷
6.5万円礼
13万円1K / 26.73㎡ / 6階
賃貸マンション
ラグジュアリーガーデン東松戸

武蔵野線 / 東松戸駅 徒歩3分
築18年 / 14階建
千葉県松戸市東松戸3丁目5-7

5.7万円 / 管理費8,000円
敷
無料礼
5.7万円ワンルーム / 20.81㎡ / 6階
























