クリオ平和島(東京都大田区 / 平和島駅) の賃貸物件情報
募集中のお部屋が2件あります


1/1
1/1
- 建物
- マンション (鉄筋コンクリート)
- 築年数
- 築18年 (2007年)
- 駐車場
- 無し
- 交通
- 京急本線 / 平和島駅徒歩6分
- 京急本線 / 大森町駅徒歩13分
- 東京モノレール / 流通センター駅徒歩17分
- 住所
- 東京都大田区大森東1丁目 28-13
その他
- 駐車/駐輪
- 無し
- 入居時期
- 2026年1月下旬
- 損保
- -
- 保証代行人
- -
- その他費用
- -
- 情報
情報登録日:2025/12/22
情報更新日:2025/12/22
次回更新予定日:2026/1/6
- 備考
- 契約期間: 2年 住宅保険: 要 保証会社:利用必須 初回保証料賃料総額の50% 継続保証料1年1万円
この建物からのPick Up
1R/3階
1/2
1/2
10 万円 / 管理費10,000円
- 敷金
- なし
- 保証金
- 11万円
- 礼金
- 10万円
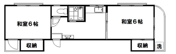
- 広さ
- 28.05㎡
- 階数
- 3階 / 7階建
- 間取り
- 1R
- 向き
- 東
無料で10秒! カンタンお問い合わせ

クリオ平和島
敷
無料礼
10万円特徴
バス・トイレ別
2階以上
エアコン付き
ペット相談可
駐車場あり
室内洗濯機置場
オートロック
洗面所独立
- 入居条件
- 保証人不要
- バス・トイレ
- 浴室乾燥機、バストイレ別、温水洗浄便座、洗面所独立
- キッチン
- システムキッチン、ガスコンロ対応、2口以上コンロ
- セキュリティ
- オートロック
- 室内設備
- 光ファイバー、エアコン、インターネット対応、フローリング
- 部屋の特徴
- バルコニー、二階以上
- 共用部
- エレベーター、駐輪場、宅配ボックス、バイク置場
- その他の特徴
- 分譲賃貸、外壁タイル張り、都市ガス
無料で10秒! カンタンお問い合わせ

クリオ平和島
敷
無料礼
10万円おすすめ物件 (10件)
同じ最寄り駅 で探す
同じ市区町村 で探す
大田区 の賃貸
)


)
)
)
)
)
)




)
)






