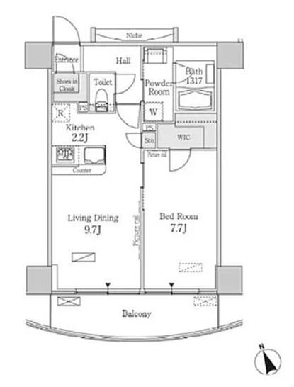
港区 10階建 2008年築1LDK/10階/1004(東京都港区 / 芝浦ふ頭駅)の賃貸
1/30
1/30
19.5万円
初期費用を知りたい管理費なし
家賃割引サービス適用で最大2年間4.8万円割引
- 敷金
- 19.5万円
- 保証金
- なし
- 礼金
- 29.25万円
- 広さ
- 40.01㎡
- 階数
- 10階 / 10階建
- 間取り
- 1LDK
- 建物
- マンション (鉄筋コンクリート)
- 築年数
- 築17年
- 向き
- 東
- 交通
- 新交通ゆりかもめ / 芝浦ふ頭駅徒歩9分
- 山手線 / 田町駅徒歩15分
- 住所
- 東京都港区海岸3丁目8-9
芝浦小学校 700m
コンビニエンスストア 100m
スーパーマーケット 500m
総合病院 800m
芝浦ふ頭駅(ゆりかもめ臨海線) 1080m
無料で10秒! カンタンお問い合わせ
港区 10階建 2008年築
敷
19.5万円礼
29.25万円特徴
バス・トイレ別
2階以上
エアコン付き
ペット相談可
駐車場あり
室内洗濯機置場
オートロック
洗面所独立
- 入居条件
- 二人入居可最新の空室状況が知りたい
- バス・トイレ
- 専用バス、オートバス、追焚機能浴室、浴室乾燥機、シャワー、専用トイレ、温水洗浄便座、バストイレ別、洗面所独立
- キッチン
- ガスコンロ対応、2口コンロ、システムキッチン
- セキュリティ
- オートロック、防犯カメラ
- 室内設備
- CATV、BS、CS、インターネット対応、光ファイバー、エアコン、冷房、照明付、クロゼット、シューズボックス、室内洗濯置、フローリングお部屋の詳しい情報を知りたい
- 部屋の特徴
- バルコニー、角住戸、二階以上、最上階写真を送ってほしい
- 共用部
- エレベーター
- その他の特徴
- 定期借家、下水、公営水道、都市ガス、外壁タイル張り、デザイナーズ、分譲賃貸
無料で10秒! カンタンお問い合わせ
港区 10階建 2008年築
敷
19.5万円礼
29.25万円不動産会社からのコメント
海を一望出来る眺望、LDK12畳・寝室4.6畳の広い空間、追焚・グリル付きの便利な物件です。
保証会社・火災保険加入必須 エアコン清掃費:1.5~2.5万円 駐輪ステッカー代1100円 短期解約違約金有
その他
- 駐車/駐輪
- 無 / なし駐車可能な車種や台数を知りたい
- 入居時期
- 2026年2月下旬最新の空室状況が知りたい
- 損保
- 住宅保険: 要
- 保証人代行
- 加入要 会社名: その他 費用: 初回:総賃料等の50% 2年目以降:9600円
- その他費用
初期費用を知りたい室内清掃費用:74,818円
鍵交換費用:33,000円
- 情報
情報登録日:2025/12/12
情報更新日:2025/12/11
次回更新予定日:2025/12/20
- 備考
- 現況: 居住中 契約期間: 2年 ※定期借家
取扱い会社
- 取扱い会社
- スタートライングループ株式会社 田町三田口店条件が近い物件も紹介してほしい
- 免許番号
- 東京都知事(6)第76891号
- 取引態様
- 仲介
- 所在地
- 東京都港区芝5-20-11 朝倉ビル2F
- 電話番号
- 03-6722-6981
- 営業時間
- 10:00~19:00
- 定休日
- 受付:年中無休/店舗:水曜日(年末年始/GW/お盆)
- 所属団体名
- 公益社団法人全日本不動産協会
おすすめ物件 (15件)
賃貸マンション
オーキッドレジデンス芝浦

山手線 / 田町駅 徒歩9分
築6年 / 12階建
東京都港区芝浦2丁目

17.9万円 / 管理費10,000円
敷
17.9万円礼
17.9万円1LDK / 30.32㎡ / 5階
賃貸マンション
ダイワ芝浦ビル(Daiwa芝浦ビル)
山手線 / 田町駅 徒歩9分
築38年 / 12階建
東京都港区芝浦1丁目12-3
18.3万円 / 管理費10,000円
敷
18.3万円礼
18.3万円1LDK / 40.91㎡ / 12階
賃貸マンション
レジディア芝浦KAIGAN
新交通ゆりかもめ / 芝浦ふ頭駅 徒歩3分
築15年 / 12階建
東京都港区海岸3丁目15-5
20.4万円 / 管理費15,000円
敷
20.4万円礼
無料1LDK / 44.82㎡ / 11階
賃貸マンション
KDXレジデンス芝公園
山手線 / 田町駅 徒歩10分
築20年 / 13階建
東京都港区芝3丁目4-16
19.9万円 / 管理費10,000円
敷
19.9万円礼
19.9万円1LDK / 40.14㎡ / 6階
賃貸マンション
オーパスホームズ三田(旧HF三田レジデンス)
山手線 / 田町駅 徒歩6分
築21年 / 13階建
東京都港区三田3丁目3-6
19.6万円 / 管理費10,000円
敷
無料礼
無料1LDK / 31.58㎡ / 12階
賃貸マンション
ベルファース芝浦タワー

山手線 / 田町駅 徒歩13分
築15年 / 地上30階地下3階建
東京都港区芝浦4丁目

19.4万円 / 管理費12,000円
敷
19.4万円礼
無料1LDK / 37.03㎡ / 13階
賃貸マンション
カスタリア芝公園

山手線 / 田町駅 徒歩9分
築21年 / 11階建
東京都港区芝3丁目32-10

家賃カード決済可
17.9万円 / 管理費6,000円
敷
17.9万円礼
無料ワンルーム / 33.79㎡ / 9階
賃貸マンション
トリニティー芝浦

山手線 / 田町駅 徒歩9分
築37年 / 地上24階地下1階建
東京都港区芝浦4丁目

18.3万円 / 管理費7,100円
敷
18.3万円礼
36.6万円1LDK / 49.98㎡ / 11階
賃貸マンション
パークフラッツ芝浦

新交通ゆりかもめ / 芝浦ふ頭駅 徒歩5分
築10年 / 11階建
東京都港区海岸3丁目

21.4万円 / 管理費15,000円
敷
21.4万円礼
無料1LDK / 47.88㎡ / 5階
賃貸マンション
JR山手線 田町駅 地下1地上12階建 築39年
山手線 / 田町駅 徒歩9分
築38年 / 地上12階地下1階建
東京都港区芝浦1
20.4万円 / 管理費10,000円
敷
20.4万円礼
20.4万円1LDK / 40.63㎡ / 11階
賃貸マンション
プライムアーバン芝浦LOFT

山手線 / 田町駅 徒歩10分
築19年 / 11階建
東京都港区芝浦4丁目

19.3万円 / 管理費10,000円
敷
19.3万円礼
19.3万円1LDK / 38.83㎡ / 8階
賃貸マンション
プライムアーバン芝浦ロフト

山手線 / 田町駅 徒歩10分
築19年 / 11階建
東京都港区芝浦4丁目

19.3万円 / 管理費10,000円
敷
19.3万円礼
19.3万円1LDK / 38.83㎡ / 8階
賃貸マンション
都営三田線 芝公園駅 12階建 築27年
山手線 / 田町駅 徒歩11分
築26年 / 12階建
東京都港区芝2
19万円 / 管理費15,000円
敷
無料礼
無料1LDK / 37.37㎡ / 2階
賃貸マンション
オーキッドレジデンス芝浦

山手線 / 田町駅 徒歩9分
築6年 / 12階建
東京都港区芝浦2丁目

17.9万円 / 管理費10,000円
敷
17.9万円礼
17.9万円1LDK / 30.32㎡ / 5階
賃貸マンション
ダイワ芝浦ビル(Daiwa芝浦ビル)
山手線 / 田町駅 徒歩9分
築38年 / 12階建
東京都港区芝浦1丁目12-3
18.3万円 / 管理費10,000円
敷
18.3万円礼
18.3万円1LDK / 40.91㎡ / 12階
賃貸マンション
レジディア芝浦KAIGAN
新交通ゆりかもめ / 芝浦ふ頭駅 徒歩3分
築15年 / 12階建
東京都港区海岸3丁目15-5
20.4万円 / 管理費15,000円
敷
20.4万円礼
無料1LDK / 44.82㎡ / 11階
賃貸マンション
KDXレジデンス芝公園
山手線 / 田町駅 徒歩10分
築20年 / 13階建
東京都港区芝3丁目4-16
19.9万円 / 管理費10,000円
敷
19.9万円礼
19.9万円1LDK / 40.14㎡ / 6階
賃貸マンション
オーパスホームズ三田(旧HF三田レジデンス)
山手線 / 田町駅 徒歩6分
築21年 / 13階建
東京都港区三田3丁目3-6
19.6万円 / 管理費10,000円
敷
無料礼
無料1LDK / 31.58㎡ / 12階
賃貸マンション
ベルファース芝浦タワー

山手線 / 田町駅 徒歩13分
築15年 / 地上30階地下3階建
東京都港区芝浦4丁目

19.4万円 / 管理費12,000円
敷
19.4万円礼
無料1LDK / 37.03㎡ / 13階
賃貸マンション
カスタリア芝公園

山手線 / 田町駅 徒歩9分
築21年 / 11階建
東京都港区芝3丁目32-10

家賃カード決済可
17.9万円 / 管理費6,000円
敷
17.9万円礼
無料ワンルーム / 33.79㎡ / 9階
賃貸マンション
トリニティー芝浦

山手線 / 田町駅 徒歩9分
築37年 / 地上24階地下1階建
東京都港区芝浦4丁目

18.3万円 / 管理費7,100円
敷
18.3万円礼
36.6万円1LDK / 49.98㎡ / 11階
賃貸マンション
パークフラッツ芝浦

新交通ゆりかもめ / 芝浦ふ頭駅 徒歩5分
築10年 / 11階建
東京都港区海岸3丁目

21.4万円 / 管理費15,000円
敷
21.4万円礼
無料1LDK / 47.88㎡ / 5階
賃貸マンション
JR山手線 田町駅 地下1地上12階建 築39年
山手線 / 田町駅 徒歩9分
築38年 / 地上12階地下1階建
東京都港区芝浦1
20.4万円 / 管理費10,000円
敷
20.4万円礼
20.4万円1LDK / 40.63㎡ / 11階
賃貸マンション
プライムアーバン芝浦LOFT

山手線 / 田町駅 徒歩10分
築19年 / 11階建
東京都港区芝浦4丁目

19.3万円 / 管理費10,000円
敷
19.3万円礼
19.3万円1LDK / 38.83㎡ / 8階
賃貸マンション
プライムアーバン芝浦ロフト

山手線 / 田町駅 徒歩10分
築19年 / 11階建
東京都港区芝浦4丁目

19.3万円 / 管理費10,000円
敷
19.3万円礼
19.3万円1LDK / 38.83㎡ / 8階
賃貸マンション
都営三田線 芝公園駅 12階建 築27年
山手線 / 田町駅 徒歩11分
築26年 / 12階建
東京都港区芝2
19万円 / 管理費15,000円
敷
無料礼
無料1LDK / 37.37㎡ / 2階
同じ最寄り駅 × 同じ特徴 で探す
同じ市区町村 × 同じ特徴 で探す




