エスペランサ 平井1R/2階/0203(東京都江戸川区 / 平井駅)の賃貸
1/28
1/28
6.9万円
初期費用を知りたい管理費4,000円
- 敷金
- 無料
- 保証金
- なし
- 礼金
- 無料
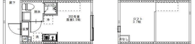
- 広さ
- 11㎡
- 階数
- 2階 / 2階建
- 間取り
- 1R
- 建物
- アパート (木造)
- 築年数
- 新築
- 向き
- 交通
- 総武線 / 平井駅徒歩10分
- 東武亀戸線 / 亀戸水神駅徒歩16分
- 住所
- 東京都江戸川区平井2丁目3-23
コンビニエンスストア 639m
スーパーマーケット 360m
無料で10秒! カンタンお問い合わせ

エスペランサ 平井
敷
無料礼
無料特徴
バス・トイレ別
2階以上
エアコン付き
ペット相談可
駐車場あり
室内洗濯機置場
オートロック
洗面所独立
- 入居条件
- 楽器不可、事務所(SOHO)不可、ペット不可、即入居可最新の空室状況が知りたい
- バス・トイレ
- バスなし、専用トイレ、シャワー、給湯、温水洗浄便座
- キッチン
- ガスコンロ対応、1口コンロ
- 室内設備
- エアコン、室内洗濯置、フローリング、光ファイバー、ネット使用料不要、シューズボックスお部屋の詳しい情報を知りたい
- 部屋の特徴
- ロフト、二階以上、最上階写真を送ってほしい
- 共用部
- 宅配ボックス
- その他の特徴
- プロパンガス
無料で10秒! カンタンお問い合わせ

エスペランサ 平井
敷
無料礼
無料不動産会社からのコメント
収納はクロゼット・シューズボックスなど豊富なので、広々と空間を利用することも可能です。
火災保険要加入 短期解約違約金あり:1年未満の解約で1か月
その他
- 駐車/駐輪
- 要確認 / なし駐車可能な車種や台数を知りたい
- 入居時期
- 損保
- 住宅保険: 要
- 保証人代行
- 加入要 費用: 初回:毎月支払い合計額の50% 1年毎更新料10,000~12,000円
- その他費用
初期費用を知りたいIOT設置費:16,500円
シノケンライフサポート24:19,800円
- 情報
情報登録日:2025/10/20
情報更新日:2025/12/14
次回更新予定日:2025/12/22
- 備考
- 状態: 未入居 更新料: 新賃料の1.5ヶ月分 契約期間: 2年 自社管理番号: HC2-5191351-203-0102
取扱い会社
- 取扱い会社
- ハウスコム東東京株式会社 青砥店条件が近い物件も紹介してほしい
- 免許番号
- 東京都知事(1)第108283号
- 取引態様
- 仲介
- 所在地
- 東京都葛飾区 青戸2丁目2−20 メゾンノア 1階
- 電話番号
- 03-5671-8456
- 定休日
- フルオープン
- 所属団体名
- 公益社団法人首都圏不動産公正取引協議会、公益財団法人日本賃貸住宅管理協会
おすすめ物件 (19件)
賃貸マンション
スパシエジーベック亀戸
東武亀戸線 / 亀戸水神駅 徒歩7分
築16年 / 12階建
東京都江東区亀戸4丁目45-9
8.9万円 / 管理費15,000円
敷
無料礼
8.9万円1K / 20.83㎡ / 6階
賃貸マンション
ベルシードステアー亀戸

東武亀戸線 / 亀戸水神駅 徒歩10分
築3年 / 5階建
東京都江東区亀戸4丁目35-5

8.1万円 / 管理費5,000円
敷
無料礼
8.1万円ワンルーム / 17㎡ / 3階
賃貸アパート
SUNNY HILLS 新小岩

総武線 / 平井駅 徒歩25分
新築 / 2階建
東京都江戸川区松島4丁目

6.8万円 / 管理費4,000円
敷
無料礼
6.8万円ワンルーム / 11.6㎡ / 2階
賃貸アパート
アークガーデン亀戸

東武亀戸線 / 亀戸水神駅 徒歩6分
築9年 / 3階建
東京都江東区亀戸7丁目14-7

7.7万円 / 管理費3,000円
敷
無料礼
7.7万円ワンルーム / 17.43㎡ / 3階
賃貸マンション
ARTESSIMO LINK COMODO
)
東武亀戸線 / 亀戸水神駅 徒歩8分
築17年 / 7階建
東京都江東区亀戸6丁目
)
8.15万円 / 管理費15,000円
敷
無料礼
無料ワンルーム / 20.6㎡ / 3階
賃貸マンション
アルテシモ リンク コモド
)
東武亀戸線 / 亀戸水神駅 徒歩9分
築17年 / 7階建
東京都江東区亀戸6丁目44-4
)
8.2万円 / 管理費10,000円
敷
無料礼
8.2万円ワンルーム / 20.6㎡ / 2階
賃貸マンション
スパシエジーベック亀戸
東武亀戸線 / 亀戸水神駅 徒歩7分
築16年 / 12階建
東京都江東区亀戸4丁目45-9
8.9万円 / 管理費15,000円
敷
無料礼
8.9万円1K / 20.83㎡ / 6階
賃貸マンション
ベルシードステアー亀戸

東武亀戸線 / 亀戸水神駅 徒歩10分
築3年 / 5階建
東京都江東区亀戸4丁目35-5

8.1万円 / 管理費5,000円
敷
無料礼
8.1万円ワンルーム / 17㎡ / 3階
賃貸アパート
SUNNY HILLS 新小岩

総武線 / 平井駅 徒歩25分
新築 / 2階建
東京都江戸川区松島4丁目

6.8万円 / 管理費4,000円
敷
無料礼
6.8万円ワンルーム / 11.6㎡ / 2階
賃貸アパート
アークガーデン亀戸

東武亀戸線 / 亀戸水神駅 徒歩6分
築9年 / 3階建
東京都江東区亀戸7丁目14-7

7.7万円 / 管理費3,000円
敷
無料礼
7.7万円ワンルーム / 17.43㎡ / 3階
賃貸マンション
ARTESSIMO LINK COMODO
)
東武亀戸線 / 亀戸水神駅 徒歩8分
築17年 / 7階建
東京都江東区亀戸6丁目
)
8.15万円 / 管理費15,000円
敷
無料礼
無料ワンルーム / 20.6㎡ / 3階
賃貸マンション
アルテシモ リンク コモド
)
東武亀戸線 / 亀戸水神駅 徒歩9分
築17年 / 7階建
東京都江東区亀戸6丁目44-4
)
8.2万円 / 管理費10,000円
敷
無料礼
8.2万円ワンルーム / 20.6㎡ / 2階
同じ最寄り駅 × 同じ特徴 で探す
同じ市区町村 × 同じ特徴 で探す



























)
)























)
)
)
)