日神デュオステージ両国1LDK/8階(東京都墨田区 / 両国駅)の賃貸
1/15
1/15
16万円
初期費用を知りたい管理費10,000円
家賃割引サービス適用で最大2年間4.8万円割引
- 敷金
- 16万円
- 保証金
- なし
- 礼金
- 16万円
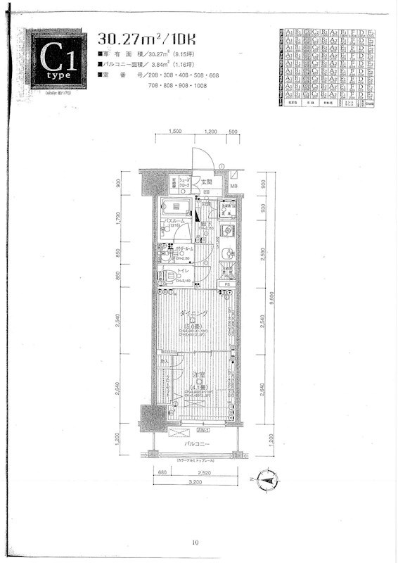
- 広さ
- 40.52㎡
- 階数
- 8階 / 10階建
- 間取り
- 1LDK
- 建物
- マンション (鉄筋コンクリート)
- 築年数
- 築16年
- 向き
- 交通
- 都営大江戸線 / 両国駅徒歩6分
- 都営浅草線 / 蔵前駅徒歩10分
- 住所
- 東京都墨田区本所1丁目7-1
コンビニエンスストア 800m
スーパーマーケット 700m
マルイ 2200m
無料で10秒! カンタンお問い合わせ
日神デュオステージ両国
敷
16万円礼
16万円特徴
バス・トイレ別
2階以上
エアコン付き
ペット相談可
駐車場あり
室内洗濯機置場
オートロック
洗面所独立
- 入居条件
- 保証人不要、ペット相談、ペット可最新の空室状況が知りたい
- バス・トイレ
- 給湯、専用バス、浴室乾燥機、シャワー、専用トイレ、温水洗浄便座、バストイレ別、シャワー付洗面化粧台、洗面所独立
- キッチン
- IHクッキングヒーター、1口コンロ、2口コンロ、システムキッチン
- セキュリティ
- オートロック
- 室内設備
- エアコン、冷房、シューズボックスお部屋の詳しい情報を知りたい
- 部屋の特徴
- 二階以上写真を送ってほしい
- 共用部
- エレベーター
無料で10秒! カンタンお問い合わせ
日神デュオステージ両国
敷
16万円礼
16万円不動産会社からのコメント
お部屋探しはタウンハウジング浅草店にお任せくださいませ。
一部費用クレジット決済可能!詳しくは、お問い合わせくださいませ。
その他
- 駐車/駐輪
- 無 / なし駐車可能な車種や台数を知りたい
- 入居時期
- 2025年12月中旬最新の空室状況が知りたい
- 損保
- 住宅保険: 要
- 保証人代行
- 加入要 会社名: その他 費用: 初回保証料:総賃料の50% (年間保証料:15,000円)引落手数料:330円/月
- その他費用
初期費用を知りたい鍵交換費用:33,000円
24時間サポート代:16,500円
- 情報
情報登録日:2025/10/16
情報更新日:2025/12/1
次回更新予定日:2025/12/12
- 備考
- 現況: 居住中 更新料: 新賃料の1.0ヶ月分 契約期間: 2年
取扱い会社
- 取扱い会社
- 株式会社タウンハウジング 浅草店条件が近い物件も紹介してほしい
- 免許番号
- 国土交通大臣(1)9926号
- 取引態様
- 仲介
- 所在地
- 東京都台東区雷門2丁目 18-15 TSビル2F
- 電話番号
- 03-5830-8566
- 所属団体名
- 東京都宅地建物取引業協会
おすすめ物件 (20件)
賃貸マンション
アルテシモ リーノ

都営大江戸線 / 両国駅 徒歩8分
築6年 / 9階建
東京都墨田区緑2丁目5-13

17万円 / 管理費15,000円
敷
17万円礼
17万円1LDK / 41.61㎡ / 7階
賃貸マンション
コンフォリア両国サウス

総武線 / 両国駅 徒歩9分
築14年 / 9階建
東京都墨田区千歳2丁目14-8

17.7万円 / 管理費10,000円
敷
17.7万円礼
無料1LDK / 37.4㎡ / 6階
賃貸マンション
グランエール森下WEST

総武線 / 両国駅 徒歩12分
新築 / 9階建
東京都墨田区千歳3丁目4-2

17.9万円 / 管理費10,000円
敷
17.9万円礼
無料1LDK / 33.27㎡ / 6階
賃貸マンション
レジデンス両国駅前

総武線 / 両国駅 徒歩3分
築19年 / 14階建
東京都墨田区両国4丁目37-10

16.8万円 / 管理費10,000円
敷
16.8万円礼
無料1LDK / 37.14㎡ / 3階
賃貸マンション
ジェノヴィア両国Ⅴスカイガーデン

都営大江戸線 / 両国駅 徒歩9分
築5年 / 9階建
東京都墨田区緑2丁目3-9

14.8万円 / 管理費12,000円
敷
無料礼
無料ワンルーム / 34.45㎡ / 9階
賃貸マンション
パークアクシス蔵前

都営大江戸線 / 蔵前駅 徒歩5分
築12年 / 14階建
東京都台東区蔵前4丁目36-15

17.7万円 / 管理費13,000円
敷
17.7万円礼
17.7万円1LDK / 42.09㎡ / 14階
賃貸マンション
S-RESIDENCE両国avenue

都営大江戸線 / 両国駅 徒歩6分
築5年 / 11階建
東京都墨田区緑1丁目1-7

17.4万円 / 管理費15,000円
敷
17.4万円礼
17.4万円1LDK / 40.27㎡ / 9階
賃貸マンション
リヴシティ両国五番館

都営大江戸線 / 両国駅 徒歩7分
築1年 / 9階建
東京都墨田区両国4丁目7-2

16.65万円 / 管理費10,000円
敷
無料礼
16.65万円1LDK / 40.27㎡ / 2階
賃貸マンション
台東区 13階建 2017年築
都営大江戸線 / 蔵前駅 徒歩5分
築8年 / 13階建
東京都台東区寿4丁目6-2
17.5万円 / 管理費20,000円
敷
無料礼
無料1LDK / 40.36㎡ / 3階
賃貸マンション
レイ両国(Rei Ryogoku)
都営大江戸線 / 両国駅 徒歩7分
築2年 / 9階建
東京都墨田区両国4丁目5-10
15.3万円 / 管理費12,000円
敷
15.3万円礼
15.3万円1LDK / 37.02㎡ / 2階
賃貸マンション
ジェノヴィア本所吾妻橋スカイガーデン
都営大江戸線 / 両国駅 徒歩12分
築4年 / 7階建
東京都墨田区石原3丁目34-3
17.7万円 / 管理費20,000円
敷
無料礼
無料1LDK / 40.58㎡ / 3階
賃貸マンション
PREMIUM CUBE 両国DEUX

都営大江戸線 / 両国駅 徒歩11分
築4年 / 12階建
東京都墨田区亀沢4丁目25-2

17.5万円 / 管理費20,000円
敷
17.5万円礼
17.5万円1LDK / 40.92㎡ / 4階
賃貸マンション
コンフォリア浅草橋

都営大江戸線 / 蔵前駅 徒歩13分
築14年 / 地上14階地下1階建
東京都台東区柳橋2丁目

17.9万円 / 管理費10,000円
敷
17.9万円礼
無料1LDK / 39.14㎡ / 4階
賃貸マンション
エスレジデンス両国アヴェニュー(S-RESIDENCE両国a
都営大江戸線 / 両国駅 徒歩7分
築5年 / 11階建
東京都墨田区緑1丁目1-7
16.8万円 / 管理費15,000円
敷
16.8万円礼
16.8万円1LDK / 40.27㎡ / 3階
賃貸マンション
リヴシティ錦糸町

都営大江戸線 / 両国駅 徒歩17分
築13年 / 9階建
東京都墨田区錦糸1丁目15-16

14.5万円 / 管理費10,000円
敷
無料礼
14.5万円1LDK / 31.97㎡ / 4階
賃貸マンション
パークアクシス両国馬車通り
都営大江戸線 / 両国駅 徒歩10分
築12年 / 9階建
東京都墨田区緑2丁目3-14
15.1万円 / 管理費15,000円
敷
15.1万円礼
無料1DK / 34.76㎡ / 4階
賃貸マンション
ライジングプレイス錦糸町二番館

都営大江戸線 / 両国駅 徒歩15分
築12年 / 7階建
東京都墨田区石原4丁目9-4

18万円 / 管理費10,000円
敷
18万円礼
18万円2DK / 40.54㎡ / 5階
賃貸マンション
墨田区緑2丁目 9階建 2020年築

都営大江戸線 / 両国駅 徒歩9分
築5年 / 9階建
東京都墨田区緑2丁目3-9

14.8万円 / 管理費12,000円
敷
無料礼
無料ワンルーム / 34.45㎡ / 9階
賃貸マンション
ジェノヴィア両国Vスカイガーデン

都営大江戸線 / 両国駅 徒歩9分
築5年 / 9階建
東京都墨田区緑2丁目3-9

14.8万円 / 管理費12,000円
敷
無料礼
無料ワンルーム / 34.45㎡ / 9階
賃貸マンション
墨田区緑2丁目 9階建 2020年築

都営大江戸線 / 両国駅 徒歩9分
築5年 / 9階建
東京都墨田区緑2丁目3-9

14.8万円 / 管理費12,000円
敷
無料礼
無料ワンルーム / 34.45㎡ / 9階
賃貸マンション
アルテシモ リーノ

都営大江戸線 / 両国駅 徒歩8分
築6年 / 9階建
東京都墨田区緑2丁目5-13

17万円 / 管理費15,000円
敷
17万円礼
17万円1LDK / 41.61㎡ / 7階
賃貸マンション
コンフォリア両国サウス

総武線 / 両国駅 徒歩9分
築14年 / 9階建
東京都墨田区千歳2丁目14-8

17.7万円 / 管理費10,000円
敷
17.7万円礼
無料1LDK / 37.4㎡ / 6階
賃貸マンション
グランエール森下WEST

総武線 / 両国駅 徒歩12分
新築 / 9階建
東京都墨田区千歳3丁目4-2

17.9万円 / 管理費10,000円
敷
17.9万円礼
無料1LDK / 33.27㎡ / 6階
賃貸マンション
レジデンス両国駅前

総武線 / 両国駅 徒歩3分
築19年 / 14階建
東京都墨田区両国4丁目37-10

16.8万円 / 管理費10,000円
敷
16.8万円礼
無料1LDK / 37.14㎡ / 3階
賃貸マンション
ジェノヴィア両国Ⅴスカイガーデン

都営大江戸線 / 両国駅 徒歩9分
築5年 / 9階建
東京都墨田区緑2丁目3-9

14.8万円 / 管理費12,000円
敷
無料礼
無料ワンルーム / 34.45㎡ / 9階
賃貸マンション
パークアクシス蔵前

都営大江戸線 / 蔵前駅 徒歩5分
築12年 / 14階建
東京都台東区蔵前4丁目36-15

17.7万円 / 管理費13,000円
敷
17.7万円礼
17.7万円1LDK / 42.09㎡ / 14階
賃貸マンション
S-RESIDENCE両国avenue

都営大江戸線 / 両国駅 徒歩6分
築5年 / 11階建
東京都墨田区緑1丁目1-7

17.4万円 / 管理費15,000円
敷
17.4万円礼
17.4万円1LDK / 40.27㎡ / 9階
賃貸マンション
リヴシティ両国五番館

都営大江戸線 / 両国駅 徒歩7分
築1年 / 9階建
東京都墨田区両国4丁目7-2

16.65万円 / 管理費10,000円
敷
無料礼
16.65万円1LDK / 40.27㎡ / 2階
賃貸マンション
台東区 13階建 2017年築
都営大江戸線 / 蔵前駅 徒歩5分
築8年 / 13階建
東京都台東区寿4丁目6-2
17.5万円 / 管理費20,000円
敷
無料礼
無料1LDK / 40.36㎡ / 3階
賃貸マンション
レイ両国(Rei Ryogoku)
都営大江戸線 / 両国駅 徒歩7分
築2年 / 9階建
東京都墨田区両国4丁目5-10
15.3万円 / 管理費12,000円
敷
15.3万円礼
15.3万円1LDK / 37.02㎡ / 2階
賃貸マンション
ジェノヴィア本所吾妻橋スカイガーデン
都営大江戸線 / 両国駅 徒歩12分
築4年 / 7階建
東京都墨田区石原3丁目34-3
17.7万円 / 管理費20,000円
敷
無料礼
無料1LDK / 40.58㎡ / 3階
賃貸マンション
PREMIUM CUBE 両国DEUX

都営大江戸線 / 両国駅 徒歩11分
築4年 / 12階建
東京都墨田区亀沢4丁目25-2

17.5万円 / 管理費20,000円
敷
17.5万円礼
17.5万円1LDK / 40.92㎡ / 4階
賃貸マンション
コンフォリア浅草橋

都営大江戸線 / 蔵前駅 徒歩13分
築14年 / 地上14階地下1階建
東京都台東区柳橋2丁目

17.9万円 / 管理費10,000円
敷
17.9万円礼
無料1LDK / 39.14㎡ / 4階
賃貸マンション
エスレジデンス両国アヴェニュー(S-RESIDENCE両国a
都営大江戸線 / 両国駅 徒歩7分
築5年 / 11階建
東京都墨田区緑1丁目1-7
16.8万円 / 管理費15,000円
敷
16.8万円礼
16.8万円1LDK / 40.27㎡ / 3階
賃貸マンション
リヴシティ錦糸町

都営大江戸線 / 両国駅 徒歩17分
築13年 / 9階建
東京都墨田区錦糸1丁目15-16

14.5万円 / 管理費10,000円
敷
無料礼
14.5万円1LDK / 31.97㎡ / 4階
賃貸マンション
パークアクシス両国馬車通り
都営大江戸線 / 両国駅 徒歩10分
築12年 / 9階建
東京都墨田区緑2丁目3-14
15.1万円 / 管理費15,000円
敷
15.1万円礼
無料1DK / 34.76㎡ / 4階
賃貸マンション
ライジングプレイス錦糸町二番館

都営大江戸線 / 両国駅 徒歩15分
築12年 / 7階建
東京都墨田区石原4丁目9-4

18万円 / 管理費10,000円
敷
18万円礼
18万円2DK / 40.54㎡ / 5階
賃貸マンション
墨田区緑2丁目 9階建 2020年築

都営大江戸線 / 両国駅 徒歩9分
築5年 / 9階建
東京都墨田区緑2丁目3-9

14.8万円 / 管理費12,000円
敷
無料礼
無料ワンルーム / 34.45㎡ / 9階
賃貸マンション
ジェノヴィア両国Vスカイガーデン

都営大江戸線 / 両国駅 徒歩9分
築5年 / 9階建
東京都墨田区緑2丁目3-9

14.8万円 / 管理費12,000円
敷
無料礼
無料ワンルーム / 34.45㎡ / 9階
賃貸マンション
墨田区緑2丁目 9階建 2020年築

都営大江戸線 / 両国駅 徒歩9分
築5年 / 9階建
東京都墨田区緑2丁目3-9

14.8万円 / 管理費12,000円
敷
無料礼
無料ワンルーム / 34.45㎡ / 9階
同じ最寄り駅 × 同じ特徴 で探す
同じ市区町村 × 同じ特徴 で探す


