ハウス上原1DK/1階/102(東京都渋谷区 / 代々木上原駅)の賃貸
1/28
1/28
10.5万円
初期費用を知りたい管理費5,000円
- 敷金
- 10.5万円
- 保証金
- なし
- 礼金
- 10.5万円
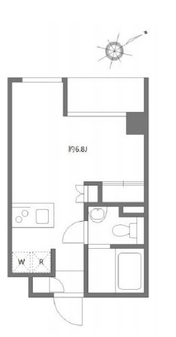
- 広さ
- 32.13㎡
- 階数
- 1階 / 3階建
- 間取り
- 1DK
- 建物
- マンション (鉄筋コンクリート)
- 築年数
- 築30年
- 向き
- 南東
- 交通
- 小田急小田原線 / 代々木上原駅徒歩5分
- 小田急小田原線 / 東北沢駅徒歩12分
- 小田急小田原線 / 代々木八幡駅徒歩12分
- 住所
- 東京都渋谷区上原2丁目40-11
アコルデ代々木上原 519m
マルエツ 代々木上原店 328m
ローソン 渋谷上原二丁目店 126m
トモズ アコルデ代々木上原店 520m
キッチンオリジン 代々木上原店 343m
東海大学代々木キャンパス4号館 482m
無料で10秒! カンタンお問い合わせ

ハウス上原
敷
10.5万円礼
10.5万円特徴
バス・トイレ別
2階以上
エアコン付き
ペット相談可
駐車場あり
室内洗濯機置場
オートロック
洗面所独立
- バス・トイレ
- シャワー、給湯、バストイレ別、脱衣所
- キッチン
- IHクッキングヒーター、3口以上コンロ、システムキッチン
- 室内設備
- インターネット対応、BS、エアコン、室内洗濯置、フローリングお部屋の詳しい情報を知りたい
- 部屋の特徴
- 角住戸、バルコニー写真を送ってほしい
- その他の特徴
- 駐車場あり、都市ガス、公営水道、下水、外壁タイル張り
無料で10秒! カンタンお問い合わせ

ハウス上原
敷
10.5万円礼
10.5万円不動産会社からのコメント
退出時におけるルーム清掃費用をご負担していただきます事務手数料3300円/鍵交換費用借主負担(契約時)
その他
- 駐車/駐輪
- 近隣 費用: 33,000円(税込) 距離: 116m / なし駐車可能な車種や台数を知りたい
- 入居時期
- 2026年1月中旬最新の空室状況が知りたい
- 損保
- 住宅保険: 要
- 保証人代行
- 保証人代行: 必須 保証人代行会社: その他 初回:賃料等の60%から100%、月額保証料有、書類代:3300円
- その他費用
- 情報
情報登録日:2025/12/14
情報更新日:2025/12/13
次回更新予定日:2025/12/25
- 備考
- 契約期間: 2年
取扱い会社
- 取扱い会社
- アエラス学芸大学店 (株式会社アエラス.PR)条件が近い物件も紹介してほしい
- 免許番号
- 国土交通大臣(1)第10782号
- 取引態様
- 仲介
- 所在地
- 東京都目黒区鷹番2丁目20-10 Lスクエア学芸大学 4階
- 電話番号
- 03-5725-2722
- 営業時間
- 10:00~19:00
- 定休日
- 毎週水曜日
- 所属団体名
- 全日本不動産協会
おすすめ物件 (16件)
賃貸マンション
HJ PLACE NISHIHARA

小田急小田原線 / 代々木上原駅 徒歩5分
築3年 / 2階建
東京都渋谷区西原2丁目

12万円 / 管理費8,000円
敷
12万円礼
12万円1DK / 26.33㎡ / 1階
賃貸マンション
プラウドフラット代々木上原

小田急小田原線 / 東北沢駅 徒歩6分
築20年 / 10階建
東京都渋谷区上原3丁目25-7

12.2万円 / 管理費5,000円
敷
12.2万円礼
12.2万円1K / 23.83㎡ / 5階
賃貸マンション
トーシンフェニックス松濤

小田急小田原線 / 代々木八幡駅 徒歩10分
築21年 / 9階建
東京都渋谷区神山町

10.8万円 / 管理費10,000円
敷
10.8万円礼
10.8万円1K / 22.17㎡ / 4階
賃貸マンション
BPRレジデンス代々木初台

東京メトロ千代田線 / 代々木上原駅 徒歩17分
築17年 / 5階建
東京都渋谷区初台2丁目

11.4万円 / 管理費10,000円
敷
11.4万円礼
11.4万円1K / 24.41㎡ / 3階
賃貸マンション
渋谷区神山町 9階建 2004年築

小田急小田原線 / 代々木八幡駅 徒歩10分
築21年 / 9階建
東京都渋谷区神山町

10.8万円 / 管理費10,000円
敷
10.8万円礼
10.8万円1K / 22.17㎡ / 4階
賃貸マンション
KDXレジデンス幡ヶ谷
小田急線 / 東北沢駅 徒歩17分
築23年 / 13階建
東京都渋谷区幡ヶ谷2
11.1万円 / 管理費6,000円
敷
11.1万円礼
11.1万円1K / 26.67㎡ / 11階
賃貸マンション
ラクラス幡ヶ谷
東京メトロ千代田線 / 代々木上原駅 徒歩17分
築12年 / 15階建
東京都渋谷区幡ヶ谷2
11.3万円 / 管理費7,000円
敷
11.3万円礼
11.3万円1K / 22.26㎡ / 6階
賃貸マンション
ルシエルエムズ(Le ciel M ?s)
小田急線 / 代々木八幡駅 徒歩13分
築9年 / 3階建
東京都渋谷区代々木5
11.4万円 / 管理費12,000円
敷
11.4万円礼
11.4万円1K / 25.27㎡ / 1階
賃貸マンション
パレステュディオ代々木上原
東京メトロ千代田線 / 代々木上原駅 徒歩1分
築22年 / 6階建
東京都渋谷区大山町
10.1万円 / 管理費10,000円
敷
10.1万円礼
10.1万円1K / 22.17㎡ / 2階
賃貸マンション
渋谷区西原1丁目 8階建 2008年築

東京メトロ千代田線 / 代々木上原駅 徒歩17分
築17年 / 8階建
東京都渋谷区西原1丁目35-16

10万円 / 管理費10,000円
敷
10万円礼
10万円1K / 27.09㎡ / 1階
賃貸マンション
渋谷区上原3丁目 10階建 2005年築

小田急小田原線 / 東北沢駅 徒歩4分
築20年 / 10階建
東京都渋谷区上原3丁目25-7

12.5万円 / 管理費5,000円
敷
12.5万円礼
無料1K / 23.64㎡ / 6階
賃貸マンション
渋谷区西原1丁目 8階建 2008年築

東京メトロ千代田線 / 代々木上原駅 徒歩17分
築17年 / 8階建
東京都渋谷区西原1丁目35-16

10万円 / 管理費10,000円
敷
10万円礼
10万円1K / 27.09㎡ / 1階
賃貸マンション
ティアラスビル

東京メトロ千代田線 / 代々木上原駅 徒歩7分
築38年 / 3階建
東京都渋谷区西原2丁目48-2

10.5万円 / 管理費5,000円
敷
21万円礼
10.5万円ワンルーム / 23.76㎡ / 3階
賃貸マンション
NONA PLACE渋谷神山町

小田急小田原線 / 代々木八幡駅 徒歩10分
築21年 / 4階建
東京都渋谷区神山町28-18

12.5万円 / 管理費10,000円
敷
12.5万円礼
12.5万円1K / 29.15㎡ / 1階
賃貸マンション
ガーデン代々木八幡

小田急小田原線 / 代々木八幡駅 徒歩7分
築18年 / 4階建
東京都渋谷区代々木5丁目13-1

10.2万円 / 管理費8,000円
敷
10.2万円礼
10.2万円ワンルーム / 22.36㎡ / 1階
賃貸アパート
渋谷区幡ヶ谷2丁目 3階建 1973年築

小田急小田原線 / 代々木上原駅 徒歩21分
築52年 / 3階建
東京都渋谷区幡ヶ谷2丁目50-7

9万円 / 管理費3,000円
敷
無料礼
無料ワンルーム / 24.91㎡ / 2階
賃貸マンション
HJ PLACE NISHIHARA

小田急小田原線 / 代々木上原駅 徒歩5分
築3年 / 2階建
東京都渋谷区西原2丁目

12万円 / 管理費8,000円
敷
12万円礼
12万円1DK / 26.33㎡ / 1階
賃貸マンション
プラウドフラット代々木上原

小田急小田原線 / 東北沢駅 徒歩6分
築20年 / 10階建
東京都渋谷区上原3丁目25-7

12.2万円 / 管理費5,000円
敷
12.2万円礼
12.2万円1K / 23.83㎡ / 5階
賃貸マンション
トーシンフェニックス松濤

小田急小田原線 / 代々木八幡駅 徒歩10分
築21年 / 9階建
東京都渋谷区神山町

10.8万円 / 管理費10,000円
敷
10.8万円礼
10.8万円1K / 22.17㎡ / 4階
賃貸マンション
BPRレジデンス代々木初台

東京メトロ千代田線 / 代々木上原駅 徒歩17分
築17年 / 5階建
東京都渋谷区初台2丁目

11.4万円 / 管理費10,000円
敷
11.4万円礼
11.4万円1K / 24.41㎡ / 3階
賃貸マンション
渋谷区神山町 9階建 2004年築

小田急小田原線 / 代々木八幡駅 徒歩10分
築21年 / 9階建
東京都渋谷区神山町

10.8万円 / 管理費10,000円
敷
10.8万円礼
10.8万円1K / 22.17㎡ / 4階
賃貸マンション
KDXレジデンス幡ヶ谷
小田急線 / 東北沢駅 徒歩17分
築23年 / 13階建
東京都渋谷区幡ヶ谷2
11.1万円 / 管理費6,000円
敷
11.1万円礼
11.1万円1K / 26.67㎡ / 11階
賃貸マンション
ラクラス幡ヶ谷
東京メトロ千代田線 / 代々木上原駅 徒歩17分
築12年 / 15階建
東京都渋谷区幡ヶ谷2
11.3万円 / 管理費7,000円
敷
11.3万円礼
11.3万円1K / 22.26㎡ / 6階
賃貸マンション
ルシエルエムズ(Le ciel M ?s)
小田急線 / 代々木八幡駅 徒歩13分
築9年 / 3階建
東京都渋谷区代々木5
11.4万円 / 管理費12,000円
敷
11.4万円礼
11.4万円1K / 25.27㎡ / 1階
賃貸マンション
パレステュディオ代々木上原
東京メトロ千代田線 / 代々木上原駅 徒歩1分
築22年 / 6階建
東京都渋谷区大山町
10.1万円 / 管理費10,000円
敷
10.1万円礼
10.1万円1K / 22.17㎡ / 2階
賃貸マンション
渋谷区西原1丁目 8階建 2008年築

東京メトロ千代田線 / 代々木上原駅 徒歩17分
築17年 / 8階建
東京都渋谷区西原1丁目35-16

10万円 / 管理費10,000円
敷
10万円礼
10万円1K / 27.09㎡ / 1階
賃貸マンション
渋谷区上原3丁目 10階建 2005年築

小田急小田原線 / 東北沢駅 徒歩4分
築20年 / 10階建
東京都渋谷区上原3丁目25-7

12.5万円 / 管理費5,000円
敷
12.5万円礼
無料1K / 23.64㎡ / 6階
賃貸マンション
渋谷区西原1丁目 8階建 2008年築

東京メトロ千代田線 / 代々木上原駅 徒歩17分
築17年 / 8階建
東京都渋谷区西原1丁目35-16

10万円 / 管理費10,000円
敷
10万円礼
10万円1K / 27.09㎡ / 1階
賃貸マンション
ティアラスビル

東京メトロ千代田線 / 代々木上原駅 徒歩7分
築38年 / 3階建
東京都渋谷区西原2丁目48-2

10.5万円 / 管理費5,000円
敷
21万円礼
10.5万円ワンルーム / 23.76㎡ / 3階
賃貸マンション
NONA PLACE渋谷神山町

小田急小田原線 / 代々木八幡駅 徒歩10分
築21年 / 4階建
東京都渋谷区神山町28-18

12.5万円 / 管理費10,000円
敷
12.5万円礼
12.5万円1K / 29.15㎡ / 1階
賃貸マンション
ガーデン代々木八幡

小田急小田原線 / 代々木八幡駅 徒歩7分
築18年 / 4階建
東京都渋谷区代々木5丁目13-1

10.2万円 / 管理費8,000円
敷
10.2万円礼
10.2万円ワンルーム / 22.36㎡ / 1階
賃貸アパート
渋谷区幡ヶ谷2丁目 3階建 1973年築

小田急小田原線 / 代々木上原駅 徒歩21分
築52年 / 3階建
東京都渋谷区幡ヶ谷2丁目50-7

9万円 / 管理費3,000円
敷
無料礼
無料ワンルーム / 24.91㎡ / 2階
同じ最寄り駅 で探す
同じ最寄り駅 × 同じ特徴 で探す
同じ市区町村 × 同じ特徴 で探す



























