robot home 千住大橋1K/1階(東京都足立区 / 千住大橋駅)の賃貸
1/23
1/23
8.7万円
初期費用を知りたい管理費3,000円
- 敷金
- 無料
- 保証金
- なし
- 礼金
- 8.7万円
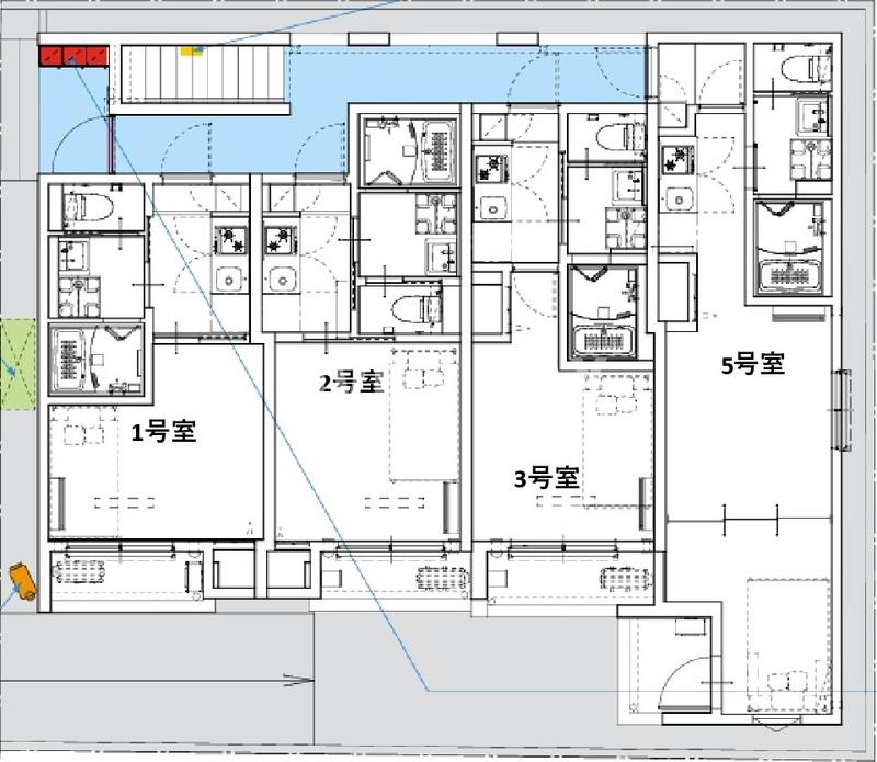
- 広さ
- 20.54㎡
- 階数
- 1階 / 3階建
- 間取り
- 1K
- 建物
- アパート (木造)
- 築年数
- 新築
- 向き
- 南
- 交通
- 京成本線 / 千住大橋駅徒歩10分
- 常磐線 / 北千住駅徒歩17分
- 住所
- 東京都足立区千住緑町3丁目
コンビニエンスストア 1045m
スーパーマーケット 810m
総合病院 2885m
ミニストップ 千住仲町店 901m
無料で10秒! カンタンお問い合わせ

robot home 千住大橋
敷
無料礼
8.7万円特徴
バス・トイレ別
2階以上
エアコン付き
ペット相談可
駐車場あり
室内洗濯機置場
オートロック
洗面所独立
- 入居条件
- 初期費用カード決済可、保証人不要最新の空室状況が知りたい
- バス・トイレ
- 専用バス、専用トイレ、バストイレ別、給湯、シャワー付洗面化粧台、温水洗浄便座、浴室乾燥機、洗面所独立
- キッチン
- ガスコンロ対応、2口コンロ、システムキッチン
- セキュリティ
- オートロック、防犯カメラ
- 室内設備
- エアコン、室内洗濯置、CS、BS、フローリング、光ファイバー、ネット使用料不要、クロゼット、シューズボックス、照明付お部屋の詳しい情報を知りたい
- 部屋の特徴
- バルコニー写真を送ってほしい
- 共用部
- 宅配ボックス、駐輪場
- その他の特徴
- 公営水道、都市ガス、下水、デザイナーズ
無料で10秒! カンタンお問い合わせ

robot home 千住大橋
敷
無料礼
8.7万円同じ建物で掲載中の物件 (10件)
不動産会社からのコメント
★エリア最大級★経験豊富なスタッフが多数在籍しております♪ 初期費用クレジット支払可能!オンライン
★エリア最大級★経験豊富なスタッフが多数在籍しております♪ 初期費用クレジット支払可能!オンライン内覧・オンライン契約等弊社に一度も来店せずとも問題ありません♪弊社ではネットに掲載されている物件も全てご紹介可能になりますので気になる物件は全て申し付けください★
その他
- 駐車/駐輪
- 要確認 / あり駐車可能な車種や台数を知りたい
- 入居時期
- 2026年1月最新の空室状況が知りたい
- 損保
- 住宅保険: 要
- 保証人代行
- 加入要 費用: 初回保証料:総賃料の100% 年間更新料:10,000円
- その他費用
初期費用を知りたい入居者アプリ設定費:16,500円
- 情報
情報登録日:2025/12/17
情報更新日:2025/12/17
次回更新予定日:2025/12/26
- 備考
- 現況: 未完成 状態: 未入居 更新料: 新賃料の1.0ヶ月分 契約期間: 2年 管理人: 巡回 その他交通: 東京地下鉄日比谷線 南千住駅 徒歩27分 自社管理番号: 5892581
取扱い会社
- 取扱い会社
- 株式会社リブマックスリーシング 銀座店条件が近い物件も紹介してほしい
- 免許番号
- 国土交通大臣 (3) 第8116号
- 取引態様
- 仲介
- 所在地
- 東京都中央区築地2丁目12-1 ホテルリブマックス東銀座 1F
- 電話番号
- 03-3545-4545
- 定休日
- 水曜日(年末年始、GW、夏季)
- 所属団体名
- 公益社団法人 全国宅地建物取引業保証協会
おすすめ物件 (6件)
賃貸アパート
Parc IkedaI
常磐線 / 北千住駅 徒歩12分
築4年 / 3階建
東京都足立区千住龍田町
10.7万円 / 管理費3,000円
敷
10.7万円礼
10.7万円1DK / 29.32㎡ / 3階
賃貸アパート
robot home 千住大橋

京成本線 / 千住大橋駅 徒歩10分
新築 / 3階建
東京都足立区千住緑町3丁目

8.8万円 / 管理費3,000円
敷
無料礼
8.8万円1K / 20.06㎡ / 2階
賃貸マンション
メインステージ千住中居町

京成本線 / 千住大橋駅 徒歩12分
築7年 / 9階建
東京都足立区千住中居町12-18

9.1万円 / 管理費20,000円
敷
無料礼
無料1K / 21.23㎡ / 7階
賃貸マンション
メインステージ北千住Ⅴ

常磐線 / 北千住駅 徒歩9分
築7年 / 9階建
東京都足立区千住東1丁目18-14

9.5万円 / 管理費15,000円
敷
無料礼
9.5万円1K / 21.38㎡ / 5階
賃貸アパート
Parc IkedaI
常磐線 / 北千住駅 徒歩12分
築4年 / 3階建
東京都足立区千住龍田町
10.7万円 / 管理費3,000円
敷
10.7万円礼
10.7万円1DK / 29.32㎡ / 3階
賃貸アパート
robot home 千住大橋

京成本線 / 千住大橋駅 徒歩10分
新築 / 3階建
東京都足立区千住緑町3丁目

8.8万円 / 管理費3,000円
敷
無料礼
8.8万円1K / 20.06㎡ / 2階
賃貸マンション
メインステージ千住中居町

京成本線 / 千住大橋駅 徒歩12分
築7年 / 9階建
東京都足立区千住中居町12-18

9.1万円 / 管理費20,000円
敷
無料礼
無料1K / 21.23㎡ / 7階
賃貸マンション
メインステージ北千住Ⅴ

常磐線 / 北千住駅 徒歩9分
築7年 / 9階建
東京都足立区千住東1丁目18-14

9.5万円 / 管理費15,000円
敷
無料礼
9.5万円1K / 21.38㎡ / 5階



































