シースカイ平井1R/1階/102号室(東京都江戸川区 / 平井駅)の賃貸
1/20
1/20
6.8万円
初期費用を知りたい管理費4,000円
- 敷金
- 無料
- 保証金
- なし
- 礼金
- 無料
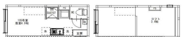
- 広さ
- 11㎡
- 階数
- 1階 / 2階建
- 間取り
- 1R
- 建物
- アパート (木造)
- 築年数
- 新築
- 向き
- 北西
- 交通
- 総武線 / 平井駅徒歩10分
- 東武亀戸線 / 亀戸水神駅徒歩18分
- 住所
- 東京都江戸川区平井2丁目3番23号
江戸川平井郵便局 570m
(株)東日本銀行/平井支店 724m
(株)みずほ銀行/平井支店 762m
平井駅 838m
西友平井店 1016m
平井駅前郵便局 926m
亀戸水神駅 1462m
東大島駅前郵便局 1539m
小松川小学校 518m
小松川第二中学校夜間学級 422m
コンビニ 290m
スーパー 584m
無料で10秒! カンタンお問い合わせ
)
シースカイ平井
敷
無料礼
無料特徴
バス・トイレ別
2階以上
エアコン付き
ペット相談可
駐車場あり
室内洗濯機置場
オートロック
洗面所独立
- 入居条件
- 子供可、ルームシェア可、二人入居可最新の空室状況が知りたい
- バス・トイレ
- 給湯、シャワー、バストイレ別、温水洗浄便座
- キッチン
- ガスキッチン、システムキッチン
- 室内設備
- エアコン、インターホン、インターネット対応、ネット使用料不要、フローリング、クロゼット、シューズボックスお部屋の詳しい情報を知りたい
- 部屋の特徴
- ロフト写真を送ってほしい
- 共用部
- 宅配ボックス、敷地内ごみ置き場
- その他の特徴
- プロパンガス
無料で10秒! カンタンお問い合わせ
)
シースカイ平井
敷
無料礼
無料その他
- 駐車/駐輪
- 無し / なし駐車可能な車種や台数を知りたい
- 入居時期
- 損保
- 住宅保険: 要 20000円
- 保証人代行
- 保証人: 不要
- その他費用
- 情報
情報登録日:2025/10/3
情報更新日:2025/12/28
次回更新予定日:2026/1/14
- 備考
- 更新料: 102000円 退去時費用備考: 退去費用実費精算 その他: シノケンコミュニケーションズ加入のこと(毎月支払い合計額の50%※1年毎更新料10,000~12,000円)※大手法人の場合は、敷金2ヶ月にてご相談※火災保険は目安※短解有 保証会社利用可 シノケンコミュニケーションズ加入のこと(毎月支払い合計額の50%※1年毎更新料10,000~12,000円)※大手法人の場合は、敷金2ヶ月にてご相談※火災保険は目安※短解有 その他初期費用 11000円 業者管理CD: 111016418
取扱い会社
- 取扱い会社
- アパマンショップ亀戸店 株式会社 アップル条件が近い物件も紹介してほしい
- 免許番号
- 国土交通大臣(5)6971
- 取引態様
- 一般媒介
- 所在地
- 東京都江東区亀戸5丁目
- 電話番号
- 03-6892-3535
- 所属団体名
- (公社)東京都宅地建物取引業協会,(公社) 首都圏不動産公正取引協議会加盟
おすすめ物件 (18件)
賃貸マンション
アルテシモリンクコモド(ARTESSIMO LINK COM
東武亀戸線 / 亀戸水神駅 徒歩9分
築17年 / 7階建
東京都江東区亀戸6丁目44-4
8.45万円 / 管理費16,000円
敷
無料礼
4.225万円ワンルーム / 20.54㎡ / 4階
賃貸マンション
ベルシードステアー亀戸

東武亀戸線 / 亀戸水神駅 徒歩10分
築3年 / 5階建
東京都江東区亀戸4丁目35-5

8.1万円 / 管理費5,000円
敷
無料礼
8.1万円ワンルーム / 17㎡ / 3階
賃貸マンション
ARTESSIMO LINK COMODO

東武亀戸線 / 亀戸水神駅 徒歩8分
築17年 / 7階建
東京都江東区亀戸6丁目

8.4万円 / 管理費15,000円
敷
無料礼
4.2万円ワンルーム / 20.54㎡ / 4階
賃貸アパート
livegreen

総武線 / 平井駅 徒歩12分
築3年 / 3階建
東京都江戸川区平井2丁目5-8

7.3万円 / 管理費4,000円
敷
7.3万円礼
3.65万円1K / 20.13㎡ / 2階
賃貸アパート
BLX Hirai

総武線 / 平井駅 徒歩10分
新築 / 2階建
東京都江戸川区平井1丁目19-1

6.75万円 / 管理費4,000円
敷
無料礼
6.75万円ワンルーム / 12.1㎡ / 1階
賃貸アパート
Villetta I 亀戸

東武亀戸線 / 亀戸水神駅 徒歩5分
新築 / 2階建
東京都江東区亀戸5丁目27-8

6.7万円 / 管理費4,000円
敷
無料礼
6.7万円ワンルーム / 11.9㎡ / 1階
賃貸マンション
アルテシモ リンク コモド
)
東武亀戸線 / 亀戸水神駅 徒歩8分
築17年 / 7階建
東京都江東区亀戸6丁目44-4
)
8.5万円 / 管理費10,000円
敷
無料礼
8.5万円ワンルーム / 20.6㎡ / 2階
賃貸アパート
江戸川区平井 2階建 2025年築
)
総武線 / 平井駅 徒歩10分
新築 / 2階建
東京都江戸川区平井2丁目3番23号
)
6.8万円 / 管理費4,000円
敷
無料礼
無料ワンルーム / 11㎡ / 1階
賃貸マンション
アルテシモリンクコモド(ARTESSIMO LINK COM
東武亀戸線 / 亀戸水神駅 徒歩9分
築17年 / 7階建
東京都江東区亀戸6丁目44-4
8.45万円 / 管理費16,000円
敷
無料礼
4.225万円ワンルーム / 20.54㎡ / 4階
賃貸マンション
ベルシードステアー亀戸

東武亀戸線 / 亀戸水神駅 徒歩10分
築3年 / 5階建
東京都江東区亀戸4丁目35-5

8.1万円 / 管理費5,000円
敷
無料礼
8.1万円ワンルーム / 17㎡ / 3階
賃貸マンション
ARTESSIMO LINK COMODO

東武亀戸線 / 亀戸水神駅 徒歩8分
築17年 / 7階建
東京都江東区亀戸6丁目

8.4万円 / 管理費15,000円
敷
無料礼
4.2万円ワンルーム / 20.54㎡ / 4階
賃貸アパート
livegreen

総武線 / 平井駅 徒歩12分
築3年 / 3階建
東京都江戸川区平井2丁目5-8

7.3万円 / 管理費4,000円
敷
7.3万円礼
3.65万円1K / 20.13㎡ / 2階
賃貸アパート
BLX Hirai

総武線 / 平井駅 徒歩10分
新築 / 2階建
東京都江戸川区平井1丁目19-1

6.75万円 / 管理費4,000円
敷
無料礼
6.75万円ワンルーム / 12.1㎡ / 1階
賃貸アパート
Villetta I 亀戸

東武亀戸線 / 亀戸水神駅 徒歩5分
新築 / 2階建
東京都江東区亀戸5丁目27-8

6.7万円 / 管理費4,000円
敷
無料礼
6.7万円ワンルーム / 11.9㎡ / 1階
賃貸マンション
アルテシモ リンク コモド
)
東武亀戸線 / 亀戸水神駅 徒歩8分
築17年 / 7階建
東京都江東区亀戸6丁目44-4
)
8.5万円 / 管理費10,000円
敷
無料礼
8.5万円ワンルーム / 20.6㎡ / 2階
賃貸アパート
江戸川区平井 2階建 2025年築
)
総武線 / 平井駅 徒歩10分
新築 / 2階建
東京都江戸川区平井2丁目3番23号
)
6.8万円 / 管理費4,000円
敷
無料礼
無料ワンルーム / 11㎡ / 1階
)
)
)
)
)
)
)
)
)
)
)
)
)
)
)
)
)
)
)






)
)




)
)
)
)
)
)
)
)
)
)