(仮称)キャメル入間黒須A1LDK/2階/201(埼玉県入間市 / 入間市駅)の賃貸
1/20
1/20
6.8万円
初期費用を知りたい管理費3,500円
- 敷金
- 無料
- 保証金
- なし
- 礼金
- 6.8万円
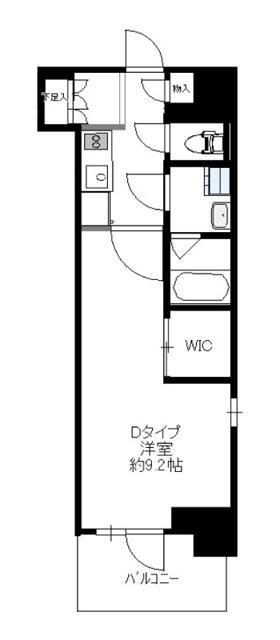
- 広さ
- 35.38㎡
- 階数
- 2階 / 地上3階地下1階建
- 間取り
- 1LDK
- 建物
- アパート (木造)
- 築年数
- 新築
- 向き
- 南西
- 交通
- 西武池袋線 / 入間市駅徒歩8分
- 西武池袋線 / 稲荷山公園駅徒歩14分
- 住所
- 埼玉県入間市黒須1丁目9(以下未定)
無料で10秒! カンタンお問い合わせ

(仮称)キャメル入間黒須A
敷
無料礼
6.8万円特徴
バス・トイレ別
2階以上
エアコン付き
ペット相談可
駐車場あり
室内洗濯機置場
オートロック
洗面所独立
- 入居条件
- ルームシェア不可、楽器不可、事務所(SOHO)不可、二人入居可、ペット不可、保証人不要最新の空室状況が知りたい
- バス・トイレ
- 専用バス、専用トイレ、バストイレ別、シャワー、給湯、シャワー付洗面化粧台、温水洗浄便座、浴室乾燥機、洗面所独立
- キッチン
- ガスコンロ対応、2口コンロ、システムキッチン
- 室内設備
- エアコン、室内洗濯置、フローリング、インターネット対応、ネット使用料不要、クロゼット、シューズボックス、照明付お部屋の詳しい情報を知りたい
- 部屋の特徴
- バルコニー、角住戸、二階以上写真を送ってほしい
- 共用部
- 宅配ボックス、駐輪場
- その他の特徴
- 公営水道、プロパンガス、下水
無料で10秒! カンタンお問い合わせ

(仮称)キャメル入間黒須A
敷
無料礼
6.8万円同じ建物で掲載中の物件 (11件)
不動産会社からのコメント
駐輪場付きのアパートです。共用部には宅配ボックスが付いているため、非対面で荷物を受け取れます。室内設
緊急対応費1210円(月額) こちらの物件はアパートです。室内設備は浴室乾燥機・洗面化粧台などが揃っているので、快適に過ごしやすいお部屋になります。収納はクロゼット・シューズボックスなど豊富なので、衣類や履き物の整理がしやすく便利です。暮らしに便利な、駅まで徒歩8分の物件です。入間市エリアの入間市付近で不動産をお探しの方。きっとあなた好みのお部屋が見つかります。お気軽にご連絡ください。
その他
- 駐車/駐輪
- 無 / あり駐車可能な車種や台数を知りたい
- 入居時期
- 2026年2月最新の空室状況が知りたい
- 損保
- 住宅保険: 要
- 保証人代行
- 加入要 会社名: ジェイリース 費用: 総賃料の50%・月額保証料総賃料の1.5% 以降継続保証料10,000円/年
- その他費用
初期費用を知りたい消火剤:15,400円
- 情報
情報登録日:2025/12/15
情報更新日:2025/12/14
次回更新予定日:2025/12/23
- 備考
- 現況: 未完成 状態: 未入居 更新料: 新賃料の1.0ヶ月分 契約期間: 2年 管理人: 巡回 自社管理番号: 322784
取扱い会社
- 取扱い会社
- 株式会社ラフテル条件が近い物件も紹介してほしい
- 免許番号
- 埼玉県知事(1)第25398号
- 取引態様
- 仲介
- 所在地
- 埼玉県所沢市松葉町10-1野口ビルディング5F
- 電話番号
- 04-2997-9125
- 定休日
- 水曜日
- 所属団体名
- (公社)不動産保証協会
おすすめ物件 (18件)
賃貸マンション
アルティジャーノディーズ狭山(C)

西武池袋線 / 稲荷山公園駅 徒歩25分
新築 / 10階建
埼玉県狭山市入間川2丁目

8.05万円 / 管理費5,000円
敷
無料礼
8.05万円1K / 28.5㎡ / 8階
賃貸マンション
アルティジャーノディーズ狭山★(D)

西武池袋線 / 稲荷山公園駅 徒歩25分
新築 / 10階建
埼玉県狭山市入間川2丁目

8.4万円 / 管理費5,000円
敷
無料礼
8.4万円1K / 30.48㎡ / 8階
賃貸アパート
HELLO SAYAMA

西武池袋線 / 稲荷山公園駅 徒歩24分
築5年 / 2階建
埼玉県狭山市入間川1丁目

8.3万円 / 管理費2,000円
敷
8.3万円礼
8.3万円1LDK / 40.99㎡ / 2階
賃貸アパート
狭山市富士見1丁目 4階建 2015年築

西武池袋線 / 稲荷山公園駅 徒歩29分
築10年 / 4階建
埼玉県狭山市富士見1丁目3-28

家賃カード決済可
6.55万円 / 管理費3,500円
敷
無料礼
6.55万円ワンルーム / 34.02㎡ / 2階
賃貸アパート
AERIE TAKAKURA

西武池袋線 / 入間市駅 徒歩22分
築30年 / 2階建
埼玉県入間市高倉4丁目

家賃カード決済可
6.7万円 / 管理費5,000円
敷
無料礼
無料1LDK / 45.38㎡ / 2階
賃貸アパート
匠乃館 G

西武池袋線 / 入間市駅 徒歩23分
築1年 / 3階建
埼玉県入間市鍵山2丁目

家賃カード決済可
8.2万円 / 管理費6,600円
敷
無料礼
8.2万円1LDK / 43.61㎡ / 2階
賃貸アパート
(仮称)キャメル入間黒須A

西武池袋線 / 入間市駅 徒歩8分
新築 / 地上3階地下1階建
埼玉県入間市黒須1丁目9(以下未定)

6.75万円 / 管理費3,500円
敷
無料礼
6.75万円1LDK / 35.38㎡ / 3階
賃貸アパート
(仮称)キャメル狭山市富士見

西武池袋線 / 稲荷山公園駅 徒歩31分
新築 / 地上3階地下1階建
埼玉県狭山市富士見1丁目14(以下未定)

6.3万円 / 管理費3,000円
敷
無料礼
6.3万円1K / 28.04㎡ / 3階
賃貸マンション
狭山市入間川2丁目 3階建 2002年築

西武池袋線 / 稲荷山公園駅 徒歩29分
築23年 / 3階建
埼玉県狭山市入間川2丁目

5.4万円 / 管理費3,300円
敷
5.4万円礼
5.4万円1K / 25.5㎡ / 2階
賃貸マンション
リブリ・Calme-Un

西武池袋線 / 稲荷山公園駅 徒歩29分
築9年 / 3階建
埼玉県狭山市富士見1丁目9-13

6.4万円 / 管理費4,000円
敷
無料礼
無料1K / 28.98㎡ / 2階
賃貸マンション
アルティジャーノD′s SAYAMA

西武池袋線 / 稲荷山公園駅 徒歩25分
新築 / 10階建
埼玉県狭山市入間川2丁目4-18

8.15万円 / 管理費5,000円
敷
無料礼
8.15万円1K / 30.48㎡ / 3階
賃貸マンション
アルティジャーノディーズ狭山(C)

西武池袋線 / 稲荷山公園駅 徒歩25分
新築 / 10階建
埼玉県狭山市入間川2丁目

8.05万円 / 管理費5,000円
敷
無料礼
8.05万円1K / 28.5㎡ / 8階
賃貸マンション
アルティジャーノディーズ狭山★(D)

西武池袋線 / 稲荷山公園駅 徒歩25分
新築 / 10階建
埼玉県狭山市入間川2丁目

8.4万円 / 管理費5,000円
敷
無料礼
8.4万円1K / 30.48㎡ / 8階
賃貸アパート
HELLO SAYAMA

西武池袋線 / 稲荷山公園駅 徒歩24分
築5年 / 2階建
埼玉県狭山市入間川1丁目

8.3万円 / 管理費2,000円
敷
8.3万円礼
8.3万円1LDK / 40.99㎡ / 2階
賃貸アパート
狭山市富士見1丁目 4階建 2015年築

西武池袋線 / 稲荷山公園駅 徒歩29分
築10年 / 4階建
埼玉県狭山市富士見1丁目3-28

家賃カード決済可
6.55万円 / 管理費3,500円
敷
無料礼
6.55万円ワンルーム / 34.02㎡ / 2階
賃貸アパート
AERIE TAKAKURA

西武池袋線 / 入間市駅 徒歩22分
築30年 / 2階建
埼玉県入間市高倉4丁目

家賃カード決済可
6.7万円 / 管理費5,000円
敷
無料礼
無料1LDK / 45.38㎡ / 2階
賃貸アパート
匠乃館 G

西武池袋線 / 入間市駅 徒歩23分
築1年 / 3階建
埼玉県入間市鍵山2丁目

家賃カード決済可
8.2万円 / 管理費6,600円
敷
無料礼
8.2万円1LDK / 43.61㎡ / 2階
賃貸アパート
(仮称)キャメル入間黒須A

西武池袋線 / 入間市駅 徒歩8分
新築 / 地上3階地下1階建
埼玉県入間市黒須1丁目9(以下未定)

6.75万円 / 管理費3,500円
敷
無料礼
6.75万円1LDK / 35.38㎡ / 3階
賃貸アパート
(仮称)キャメル狭山市富士見

西武池袋線 / 稲荷山公園駅 徒歩31分
新築 / 地上3階地下1階建
埼玉県狭山市富士見1丁目14(以下未定)

6.3万円 / 管理費3,000円
敷
無料礼
6.3万円1K / 28.04㎡ / 3階
賃貸マンション
狭山市入間川2丁目 3階建 2002年築

西武池袋線 / 稲荷山公園駅 徒歩29分
築23年 / 3階建
埼玉県狭山市入間川2丁目

5.4万円 / 管理費3,300円
敷
5.4万円礼
5.4万円1K / 25.5㎡ / 2階
賃貸マンション
リブリ・Calme-Un

西武池袋線 / 稲荷山公園駅 徒歩29分
築9年 / 3階建
埼玉県狭山市富士見1丁目9-13

6.4万円 / 管理費4,000円
敷
無料礼
無料1K / 28.98㎡ / 2階
賃貸マンション
アルティジャーノD′s SAYAMA

西武池袋線 / 稲荷山公園駅 徒歩25分
新築 / 10階建
埼玉県狭山市入間川2丁目4-18

8.15万円 / 管理費5,000円
敷
無料礼
8.15万円1K / 30.48㎡ / 3階











































