世田谷区 8階建 1995年築3LDK/2階/206(東京都世田谷区 / 富士見ヶ丘駅)の賃貸
1/26
1/26
19.5万円
初期費用を知りたい管理費10,000円
家賃割引サービス適用で最大2年間4.8万円割引
- 敷金
- 19.5万円
- 保証金
- なし
- 礼金
- 19.5万円
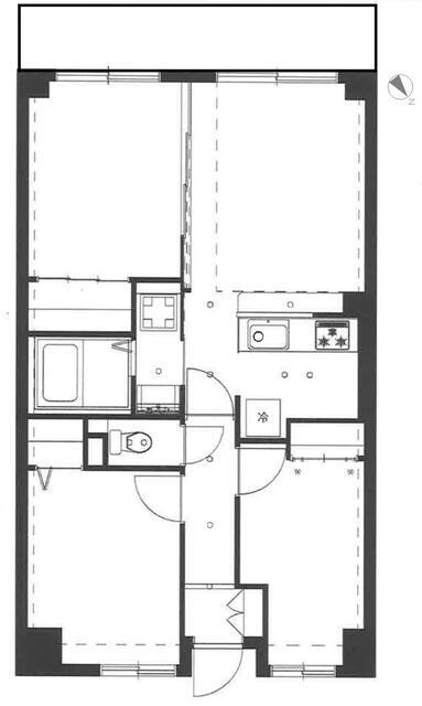
- 広さ
- 63.34㎡
- 階数
- 2階 / 8階建
- 間取り
- 3LDK
- 建物
- マンション (鉄筋コンクリート)
- 築年数
- 築30年
- 向き
- 南西
- 交通
- 京王井の頭線 / 富士見ヶ丘駅徒歩10分
- 京王井の頭線 / 久我山駅徒歩12分
- 住所
- 東京都世田谷区北烏山2丁目2-18
コンビニエンスストア 550m
スーパーマーケット 330m
公園 350m
社会福祉法人康和会久我山病院 437m
無料で10秒! カンタンお問い合わせ
世田谷区 8階建 1995年築
敷
19.5万円礼
19.5万円特徴
バス・トイレ別
2階以上
エアコン付き
ペット相談可
駐車場あり
室内洗濯機置場
オートロック
洗面所独立
- 入居条件
- 二人入居可、初期費用カード決済可、即入居可最新の空室状況が知りたい
- バス・トイレ
- 給湯、専用バス、オートバス、追焚機能浴室、浴室乾燥機、シャワー、専用トイレ、温水洗浄便座、バストイレ別、洗面所独立
- キッチン
- ガスコンロ対応、3口以上コンロ、カウンターキッチン、システムキッチン
- セキュリティ
- オートロック、防犯カメラ
- 室内設備
- CATV、インターネット対応、光ファイバー、エアコン、クロゼット、シューズボックス、室内洗濯置、フローリング、ネット使用料不要お部屋の詳しい情報を知りたい
- 部屋の特徴
- バルコニー、二階以上写真を送ってほしい
- 共用部
- エレベーター、宅配ボックス、駐輪場、バイク置場、敷地内駐車場
- その他の特徴
- 公営水道、都市ガス、外壁タイル張り、駐車場あり
無料で10秒! カンタンお問い合わせ
世田谷区 8階建 1995年築
敷
19.5万円礼
19.5万円同じ建物で掲載中の物件 (1件)
不動産会社からのコメント
お部屋探しはタウンハウジングまで。新着情報毎日更新。明るく元気なスタッフがお待ちしております。
お部屋探しはタウンハウジングまで。新着情報毎日更新。明るく元気なスタッフがお待ちしております。
その他
- 駐車/駐輪
- 空有 費用: 22,000円 税: 税込み 距離: 0m 空き数: 1 / あり駐車可能な車種や台数を知りたい
- 入居時期
- 損保
- 住宅保険: 要
- 保証人代行
- 加入要 会社名: その他 費用: 0.50ヶ月 ジェイリース 保証(初回:総賃料の50%、月額:1,000円)
- その他費用
初期費用を知りたい鍵交換費用:22,000円
消臭除菌費:20,900円
駐輪場料金:166円
バイク置場料金:4,400円
- 情報
情報登録日:2025/4/18
情報更新日:2025/12/8
次回更新予定日:2025/12/21
- 備考
- 現況: 空家 更新料: 新賃料の1.0ヶ月分 契約期間: 2年
取扱い会社
- 取扱い会社
- 株式会社タウンハウジング 明大前店条件が近い物件も紹介してほしい
- 免許番号
- 国土交通大臣(1)9926号
- 取引態様
- 仲介
- 所在地
- 東京都世田谷区松原2丁目 45-2 レインボー591 1F
- 電話番号
- 03-3322-8331
- 所属団体名
- 東京都宅地建物取引業協会
おすすめ物件 (2件)
賃貸マンション
ヴェルデ久我山

京王井の頭線 / 富士見ヶ丘駅 徒歩10分
築30年 / 8階建
東京都世田谷区北烏山2丁目2-18

19.5万円 / 管理費10,000円
敷
19.5万円礼
19.5万円3LDK / 63.34㎡ / 2階
賃貸マンション
京王井の頭線 高井戸駅 10階建 築23年
京王井の頭線 / 富士見ヶ丘駅 徒歩19分
築22年 / 10階建
東京都杉並区高井戸東4
17.8万円 / 管理費10,000円
敷
17.8万円礼
35.6万円2LDK / 60㎡ / 7階
賃貸マンション
ヴェルデ久我山

京王井の頭線 / 富士見ヶ丘駅 徒歩10分
築30年 / 8階建
東京都世田谷区北烏山2丁目2-18

19.5万円 / 管理費10,000円
敷
19.5万円礼
19.5万円3LDK / 63.34㎡ / 2階
賃貸マンション
京王井の頭線 高井戸駅 10階建 築23年
京王井の頭線 / 富士見ヶ丘駅 徒歩19分
築22年 / 10階建
東京都杉並区高井戸東4
17.8万円 / 管理費10,000円
敷
17.8万円礼
35.6万円2LDK / 60㎡ / 7階
