ストーリア赤坂2LDK/1階(東京都港区 / 赤坂駅)の賃貸
1/25
1/25
48万円
初期費用を知りたい管理費10,000円
- 敷金
- 48万円
- 保証金
- なし
- 礼金
- 48万円
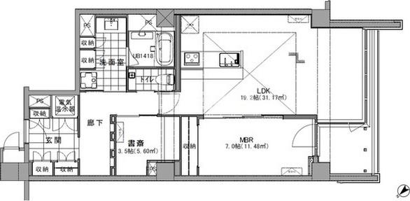
- 広さ
- 70.22㎡
- 階数
- 1階 / 地上5階地下2階建
- 間取り
- 2LDK
- 建物
- マンション (鉄筋コンクリート)
- 築年数
- 築23年
- 向き
- 南西
- 交通
- 東京メトロ千代田線 / 赤坂駅徒歩5分
- 東京メトロ日比谷線 / 六本木駅徒歩9分
- 住所
- 東京都港区赤坂6丁目
コンビニエンスストア 67m
スーパーマーケット 67m
総合病院 515m
商店街 1095m
マルエツ プチ 赤坂店 138m
無料で10秒! カンタンお問い合わせ

ストーリア赤坂
敷
48万円礼
48万円特徴
バス・トイレ別
2階以上
エアコン付き
ペット相談可
駐車場あり
室内洗濯機置場
オートロック
洗面所独立
- 入居条件
- 保証人不要、即入居可最新の空室状況が知りたい
- バス・トイレ
- 専用バス、専用トイレ、バストイレ別、給湯、追焚機能浴室、温水洗浄便座、浴室乾燥機、洗面所独立
- キッチン
- IHクッキングヒーター、3口以上コンロ、システムキッチン、食器洗乾燥機
- セキュリティ
- オートロック、防犯カメラ
- 室内設備
- エアコン、室内洗濯置、CS、BS、フローリング、インターネット対応、ネット使用料不要、クロゼットお部屋の詳しい情報を知りたい
- 部屋の特徴
- バルコニー写真を送ってほしい
- 共用部
- エレベーター、宅配ボックス
- その他の特徴
- 公営水道、下水
無料で10秒! カンタンお問い合わせ

ストーリア赤坂
敷
48万円礼
48万円不動産会社からのコメント
問合せ当日でもご対応可能。 土日祝日は混み合いますのでお早めにご予約ください。他社掲載物件もまとめて
鍵交換代22000円・退去時クリーニング費用73700円・エアコン清掃代33000円
その他
- 駐車/駐輪
- 無 / なし駐車可能な車種や台数を知りたい
- 入居時期
- 損保
- 住宅保険: 要
- 保証人代行
- 加入要 会社名: オリコ 費用: 初回保証料:総賃料の50% 月額保証料:総賃料の1%
- その他費用
初期費用を知りたい鍵交換代:22,000円
退去時クリーニング費用:73,700円
エアコン清掃代:33,000円
- 情報
情報登録日:2025/10/7
情報更新日:2025/12/7
次回更新予定日:2025/12/17
- 備考
- 現況: 空家 更新料: 新賃料の1.0ヶ月分 契約期間: 2年 管理人: 巡回 その他交通: 東京地下鉄千代田線 乃木坂駅 徒歩12分 自社管理番号: 6198573
取扱い会社
- 取扱い会社
- 株式会社リブマックスリーシング 日本橋茅場町店条件が近い物件も紹介してほしい
- 免許番号
- 国土交通大臣 (3) 第8116号
- 取引態様
- 仲介
- 所在地
- 東京都中央区日本橋茅場町3丁目7-3 ホテルリブマックス日本橋茅場町 1F
- 電話番号
- 03-5644-1200
- 定休日
- 水曜日(年末年始、GW、夏季)
- 所属団体名
- 公益社団法人 全国宅地建物取引業保証協会
おすすめ物件 (1件)
賃貸マンション
港区赤坂6丁目 地上10階地下1階建 2013年築

東京メトロ千代田線 / 赤坂駅 徒歩6分
築12年 / 10階建
東京都港区赤坂6丁目

47万円 / 管理費15,000円
敷
47万円礼
47万円2LDK / 73.11㎡ / 1階
賃貸マンション
港区赤坂6丁目 地上10階地下1階建 2013年築

東京メトロ千代田線 / 赤坂駅 徒歩6分
築12年 / 10階建
東京都港区赤坂6丁目

47万円 / 管理費15,000円
敷
47万円礼
47万円2LDK / 73.11㎡ / 1階
同じ最寄り駅 × 同じ特徴 で探す
同じ市区町村 × 同じ特徴 で探す


























)


