豊洲シエルタワー(東京都江東区 / 豊洲駅) の賃貸物件情報
募集中のお部屋が2件あります




















- 建物
- マンション (鉄筋コンクリート)
- 築年数
- 築19年 (2006年)
- 駐車場
- 空無
- 交通
- 東京メトロ有楽町線 / 豊洲駅徒歩1分
- 京葉線 / 越中島駅徒歩26分
- 住所
- 東京都江東区豊洲5丁目5-1
掲載中の物件(2件)
豊洲シエルタワーとは
東京都江東区豊洲5丁目に位置する「豊洲シエルタワー」のご紹介です。 2006年9月に建てられた「豊洲シエルタワー」は、地下1地上40階建ての高級タワーマンションです。総戸数395戸には、単身者、カップル、ファミリーなど幅広い層に最適な1LDK〜2LDKのお部屋を取り揃えております。 セキュリティ対策としてオートロック、防犯カメラ、TVモニター付きインターホン、ディンプルキー、宅配ボックスが完備され、また管理員が常駐しています。館内にはコンシェルジュデスク、ラウンジ、パーティールーム、敷地内ゴミ置き場もあるため、快適に暮らすことができます。お部屋ではケーブルテレビを視聴いただけます。尚、駐車場は月額27,000円~31,000円です。 「豊洲駅」から徒歩1分の駅近物件です。また、「新豊洲駅」「越中島駅」「東雲駅」「市場前駅」からも徒歩圏内となっています。 物件周辺には商業施設の「アーバンドック ららぽーと豊洲」や「豊洲ベイサイドクロス」があり、ショッピングや外食に最適なエリアです。
- コンビニエンスストア 82m
- スーパーマーケット 320m
- 総合病院 381m
- 公園 1063m
- ドラッグストア 180m
- 銀行 266m
- 白洋舎 豊洲店 23m
その他
- 駐車/駐輪
- 空無
- 入居時期
- 2026年1月下旬
- 損保
- 住宅保険: 要
- 保証代行人
- 加入要 費用: レジデンシャルパートナーズ保証料:賃料等の50%(最低2万)、月額保証・事務手数料:賃料等の1%(更新料無)
- その他費用
- -
- 情報
情報登録日:2025/12/2
情報更新日:2025/12/15
次回更新予定日:2025/12/19
- 備考
- 現況: 空家 更新料: 新賃料の1.0ヶ月分 契約期間: 2年 管理人: 常駐 総戸数: 395戸 自社管理番号: B74965R454068
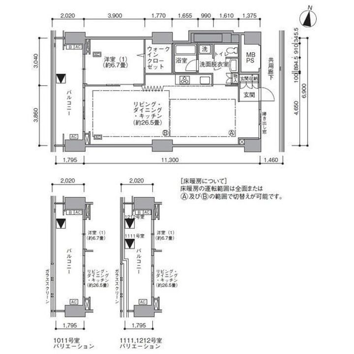
1LDK/21階
- 敷金
- 24.7万円
- 保証金
- なし
- 礼金
- 37.05万円
- 広さ
- 53.21㎡
- 階数
- 21階 / 地上40階地下1階建
- 間取り
- 1LDK (LD11.0帖 / K3.1帖 / 洋6.2帖)
- 向き
- 南
無料で10秒! カンタンお問い合わせ

豊洲シエルタワー
特徴
- 入居条件
- 保証人不要、初期費用カード決済可、二人入居可
- バス・トイレ
- 専用バス、追焚機能浴室、浴室乾燥機、バストイレ別、専用トイレ、温水洗浄便座、洗面所独立
- キッチン
- カウンターキッチン、システムキッチン、3口以上コンロ
- セキュリティ
- オートロック、防犯カメラ
- 室内設備
- BS、クロゼット、CATV、床暖房、エアコン、インターネット対応、室内洗濯置、フローリング、CS、シューズボックス
- 部屋の特徴
- バルコニー、二階以上
- 共用部
- エレベーター、駐輪場、宅配ボックス、バイク置場
- その他の特徴
- 下水、分譲賃貸、公営水道、家賃保証付き、都市ガス
無料で10秒! カンタンお問い合わせ

豊洲シエルタワー
おすすめ物件 (10件)
ブリリアイスト東雲キャナルコート
東雲キャナルコートCODAN16号棟


クレストシティ木場


東雲キャナルコートCODAN11号棟
ブリリアントヨス
江東区東雲1丁目 14階建 2005年築


Brilliaist東雲キャナルコート


江東区東雲1丁目 14階建 2005年築


ブリリアイスト東雲キャナルコート
東雲キャナルコートCODAN16号棟


クレストシティ木場


東雲キャナルコートCODAN11号棟
ブリリアントヨス
江東区東雲1丁目 14階建 2005年築


Brilliaist東雲キャナルコート


江東区東雲1丁目 14階建 2005年築






