保谷町フラッツ1R/1階/102(東京都西東京市 / 西武柳沢駅)の賃貸
1/15
1/15
5.8万円
初期費用を知りたい管理費2,000円
家賃割引サービス適用で最大2年間4.8万円割引
- 敷金
- 5.8万円
- 保証金
- なし
- 礼金
- 無料
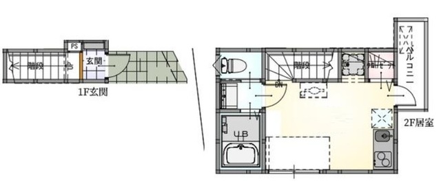
- 広さ
- 17.07㎡
- 階数
- 1階 / 3階建
- 間取り
- 1R
- 建物
- アパート (木造)
- 築年数
- 築3年
- 向き
- 南
- 交通
- 西武新宿線 / 西武柳沢駅徒歩12分
- 西武新宿線 / 田無駅徒歩20分
- 住所
- 東京都西東京市保谷町6丁目21-6
コンビニエンスストア 280m
スーパーマーケット 440m
ドラッグストア 260m
保谷郵便局 340m
無料で10秒! カンタンお問い合わせ
保谷町フラッツ
敷
5.8万円礼
無料特徴
バス・トイレ別
2階以上
エアコン付き
ペット相談可
駐車場あり
室内洗濯機置場
オートロック
洗面所独立
- 入居条件
- 保証人不要最新の空室状況が知りたい
- バス・トイレ
- 給湯、専用バス、浴室乾燥機、シャワー、専用トイレ、バストイレ別、シャワー付洗面化粧台、洗面所独立
- キッチン
- ガスコンロ対応、2口コンロ、システムキッチン
- 室内設備
- CATV、インターネット対応、エアコン、冷房、室内洗濯置、フローリングお部屋の詳しい情報を知りたい
- その他の特徴
- 下水、公営水道、都市ガス
無料で10秒! カンタンお問い合わせ
保谷町フラッツ
敷
5.8万円礼
無料不動産会社からのコメント
★当社掲載以外のお部屋もご紹介出来ます★
賃貸物件のお部屋探しはタウンハジング大泉学園店へ
その他
- 駐車/駐輪
- 要確認 / なし駐車可能な車種や台数を知りたい
- 入居時期
- 2025年12月下旬最新の空室状況が知りたい
- 損保
- 住宅保険: 要
- 保証人代行
- 加入要 会社名: その他 費用: 0.50ヶ月 総額賃料の50% 翌年から10,000円
- その他費用
初期費用を知りたい24時間駆けつけサポート:16,500円
- 情報
情報登録日:2025/12/6
情報更新日:2025/12/6
次回更新予定日:2025/12/14
- 備考
- 現況: 空家 更新料: 新賃料の1.0ヶ月分 契約期間: 2年 総戸数: 8戸
取扱い会社
- 取扱い会社
- 株式会社タウンハウジング 大泉学園店条件が近い物件も紹介してほしい
- 免許番号
- 国土交通大臣(1)9926号
- 取引態様
- 仲介
- 所在地
- 東京都練馬区東大泉1丁目 30-3 大泉不動産ビル1階
- 電話番号
- 03-3922-8107
- 営業時間
- 10:00~19:00
- 定休日
- 水曜日(GW・夏季休暇・年末年始)
- 所属団体名
- 東京都宅地建物取引業協会
おすすめ物件 (5件)
賃貸アパート
西東京市芝久保町5丁目 2階建 2001年築

西武新宿線 / 田無駅 徒歩21分
築24年 / 2階建
東京都西東京市芝久保町5丁目5-4

5.3万円 / 管理費5,500円
敷
無料礼
5.3万円1K / 25.5㎡ / 1階
賃貸アパート
リヴァティ保谷

西武池袋線 / 保谷駅 徒歩4分
築6年 / 3階建
東京都西東京市下保谷4丁目1-17

7.3万円 / 管理費3,000円
敷
7.3万円礼
7.3万円ワンルーム / 11.5㎡ / 2階
賃貸アパート
西東京市芝久保町5丁目 2階建 2001年築

西武新宿線 / 田無駅 徒歩21分
築24年 / 2階建
東京都西東京市芝久保町5丁目5-4

5.3万円 / 管理費5,500円
敷
無料礼
5.3万円1K / 25.5㎡ / 1階
賃貸アパート
リヴァティ保谷

西武池袋線 / 保谷駅 徒歩4分
築6年 / 3階建
東京都西東京市下保谷4丁目1-17

7.3万円 / 管理費3,000円
敷
7.3万円礼
7.3万円ワンルーム / 11.5㎡ / 2階
同じ最寄り駅 × 同じ特徴 で探す
同じ市区町村 × 同じ特徴 で探す


