レジディア南千住(東京都荒川区 / 南千住駅) の賃貸物件情報
募集中のお部屋が8件あります


1/1
1/1
- 建物
- マンション (鉄筋コンクリート)
- 築年数
- 築18年 (2007年)
- 駐車場
- 無
- 交通
- 常磐線 / 南千住駅徒歩12分
- 東武伊勢崎線 / 鐘ヶ淵駅徒歩19分
- 住所
- 東京都荒川区南千住3丁目41-6
掲載中の物件(8件)
レジディア南千住とは
「レジディア南千住」のご紹介です。 東京都荒川区南千住3丁目に建つ地上11階建ての「レジディア南千住」は、2007年3月築の高級大型レジデンスです。総戸数175戸には1DK~3LDKのお部屋をご用意しており、耐震性と防音性に優れた建物となっています。 オートロック、TVドアフォン、24時間セキュリティシステム、ディンプルキー、ダブルロックがセキュリティ対策として完備されています。また、館内にはコンシェルジュデスクと敷地内ゴミ置き場も設置されています。室内設備にはケーブルテレビ、シューズボックス、ダウンライトが含まれます。駐車場は月額19,000円~です。尚、一部住戸はペット相談可です。 「南千住駅」から徒歩9分、「鐘ヶ淵駅」「千住大橋駅」「京成関屋駅」からも徒歩圏内です。 物件周辺には「BiVi南千住」や「LaLaテラス南千住」があり、ショッピングや外食に最適です。また、テニスコートやプールを併設した「台東リバーサイドスポーツセンター」からも程近く、休日にはスポーツを楽しめます。
- コンビニエンスストア 222m
- スーパーマーケット 505m
- 総合病院 456m
- 公園 199m
- ドラッグストア 695m
- 銀行 1421m
- ホワイト急便南千住8丁目店 505m
その他
- 駐車/駐輪
- 無
- 入居時期
- 相談
- 損保
- 住宅保険: 要
- 保証代行人
- 加入要 費用: 初回:月額賃料等の40%~
- その他費用
- -
- 情報
情報登録日:2025/12/12
情報更新日:2025/12/19
次回更新予定日:2025/12/25
- 備考
- 現況: 居住中 契約期間: 3年 ※定期借家 自社管理番号: B2365R456832
この建物からのPick Up
3LDK/7階
1/2
1/2
25 万円 / 管理費25,000円
- 敷金
- 25万円
- 保証金
- なし
- 礼金
- 25万円
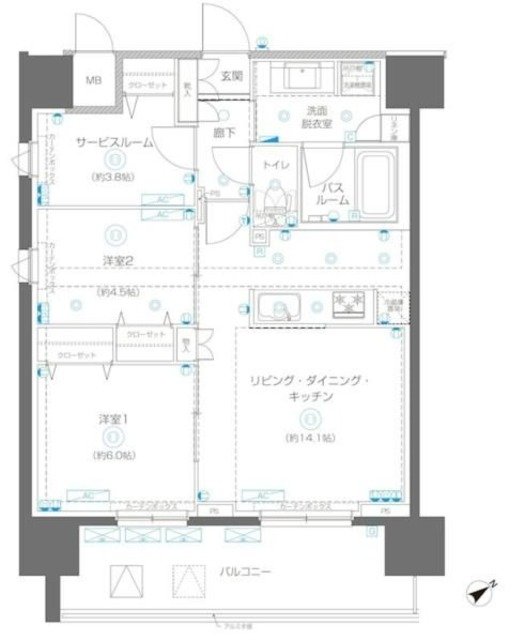
- 広さ
- 69.3㎡
- 階数
- 7階 / 11階建
- 間取り
- 3LDK
- 向き
- 南
無料で10秒! カンタンお問い合わせ

レジディア南千住
敷
25万円礼
25万円特徴
バス・トイレ別
2階以上
エアコン付き
ペット相談可
駐車場あり
室内洗濯機置場
オートロック
洗面所独立
- 入居条件
- ペット相談、保証人不要、初期費用カード決済可、ペット可、二人入居可
- バス・トイレ
- 専用バス、浴室乾燥機、バストイレ別、専用トイレ、温水洗浄便座、洗面所独立
- キッチン
- システムキッチン、ガスコンロ対応、3口以上コンロ
- セキュリティ
- オートロック、防犯カメラ
- 室内設備
- クロゼット、光ファイバー、エアコン、室内洗濯置、フローリング、シューズボックス
- 部屋の特徴
- バルコニー、二階以上
- 共用部
- エレベーター、駐輪場、宅配ボックス、バイク置場
- その他の特徴
- 下水、公営水道、定期借家、家賃保証付き、都市ガス
無料で10秒! カンタンお問い合わせ

レジディア南千住
敷
25万円礼
25万円おすすめ物件 (10件)
賃貸マンション
ロイヤルパークスシーサー南千住
東京メトロ日比谷線 / 南千住駅 徒歩9分
築19年 / 10階建
東京都荒川区南千住3丁目41-7
23.8万円 / 管理費20,000円
敷
23.8万円礼
23.8万円2LDK / 84.88㎡ / 8階
賃貸マンション
MARKSSAKURA
)
常磐線 / 南千住駅 徒歩17分
築1年 / 5階建
東京都台東区三ノ輪2丁目12-14
)
家賃カード決済可
24万円 / 管理費12,000円
敷
24万円礼
24万円1SLDK / 70.29㎡ / 5階
賃貸マンション
レジディア南千住

常磐線 / 南千住駅 徒歩12分
築18年 / 11階建
東京都荒川区南千住3丁目41-6

25万円 / 管理費25,000円
敷
25万円礼
25万円3LDK / 69.3㎡ / 7階
賃貸アパート
グランパーク南千住
つくばエクスプレス / 南千住駅 徒歩10分
築8年 / 3階建
東京都荒川区南千住6
17.8万円 / 管理費5,000円
敷
35.6万円礼
17.8万円2LDK / 67.9㎡ / 2階
賃貸マンション
アルファレジデンシア南千住

常磐線 / 南千住駅 徒歩8分
新築 / 15階建
東京都荒川区南千住1丁目59-7

24.2万円 / 管理費15,000円
敷
24.2万円礼
無料2SLDK / 64.49㎡ / 7階
賃貸マンション
ロイヤルパークスシーサー南千住
東京メトロ日比谷線 / 南千住駅 徒歩9分
築19年 / 10階建
東京都荒川区南千住3丁目41-7
23.8万円 / 管理費20,000円
敷
23.8万円礼
23.8万円2LDK / 84.88㎡ / 8階
賃貸マンション
MARKSSAKURA
)
常磐線 / 南千住駅 徒歩17分
築1年 / 5階建
東京都台東区三ノ輪2丁目12-14
)
家賃カード決済可
24万円 / 管理費12,000円
敷
24万円礼
24万円1SLDK / 70.29㎡ / 5階
賃貸マンション
レジディア南千住

常磐線 / 南千住駅 徒歩12分
築18年 / 11階建
東京都荒川区南千住3丁目41-6

25万円 / 管理費25,000円
敷
25万円礼
25万円3LDK / 69.3㎡ / 7階
賃貸アパート
グランパーク南千住
つくばエクスプレス / 南千住駅 徒歩10分
築8年 / 3階建
東京都荒川区南千住6
17.8万円 / 管理費5,000円
敷
35.6万円礼
17.8万円2LDK / 67.9㎡ / 2階
賃貸マンション
アルファレジデンシア南千住

常磐線 / 南千住駅 徒歩8分
新築 / 15階建
東京都荒川区南千住1丁目59-7

24.2万円 / 管理費15,000円
敷
24.2万円礼
無料2SLDK / 64.49㎡ / 7階




)
)
)
)
)
)




