THE HOUSE 赤坂檜町1K/1階/201(東京都港区 / 乃木坂駅)の賃貸
1/21
1/21
15万円
初期費用を知りたい管理費15,000円
- 敷金
- 15万円
- 保証金
- なし
- 礼金
- 15万円
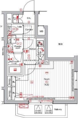
- 広さ
- 28.08㎡
- 階数
- 1階 / 地上4階地下1階建
- 間取り
- 1K
- 建物
- マンション (鉄筋コンクリート)
- 築年数
- 築10年
- 向き
- 北東
- 交通
- 東京メトロ千代田線 / 乃木坂駅徒歩6分
- 東京メトロ日比谷線 / 六本木駅徒歩9分
- 東京メトロ千代田線 / 赤坂駅徒歩12分
- 住所
- 東京都港区赤坂9丁目
ナチュラルローソン 赤坂通店 17m
ローソン港赤坂九丁目店 162m
セブン-イレブン赤坂6丁目店 333m
ローソン赤坂六丁目店 396m
スギ薬局赤坂店 417m
セブン-イレブン 赤坂氷川坂下店 488m
ローソン赤坂九丁目店 403m
トモズ 東京ミッドタウン店 396m
赤坂小学校 129m
赤坂中学校 194m
コンビニ 200m
スーパー 255m
無料で10秒! カンタンお問い合わせ
)
THE HOUSE 赤坂檜町
敷
15万円礼
15万円特徴
バス・トイレ別
2階以上
エアコン付き
ペット相談可
駐車場あり
室内洗濯機置場
オートロック
洗面所独立
- 入居条件
- ペット可最新の空室状況が知りたい
- バス・トイレ
- シャワー、追焚機能浴室、バストイレ別、洗面所独立
- キッチン
- ガスキッチン、コンロ2口以上、システムキッチン
- セキュリティ
- オートロック、オートロック
- 室内設備
- エアコン、暖房、BS、CS、CATV、インターホン、インターネット対応、ネット使用料不要、フローリング、室内洗濯置、クロゼット、シューズボックス、24時間換気システムお部屋の詳しい情報を知りたい
- 部屋の特徴
- 角住戸、バルコニー写真を送ってほしい
- 共用部
- エレベーター、宅配ボックス、駐輪場
- その他の特徴
- 分譲賃貸、都市ガス
無料で10秒! カンタンお問い合わせ
)
THE HOUSE 赤坂檜町
敷
15万円礼
15万円その他
- 駐車/駐輪
- 無し / あり駐車可能な車種や台数を知りたい
- 入居時期
- 2026年1月中旬最新の空室状況が知りたい
- 損保
- 住宅保険: 要 15000円
- 保証人代行
- 保証人: 不要
- その他費用
- 情報
情報登録日:2025/12/6
情報更新日:2025/12/4
次回更新予定日:2025/12/21
- 備考
- その他: ペット1匹の場合共益費+3500円追加、2匹の場合共益費+3500円追加及び敷金1ヶ月追加(償却)※犬・猫いずれか2匹(小型犬50cm以下、10kg以下)/賃料/更新2回まで賃料5%増額規定あり/更新料/新賃料1.0ヶ月(初回のみ)/更新事務手数料/220 保証会社利用必須 初回総賃料の50%、年更新時30000円。等 その他初期費用 61050円 業者管理CD: 93843590
取扱い会社
- 取扱い会社
- 株式会社ゼント アパマンショップ京急蒲田店条件が近い物件も紹介してほしい
- 免許番号
- 東京都知事(4)83411号
- 取引態様
- 一般媒介
- 所在地
- 東京都大田区南蒲田1-1-22 サテライトEビル1階
- 電話番号
- 03-3738-8801
- 営業時間
- 10:00~18:30
- 定休日
- 無休
- 所属団体名
- (公社)全日本不動産協会東京都本部
おすすめ物件 (14件)
賃貸マンション
パークハビオ赤坂

東京メトロ千代田線 / 赤坂駅 徒歩6分
築12年 / 11階建
東京都港区赤坂6丁目

16.8万円 / 管理費10,000円
敷
16.8万円礼
16.8万円1K / 25.04㎡ / 8階
賃貸マンション
ザ・ハウス赤坂檜町(THE HOUSE赤坂檜町)
東京メトロ千代田線 / 乃木坂駅 徒歩6分
築10年 / 地上4階地下1階建
東京都港区赤坂9丁目1-19
14.9万円 / 管理費15,000円
敷
14.9万円礼
14.9万円1K / 25.5㎡ / 1階
賃貸マンション
ホライズンプレイス赤坂

東京メトロ千代田線 / 赤坂駅 徒歩7分
築17年 / 地上18階地下1階建
東京都港区赤坂6丁目

16万円 / 管理費10,000円
敷
16万円礼
無料ワンルーム / 27.41㎡ / 3階
賃貸マンション
カーサスプレンディッド赤坂7丁目
東京メトロ千代田線 / 赤坂駅 徒歩7分
築10年 / 10階建
東京都港区赤坂7丁目10-1
15.5万円 / 管理費10,000円
敷
15.5万円礼
15.5万円1K / 26.26㎡ / 2階
賃貸マンション
六本木ライズハウス
東京メトロ日比谷線 / 六本木駅 徒歩7分
築22年 / 9階建
東京都港区六本木3丁目16-5
15万円 / 管理費10,000円
敷
15万円礼
15万円ワンルーム / 29.92㎡ / 6階
賃貸マンション
港区 15階建 2021年築

東京メトロ千代田線 / 赤坂駅 徒歩3分
築4年 / 15階建
東京都港区赤坂2丁目6-4

16万円 / 管理費なし
敷
16万円礼
16万円1K / 23.53㎡ / 9階
賃貸マンション
マルラニ南青山
東京メトロ日比谷線 / 六本木駅 徒歩11分
築11年 / 14階建
東京都港区南青山1丁目21-7
13.2万円 / 管理費10,000円
敷
13.2万円礼
13.2万円1K / 25.9㎡ / 5階
賃貸マンション
港区赤坂7丁目 地上14階地下1階建 2005年築

東京メトロ千代田線 / 赤坂駅 徒歩7分
築20年 / 14階建
東京都港区赤坂7丁目11-12

家賃カード決済可
15.6万円 / 管理費8,000円
敷
31.2万円礼
無料1K / 30.36㎡ / 5階
賃貸マンション
パークハビオ赤坂タワー

東京メトロ千代田線 / 赤坂駅 徒歩3分
築10年 / 地上21階地下1階建
東京都港区赤坂2丁目6-15

16.7万円 / 管理費10,000円
敷
16.7万円礼
16.7万円ワンルーム / 24.37㎡ / 12階
賃貸マンション
THE HOUSE 赤坂檜町
)
東京メトロ千代田線 / 乃木坂駅 徒歩6分
築10年 / 地上4階地下1階建
東京都港区赤坂9丁目1-19
)
14.9万円 / 管理費15,000円
敷
14.9万円礼
14.9万円1K / 28.08㎡ / 地下1階
賃貸マンション
港区西麻布1丁目 11階建 2014年築

東京メトロ日比谷線 / 六本木駅 徒歩5分
築11年 / 11階建
東京都港区西麻布1丁目3

15万円 / 管理費15,000円
敷
15万円礼
15万円1K / 25.6㎡ / 3階
賃貸マンション
THE HOUSE 赤坂檜町(旧プレミアムキューブM赤坂檜町

東京メトロ千代田線 / 乃木坂駅 徒歩9分
築10年 / 地上4階地下1階建
東京都港区赤坂9丁目1-19

14.9万円 / 管理費15,000円
敷
14.9万円礼
14.9万円1K / 28.08㎡ / 地下1階
賃貸マンション
セントラルクリブ六本木Ⅱ

東京メトロ千代田線 / 赤坂駅 徒歩10分
築19年 / 地上15階地下1階建
東京都港区六本木2丁目3-6

14.1万円 / 管理費13,000円
敷
14.1万円礼
無料ワンルーム / 31.18㎡ / 5階
賃貸マンション
MALULANI 南青山

東京メトロ千代田線 / 乃木坂駅 徒歩2分
築11年 / 14階建
東京都港区南青山1丁目21

13.2万円 / 管理費10,000円
敷
13.2万円礼
13.2万円1K / 25.9㎡ / 5階
賃貸マンション
パークハビオ赤坂

東京メトロ千代田線 / 赤坂駅 徒歩6分
築12年 / 11階建
東京都港区赤坂6丁目

16.8万円 / 管理費10,000円
敷
16.8万円礼
16.8万円1K / 25.04㎡ / 8階
賃貸マンション
ザ・ハウス赤坂檜町(THE HOUSE赤坂檜町)
東京メトロ千代田線 / 乃木坂駅 徒歩6分
築10年 / 地上4階地下1階建
東京都港区赤坂9丁目1-19
14.9万円 / 管理費15,000円
敷
14.9万円礼
14.9万円1K / 25.5㎡ / 1階
賃貸マンション
ホライズンプレイス赤坂

東京メトロ千代田線 / 赤坂駅 徒歩7分
築17年 / 地上18階地下1階建
東京都港区赤坂6丁目

16万円 / 管理費10,000円
敷
16万円礼
無料ワンルーム / 27.41㎡ / 3階
賃貸マンション
カーサスプレンディッド赤坂7丁目
東京メトロ千代田線 / 赤坂駅 徒歩7分
築10年 / 10階建
東京都港区赤坂7丁目10-1
15.5万円 / 管理費10,000円
敷
15.5万円礼
15.5万円1K / 26.26㎡ / 2階
賃貸マンション
六本木ライズハウス
東京メトロ日比谷線 / 六本木駅 徒歩7分
築22年 / 9階建
東京都港区六本木3丁目16-5
15万円 / 管理費10,000円
敷
15万円礼
15万円ワンルーム / 29.92㎡ / 6階
賃貸マンション
港区 15階建 2021年築

東京メトロ千代田線 / 赤坂駅 徒歩3分
築4年 / 15階建
東京都港区赤坂2丁目6-4

16万円 / 管理費なし
敷
16万円礼
16万円1K / 23.53㎡ / 9階
賃貸マンション
マルラニ南青山
東京メトロ日比谷線 / 六本木駅 徒歩11分
築11年 / 14階建
東京都港区南青山1丁目21-7
13.2万円 / 管理費10,000円
敷
13.2万円礼
13.2万円1K / 25.9㎡ / 5階
賃貸マンション
港区赤坂7丁目 地上14階地下1階建 2005年築

東京メトロ千代田線 / 赤坂駅 徒歩7分
築20年 / 14階建
東京都港区赤坂7丁目11-12

家賃カード決済可
15.6万円 / 管理費8,000円
敷
31.2万円礼
無料1K / 30.36㎡ / 5階
賃貸マンション
パークハビオ赤坂タワー

東京メトロ千代田線 / 赤坂駅 徒歩3分
築10年 / 地上21階地下1階建
東京都港区赤坂2丁目6-15

16.7万円 / 管理費10,000円
敷
16.7万円礼
16.7万円ワンルーム / 24.37㎡ / 12階
賃貸マンション
THE HOUSE 赤坂檜町
)
東京メトロ千代田線 / 乃木坂駅 徒歩6分
築10年 / 地上4階地下1階建
東京都港区赤坂9丁目1-19
)
14.9万円 / 管理費15,000円
敷
14.9万円礼
14.9万円1K / 28.08㎡ / 地下1階
賃貸マンション
港区西麻布1丁目 11階建 2014年築

東京メトロ日比谷線 / 六本木駅 徒歩5分
築11年 / 11階建
東京都港区西麻布1丁目3

15万円 / 管理費15,000円
敷
15万円礼
15万円1K / 25.6㎡ / 3階
賃貸マンション
THE HOUSE 赤坂檜町(旧プレミアムキューブM赤坂檜町

東京メトロ千代田線 / 乃木坂駅 徒歩9分
築10年 / 地上4階地下1階建
東京都港区赤坂9丁目1-19

14.9万円 / 管理費15,000円
敷
14.9万円礼
14.9万円1K / 28.08㎡ / 地下1階
賃貸マンション
セントラルクリブ六本木Ⅱ

東京メトロ千代田線 / 赤坂駅 徒歩10分
築19年 / 地上15階地下1階建
東京都港区六本木2丁目3-6

14.1万円 / 管理費13,000円
敷
14.1万円礼
無料ワンルーム / 31.18㎡ / 5階
賃貸マンション
MALULANI 南青山

東京メトロ千代田線 / 乃木坂駅 徒歩2分
築11年 / 14階建
東京都港区南青山1丁目21

13.2万円 / 管理費10,000円
敷
13.2万円礼
13.2万円1K / 25.9㎡ / 5階
)
)
)
)
)
)
)
)
)
)
)
)
)
)
)
)
)
)
)
)

