杉並区高円寺南4丁目 地上4階地下1階建 2018年築1LDK/地下1階/102(東京都杉並区 / 高円寺駅)の賃貸
1/21
1/21
16.8万円
初期費用を知りたい管理費8,000円
- 敷金
- 16.8万円
- 保証金
- なし
- 礼金
- 無料
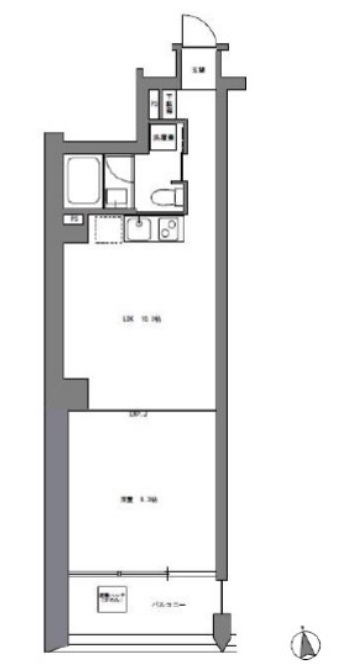
- 広さ
- 40.31㎡
- 階数
- 地下1階 / 地上4階地下1階建
- 間取り
- 1LDK
- 建物
- マンション (鉄筋コンクリート)
- 築年数
- 築7年
- 向き
- 南
- 交通
- 中央線 / 高円寺駅徒歩6分
- 東京メトロ丸ノ内線 / 東高円寺駅徒歩12分
- 住所
- 東京都杉並区高円寺南4丁目16-4
コンビニエンスストア 648m
無料で10秒! カンタンお問い合わせ

杉並区高円寺南4丁目 地上4階地下1階建 2018年築
敷
16.8万円礼
無料特徴
バス・トイレ別
2階以上
エアコン付き
ペット相談可
駐車場あり
室内洗濯機置場
オートロック
洗面所独立
- 入居条件
- 楽器不可、ペット不可、保証人不要、即入居可最新の空室状況が知りたい
- バス・トイレ
- 専用バス、専用トイレ、バストイレ別、給湯、追焚機能浴室、浴室乾燥機
- キッチン
- ガスコンロ対応、2口コンロ、システムキッチン
- セキュリティ
- オートロック
- 室内設備
- エアコン、室内洗濯置、フローリング、インターネット対応、クロゼット、シューズボックス、照明付お部屋の詳しい情報を知りたい
- 部屋の特徴
- バルコニー写真を送ってほしい
- 共用部
- 宅配ボックス
- その他の特徴
- 公営水道、都市ガス、下水
無料で10秒! カンタンお問い合わせ

杉並区高円寺南4丁目 地上4階地下1階建 2018年築
敷
16.8万円礼
無料同じ建物で掲載中の物件 (1件)
不動産会社からのコメント
セキュリティ面は、オートロック・TVインターホンなど充実しているので安心して生活できます。
保証会社利用必須 賃料管理費の50~60%
その他
- 駐車/駐輪
- 無 / なし駐車可能な車種や台数を知りたい
- 入居時期
- 損保
- 住宅保険: 要
- 保証人代行
- 加入要 費用: 賃料+管理費の50~60%
- その他費用
- 情報
情報登録日:2025/12/9
情報更新日:2025/12/11
次回更新予定日:2025/12/19
- 備考
- 更新料: 新賃料の1.0ヶ月分 契約期間: 2年 自社管理番号: HC2-458168-102-0111
取扱い会社
- 取扱い会社
- ハウスコム西東京株式会社 三鷹店条件が近い物件も紹介してほしい
- 免許番号
- 東京都知事(1)第108225号
- 取引態様
- 仲介
- 所在地
- 東京都三鷹市 下連雀3丁目45−2 麻沼ビル 1階
- 電話番号
- 0422-76-8456
- 定休日
- フルオープン
- 所属団体名
- 公益社団法人首都圏不動産公正取引協議会、公益財団法人日本賃貸住宅管理協会
おすすめ物件 (20件)
賃貸マンション
EMBELLIR中野富士見町

東京メトロ丸ノ内線 / 東高円寺駅 徒歩13分
築7年 / 地上4階地下1階建
東京都杉並区和田1丁目39-2

16.9万円 / 管理費10,000円
敷
16.9万円礼
20.28万円1LDK / 41.47㎡ / 4階
賃貸マンション
アーバンパーク方南町

東京メトロ丸ノ内線 / 東高円寺駅 徒歩15分
築3年 / 4階建
東京都杉並区堀ノ内2丁目28-2

17.5万円 / 管理費25,000円
敷
無料礼
無料2DK / 40.44㎡ / 4階
賃貸マンション
ウェルスクエア高円寺

総武線 / 高円寺駅 徒歩8分
新築 / 3階建
東京都杉並区高円寺南3丁目39-12

17.2万円 / 管理費10,000円
敷
17.2万円礼
無料2LDK / 40.5㎡ / 1階
賃貸マンション
Maison est高円寺

東京メトロ丸ノ内線 / 東高円寺駅 徒歩5分
築2年 / 地上5階地下1階建
東京都杉並区高円寺南1丁目28-7

15.6万円 / 管理費10,000円
敷
15.6万円礼
15.6万円ワンルーム / 37.66㎡ / 1階
賃貸マンション
ビイルーム中野

東京メトロ丸ノ内線 / 東高円寺駅 徒歩11分
築10年 / 5階建
東京都中野区中野3丁目23-30

18万円 / 管理費10,000円
敷
18万円礼
18万円1LDK / 44.68㎡ / 1階
賃貸マンション
ウェルスクエアイズム高円寺

中央線 / 高円寺駅 徒歩7分
築5年 / 5階建
東京都杉並区高円寺南2丁目25-6

17.9万円 / 管理費10,000円
敷
無料礼
17.9万円1LDK / 40.15㎡ / 2階
賃貸マンション
SOLASIA residence 高円寺Ⅱ

中央線 / 高円寺駅 徒歩10分
築4年 / 5階建
東京都中野区大和町1丁目57-7

16.6万円 / 管理費10,000円
敷
16.6万円礼
16.6万円1LDK / 40.26㎡ / 2階
賃貸マンション
アトリオフラッツ高円寺ノース

中央線 / 高円寺駅 徒歩15分
築1年 / 5階建
東京都中野区大和町1丁目13-3

16.3万円 / 管理費15,000円
敷
16.3万円礼
無料1LDK / 36.6㎡ / 3階
賃貸マンション
中野区大和町1丁目 4階建 2025年築

総武線 / 高円寺駅 徒歩15分
新築 / 4階建
東京都中野区大和町1丁目

16万円 / 管理費8,000円
敷
16万円礼
無料2LDK / 36.87㎡ / 4階
賃貸マンション
アレーロ中野
東京メトロ丸ノ内線 / 東高円寺駅 徒歩10分
築8年 / 4階建
東京都中野区中野3丁目43-7
16.2万円 / 管理費10,000円
敷
16.2万円礼
無料1LDK / 40.39㎡ / 1階
賃貸マンション
EXAM高円寺南
東京メトロ丸ノ内線 / 東高円寺駅 徒歩8分
築10年 / 地上4階地下1階建
東京都杉並区高円寺南5
15.2万円 / 管理費8,000円
敷
15.2万円礼
15.2万円1LDK / 34.13㎡ / 4階
賃貸マンション
コーナーハウス

東京メトロ丸ノ内線 / 東高円寺駅 徒歩7分
築17年 / 3階建
東京都杉並区和田3丁目31-4

16.7万円 / 管理費8,000円
敷
16.7万円礼
無料1LDK / 49.24㎡ / 3階
賃貸マンション
中野区野方5丁目 5階建 2008年築

中央線 / 高円寺駅 徒歩21分
築17年 / 5階建
東京都中野区野方5丁目21-1

家賃カード決済可
16.2万円 / 管理費8,000円
敷
16.2万円礼
32.4万円1LDK / 49.63㎡ / 5階
賃貸マンション
杉並区和田1丁目 4階建 2023年築

東京メトロ丸ノ内線 / 東高円寺駅 徒歩8分
築2年 / 4階建
東京都杉並区和田1丁目

17.6万円 / 管理費12,000円
敷
無料礼
無料1LDK / 37.27㎡ / 4階
賃貸マンション
杉並区和田1丁目 地上4階地下1階建 2022年築

東京メトロ丸ノ内線 / 東高円寺駅 徒歩17分
築3年 / 地上4階地下1階建
東京都杉並区和田1丁目

15万円 / 管理費15,000円
敷
無料礼
無料1LDK / 40.57㎡ / 1階
賃貸マンション
ラグゼナ東高円寺

東京メトロ丸ノ内線 / 東高円寺駅 徒歩4分
築17年 / 7階建
東京都杉並区高円寺南1丁目4-41

15万円 / 管理費10,000円
敷
15万円礼
15万円1LDK / 43.13㎡ / 2階
賃貸マンション
ドゥーエ東高円寺

東京メトロ丸ノ内線 / 東高円寺駅 徒歩4分
築18年 / 8階建
東京都杉並区高円寺南1丁目13-2

16.5万円 / 管理費15,000円
敷
16.5万円礼
16.5万円1LDK / 36.71㎡ / 2階
賃貸マンション
ウィーヴプレイス東高円寺
東京メトロ丸ノ内線 / 東高円寺駅 徒歩9分
築2年 / 4階建
東京都杉並区和田1丁目44-22
17.6万円 / 管理費12,000円
敷
無料礼
無料1LDK / 37.27㎡ / 4階
賃貸マンション
Terra蚕糸の森

東京メトロ丸ノ内線 / 東高円寺駅 徒歩11分
新築 / 11階建
東京都杉並区和田3丁目17-1

17.4万円 / 管理費10,000円
敷
17.4万円礼
17.4万円1LDK / 35.17㎡ / 8階
賃貸マンション
Terra蚕糸の森

東京メトロ丸ノ内線 / 東高円寺駅 徒歩1分
新築 / 11階建
東京都杉並区和田3丁目17-1

15.4万円 / 管理費10,000円
敷
15.4万円礼
30.8万円1LDK / 31.85㎡ / 7階
賃貸マンション
EMBELLIR中野富士見町

東京メトロ丸ノ内線 / 東高円寺駅 徒歩13分
築7年 / 地上4階地下1階建
東京都杉並区和田1丁目39-2

16.9万円 / 管理費10,000円
敷
16.9万円礼
20.28万円1LDK / 41.47㎡ / 4階
賃貸マンション
アーバンパーク方南町

東京メトロ丸ノ内線 / 東高円寺駅 徒歩15分
築3年 / 4階建
東京都杉並区堀ノ内2丁目28-2

17.5万円 / 管理費25,000円
敷
無料礼
無料2DK / 40.44㎡ / 4階
賃貸マンション
ウェルスクエア高円寺

総武線 / 高円寺駅 徒歩8分
新築 / 3階建
東京都杉並区高円寺南3丁目39-12

17.2万円 / 管理費10,000円
敷
17.2万円礼
無料2LDK / 40.5㎡ / 1階
賃貸マンション
Maison est高円寺

東京メトロ丸ノ内線 / 東高円寺駅 徒歩5分
築2年 / 地上5階地下1階建
東京都杉並区高円寺南1丁目28-7

15.6万円 / 管理費10,000円
敷
15.6万円礼
15.6万円ワンルーム / 37.66㎡ / 1階
賃貸マンション
ビイルーム中野

東京メトロ丸ノ内線 / 東高円寺駅 徒歩11分
築10年 / 5階建
東京都中野区中野3丁目23-30

18万円 / 管理費10,000円
敷
18万円礼
18万円1LDK / 44.68㎡ / 1階
賃貸マンション
ウェルスクエアイズム高円寺

中央線 / 高円寺駅 徒歩7分
築5年 / 5階建
東京都杉並区高円寺南2丁目25-6

17.9万円 / 管理費10,000円
敷
無料礼
17.9万円1LDK / 40.15㎡ / 2階
賃貸マンション
SOLASIA residence 高円寺Ⅱ

中央線 / 高円寺駅 徒歩10分
築4年 / 5階建
東京都中野区大和町1丁目57-7

16.6万円 / 管理費10,000円
敷
16.6万円礼
16.6万円1LDK / 40.26㎡ / 2階
賃貸マンション
アトリオフラッツ高円寺ノース

中央線 / 高円寺駅 徒歩15分
築1年 / 5階建
東京都中野区大和町1丁目13-3

16.3万円 / 管理費15,000円
敷
16.3万円礼
無料1LDK / 36.6㎡ / 3階
賃貸マンション
中野区大和町1丁目 4階建 2025年築

総武線 / 高円寺駅 徒歩15分
新築 / 4階建
東京都中野区大和町1丁目

16万円 / 管理費8,000円
敷
16万円礼
無料2LDK / 36.87㎡ / 4階
賃貸マンション
アレーロ中野
東京メトロ丸ノ内線 / 東高円寺駅 徒歩10分
築8年 / 4階建
東京都中野区中野3丁目43-7
16.2万円 / 管理費10,000円
敷
16.2万円礼
無料1LDK / 40.39㎡ / 1階
賃貸マンション
EXAM高円寺南
東京メトロ丸ノ内線 / 東高円寺駅 徒歩8分
築10年 / 地上4階地下1階建
東京都杉並区高円寺南5
15.2万円 / 管理費8,000円
敷
15.2万円礼
15.2万円1LDK / 34.13㎡ / 4階
賃貸マンション
コーナーハウス

東京メトロ丸ノ内線 / 東高円寺駅 徒歩7分
築17年 / 3階建
東京都杉並区和田3丁目31-4

16.7万円 / 管理費8,000円
敷
16.7万円礼
無料1LDK / 49.24㎡ / 3階
賃貸マンション
中野区野方5丁目 5階建 2008年築

中央線 / 高円寺駅 徒歩21分
築17年 / 5階建
東京都中野区野方5丁目21-1

家賃カード決済可
16.2万円 / 管理費8,000円
敷
16.2万円礼
32.4万円1LDK / 49.63㎡ / 5階
賃貸マンション
杉並区和田1丁目 4階建 2023年築

東京メトロ丸ノ内線 / 東高円寺駅 徒歩8分
築2年 / 4階建
東京都杉並区和田1丁目

17.6万円 / 管理費12,000円
敷
無料礼
無料1LDK / 37.27㎡ / 4階
賃貸マンション
杉並区和田1丁目 地上4階地下1階建 2022年築

東京メトロ丸ノ内線 / 東高円寺駅 徒歩17分
築3年 / 地上4階地下1階建
東京都杉並区和田1丁目

15万円 / 管理費15,000円
敷
無料礼
無料1LDK / 40.57㎡ / 1階
賃貸マンション
ラグゼナ東高円寺

東京メトロ丸ノ内線 / 東高円寺駅 徒歩4分
築17年 / 7階建
東京都杉並区高円寺南1丁目4-41

15万円 / 管理費10,000円
敷
15万円礼
15万円1LDK / 43.13㎡ / 2階
賃貸マンション
ドゥーエ東高円寺

東京メトロ丸ノ内線 / 東高円寺駅 徒歩4分
築18年 / 8階建
東京都杉並区高円寺南1丁目13-2

16.5万円 / 管理費15,000円
敷
16.5万円礼
16.5万円1LDK / 36.71㎡ / 2階
賃貸マンション
ウィーヴプレイス東高円寺
東京メトロ丸ノ内線 / 東高円寺駅 徒歩9分
築2年 / 4階建
東京都杉並区和田1丁目44-22
17.6万円 / 管理費12,000円
敷
無料礼
無料1LDK / 37.27㎡ / 4階
賃貸マンション
Terra蚕糸の森

東京メトロ丸ノ内線 / 東高円寺駅 徒歩11分
新築 / 11階建
東京都杉並区和田3丁目17-1

17.4万円 / 管理費10,000円
敷
17.4万円礼
17.4万円1LDK / 35.17㎡ / 8階
賃貸マンション
Terra蚕糸の森

東京メトロ丸ノ内線 / 東高円寺駅 徒歩1分
新築 / 11階建
東京都杉並区和田3丁目17-1

15.4万円 / 管理費10,000円
敷
15.4万円礼
30.8万円1LDK / 31.85㎡ / 7階
同じ最寄り駅 × 同じ特徴 で探す
同じ市区町村 × 同じ特徴 で探す





















