ドゥーエ南砂町1SLDK/4階(東京都江東区 / 南砂町駅)の賃貸
1/21
1/21
19.7万円
初期費用を知りたい管理費15,000円
- 敷金
- 無料
- 保証金
- なし
- 礼金
- 無料
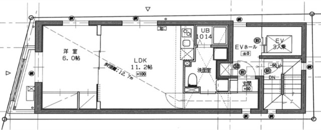
- 広さ
- 48.95㎡
- 階数
- 4階 / 9階建
- 間取り
- 1SLDK
- 建物
- マンション (鉄筋コンクリート)
- 築年数
- 築1年
- 向き
- 北
- 交通
- 東京メトロ東西線 / 南砂町駅徒歩14分
- 東京メトロ東西線 / 東陽町駅徒歩25分
- 住所
- 東京都江東区南砂5丁目
コンビニエンスストア 1180m
スーパーマーケット 456m
ドラッグストア 1498m
商店街 719m
ミーツ砂町銀座店 521m
無料で10秒! カンタンお問い合わせ

ドゥーエ南砂町
敷
無料礼
無料特徴
バス・トイレ別
2階以上
エアコン付き
ペット相談可
駐車場あり
室内洗濯機置場
オートロック
洗面所独立
- 入居条件
- 二人入居可、ペット相談、保証人不要、即入居可、フリーレント、家賃カード決済可最新の空室状況が知りたい
- バス・トイレ
- 専用バス、専用トイレ、バストイレ別、給湯、温水洗浄便座、浴室乾燥機、洗面所独立
- キッチン
- ガスコンロ対応、3口以上コンロ、システムキッチン、カウンターキッチン
- セキュリティ
- オートロック、防犯カメラ
- 室内設備
- エアコン、室内洗濯置、CS、BS、フローリング、インターネット対応、ネット使用料不要、クロゼット、シューズボックス、照明付お部屋の詳しい情報を知りたい
- 部屋の特徴
- バルコニー、角住戸、二階以上写真を送ってほしい
- 共用部
- エレベーター、宅配ボックス
- その他の特徴
- 公営水道、都市ガス、下水
無料で10秒! カンタンお問い合わせ

ドゥーエ南砂町
敷
無料礼
無料不動産会社からのコメント
日々の暮らしに便利なまいばすけっと 北砂4丁目店(スーパー)まで6分で行けます。収納はクロゼット・シ
日々の暮らしに便利なまいばすけっと 北砂4丁目店(スーパー)まで456mです。室内設備は洗面所独立・浴室乾燥機など豊富に揃っており、過ごしやすいお部屋になっております。現在空家です。内見等お気軽にお問い合わせください。江東区や東西線南砂町付近で気になるお部屋を見つけたら、当社へお気軽にお問い合せください。素敵なお部屋探しを全力でお手伝いいたします。
その他
- 駐車/駐輪
- 無 / なし駐車可能な車種や台数を知りたい
- 入居時期
- 損保
- 住宅保険: 要
- 保証人代行
- 加入要 会社名: クレディセゾン 費用: 保証料:賃料等の20%(最低1.5万円)、2年目~:1万円/年 口座振替手数料借主負担
- その他費用
初期費用を知りたい室内清掃費用:76,560円
エアコン清掃費:38,500円
鍵交換費用:33,000円
- 情報
情報登録日:2025/12/14
情報更新日:2025/12/15
次回更新予定日:2025/12/23
- 備考
- 現況: 空家 フリーレント: 1ヶ月(フリーレント1ヶ月(12月成約に限る)) 契約期間: 2年 その他交通: 東京都新宿線 西大島駅 徒歩24分 自社管理番号: 3737257
取扱い会社
- 取扱い会社
- 株式会社リブマックスリーシング 銀座店条件が近い物件も紹介してほしい
- 免許番号
- 国土交通大臣 (3) 第8116号
- 取引態様
- 仲介
- 所在地
- 東京都中央区築地2丁目12-1 ホテルリブマックス東銀座 1F
- 電話番号
- 03-3545-4545
- 定休日
- 水曜日(年末年始、GW、夏季)
- 所属団体名
- 公益社団法人 全国宅地建物取引業保証協会
おすすめ物件 (12件)
賃貸マンション
ブランシエスタ木場
東京メトロ東西線 / 東陽町駅 徒歩14分
新築 / 11階建
東京都江東区木場6丁目15-6
20.5万円 / 管理費20,000円
敷
20.5万円礼
無料2LDK / 39.19㎡ / 7階
賃貸マンション
リビオメゾン南砂町
東京メトロ東西線 / 南砂町駅 徒歩11分
築4年 / 14階建
東京都江東区南砂2丁目33-3
21.5万円 / 管理費15,000円
敷
21.5万円礼
無料2LDK / 49.92㎡ / 13階
賃貸マンション
パークアクシス東陽町・親水公園
東京メトロ東西線 / 南砂町駅 徒歩11分
築11年 / 14階建
東京都江東区南砂2丁目34-4
20.4万円 / 管理費12,000円
敷
20.4万円礼
20.4万円2LDK / 49.38㎡ / 3階
賃貸マンション
ドゥーエ南砂町

東京メトロ東西線 / 南砂町駅 徒歩13分
築1年 / 9階建
東京都江東区南砂5丁目13-7

家賃カード決済可
19.7万円 / 管理費15,000円
敷
無料礼
無料2LDK / 48.95㎡ / 4階
賃貸マンション
trias313

東京メトロ東西線 / 東陽町駅 徒歩12分
新築 / 5階建
東京都江東区東陽3丁目13-8

19.5万円 / 管理費18,000円
敷
無料礼
無料2LDK / 40.06㎡ / 2階
賃貸マンション
江東区南砂5丁目 9階建 2024年築

東京メトロ東西線 / 南砂町駅 徒歩13分
築1年 / 9階建
東京都江東区南砂5丁目

家賃カード決済可
20.5万円 / 管理費15,000円
敷
20.5万円礼
無料1SLDK / 50.42㎡ / 5階
賃貸マンション
江東区南砂5丁目 9階建 2024年築

東京メトロ東西線 / 南砂町駅 徒歩13分
築1年 / 9階建
東京都江東区南砂5丁目

家賃カード決済可
20.5万円 / 管理費15,000円
敷
20.5万円礼
無料1SLDK / 50.42㎡ / 5階
賃貸マンション
江東区木場6丁目 11階建 2025年築

東京メトロ東西線 / 東陽町駅 徒歩14分
新築 / 11階建
東京都江東区木場6丁目15-6

20.8万円 / 管理費15,000円
敷
20.8万円礼
無料1LDK / 39.93㎡ / 5階
賃貸マンション
江東区木場6丁目 11階建 2025年築

東京メトロ東西線 / 東陽町駅 徒歩14分
新築 / 11階建
東京都江東区木場6丁目15-6

20.8万円 / 管理費15,000円
敷
20.8万円礼
無料1LDK / 39.93㎡ / 5階
賃貸マンション
the10 TOYO

東京メトロ東西線 / 東陽町駅 徒歩4分
築1年 / 5階建
東京都江東区東陽3丁目26-24

20.9万円 / 管理費20,000円
敷
無料礼
無料2LDK / 50㎡ / 4階
賃貸マンション
グランカーサ西葛西
東京メトロ東西線 / 南砂町駅 徒歩33分
新築 / 7階建
東京都江戸川区西葛西2丁目4-25
18万円 / 管理費15,000円
敷
無料礼
無料2LDK / 43.16㎡ / 5階
賃貸マンション
東陽3丁目計画 新築マンション

東京メトロ東西線 / 東陽町駅 徒歩8分
新築 / 5階建
東京都江東区東陽3丁目18-2

21.6万円 / 管理費10,000円
敷
21.6万円礼
21.6万円1LDK / 42.98㎡ / 5階
賃貸マンション
ブランシエスタ木場
東京メトロ東西線 / 東陽町駅 徒歩14分
新築 / 11階建
東京都江東区木場6丁目15-6
20.5万円 / 管理費20,000円
敷
20.5万円礼
無料2LDK / 39.19㎡ / 7階
賃貸マンション
リビオメゾン南砂町
東京メトロ東西線 / 南砂町駅 徒歩11分
築4年 / 14階建
東京都江東区南砂2丁目33-3
21.5万円 / 管理費15,000円
敷
21.5万円礼
無料2LDK / 49.92㎡ / 13階
賃貸マンション
パークアクシス東陽町・親水公園
東京メトロ東西線 / 南砂町駅 徒歩11分
築11年 / 14階建
東京都江東区南砂2丁目34-4
20.4万円 / 管理費12,000円
敷
20.4万円礼
20.4万円2LDK / 49.38㎡ / 3階
賃貸マンション
ドゥーエ南砂町

東京メトロ東西線 / 南砂町駅 徒歩13分
築1年 / 9階建
東京都江東区南砂5丁目13-7

家賃カード決済可
19.7万円 / 管理費15,000円
敷
無料礼
無料2LDK / 48.95㎡ / 4階
賃貸マンション
trias313

東京メトロ東西線 / 東陽町駅 徒歩12分
新築 / 5階建
東京都江東区東陽3丁目13-8

19.5万円 / 管理費18,000円
敷
無料礼
無料2LDK / 40.06㎡ / 2階
賃貸マンション
江東区南砂5丁目 9階建 2024年築

東京メトロ東西線 / 南砂町駅 徒歩13分
築1年 / 9階建
東京都江東区南砂5丁目

家賃カード決済可
20.5万円 / 管理費15,000円
敷
20.5万円礼
無料1SLDK / 50.42㎡ / 5階
賃貸マンション
江東区南砂5丁目 9階建 2024年築

東京メトロ東西線 / 南砂町駅 徒歩13分
築1年 / 9階建
東京都江東区南砂5丁目

家賃カード決済可
20.5万円 / 管理費15,000円
敷
20.5万円礼
無料1SLDK / 50.42㎡ / 5階
賃貸マンション
江東区木場6丁目 11階建 2025年築

東京メトロ東西線 / 東陽町駅 徒歩14分
新築 / 11階建
東京都江東区木場6丁目15-6

20.8万円 / 管理費15,000円
敷
20.8万円礼
無料1LDK / 39.93㎡ / 5階
賃貸マンション
江東区木場6丁目 11階建 2025年築

東京メトロ東西線 / 東陽町駅 徒歩14分
新築 / 11階建
東京都江東区木場6丁目15-6

20.8万円 / 管理費15,000円
敷
20.8万円礼
無料1LDK / 39.93㎡ / 5階
賃貸マンション
the10 TOYO

東京メトロ東西線 / 東陽町駅 徒歩4分
築1年 / 5階建
東京都江東区東陽3丁目26-24

20.9万円 / 管理費20,000円
敷
無料礼
無料2LDK / 50㎡ / 4階
賃貸マンション
グランカーサ西葛西
東京メトロ東西線 / 南砂町駅 徒歩33分
新築 / 7階建
東京都江戸川区西葛西2丁目4-25
18万円 / 管理費15,000円
敷
無料礼
無料2LDK / 43.16㎡ / 5階
賃貸マンション
東陽3丁目計画 新築マンション

東京メトロ東西線 / 東陽町駅 徒歩8分
新築 / 5階建
東京都江東区東陽3丁目18-2

21.6万円 / 管理費10,000円
敷
21.6万円礼
21.6万円1LDK / 42.98㎡ / 5階
























