ソレイユ・ドゥ1K/1階(東京都板橋区 / 千川駅)の賃貸
1/14
1/14
7.6万円
初期費用を知りたい管理費なし
家賃割引サービス適用で最大2年間4.8万円割引
- 敷金
- 7.6万円
- 保証金
- なし
- 礼金
- 7.6万円
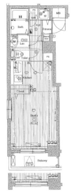
- 広さ
- 23.04㎡
- 階数
- 1階 / 2階建
- 間取り
- 1K
- 建物
- アパート (木造)
- 築年数
- 築20年
- 向き
- 南
- 交通
- 東京メトロ副都心線 / 千川駅徒歩7分
- 東京メトロ副都心線 / 小竹向原駅徒歩10分
- 住所
- 東京都板橋区向原1丁目
コンビニエンスストア 520m
スーパーマーケット 440m
ドラッグストア 440m
無料で10秒! カンタンお問い合わせ
ソレイユ・ドゥ
敷
7.6万円礼
7.6万円特徴
バス・トイレ別
2階以上
エアコン付き
ペット相談可
駐車場あり
室内洗濯機置場
オートロック
洗面所独立
- 入居条件
- 保証人不要、即入居可最新の空室状況が知りたい
- バス・トイレ
- 給湯、専用バス、浴室乾燥機、シャワー、専用トイレ、バストイレ別、洗面所独立
- 室内設備
- CATV、インターネット対応、エアコン、クロゼット、全居室収納、シューズボックス、室内洗濯置、出窓、フローリングお部屋の詳しい情報を知りたい
- 部屋の特徴
- バルコニー、角住戸写真を送ってほしい
- 共用部
- 駐輪場
- その他の特徴
- 外壁タイル張り
無料で10秒! カンタンお問い合わせ
ソレイユ・ドゥ
敷
7.6万円礼
7.6万円その他
- 駐車/駐輪
- 要確認 / あり駐車可能な車種や台数を知りたい
- 入居時期
- 損保
- 住宅保険: 要
- 保証人代行
- -
- その他費用
初期費用を知りたい鍵交換費用:16,500円
室内清掃費用:40,000円
- 情報
情報登録日:2025/11/21
情報更新日:2025/11/23
次回更新予定日:2025/12/20
- 備考
- 現況: 空家 更新料: 新賃料の1.0ヶ月分 契約期間: 2年 バルコニー面積: 2.40㎡
取扱い会社
- 取扱い会社
- 株式会社タウンハウジング 成増店条件が近い物件も紹介してほしい
- 免許番号
- 国土交通大臣(1)9926号
- 取引態様
- 仲介
- 所在地
- 東京都板橋区成増2丁目 17-36 KOWA成増ビル 1F
- 電話番号
- 03-5997-3555
- 所属団体名
- 東京都宅地建物取引業協会
おすすめ物件 (20件)
賃貸アパート
ル・コクリコ

東京メトロ有楽町線 / 小竹向原駅 徒歩4分
築7年 / 3階建
東京都板橋区小茂根1丁目26-23

8.5万円 / 管理費4,000円
敷
8.5万円礼
8.5万円1K / 20.5㎡ / 1階
賃貸マンション
ルーブル板橋東新町弐番館

東京メトロ有楽町線 / 小竹向原駅 徒歩26分
築5年 / 11階建
東京都板橋区東新町1丁目

9.3万円 / 管理費7,000円
敷
無料礼
9.3万円1K / 26.24㎡ / 8階
賃貸マンション
ポラール ノースウイング
東京メトロ有楽町線 / 千川駅 徒歩19分
築13年 / 4階建
東京都板橋区大山西町
8.8万円 / 管理費5,000円
敷
8.8万円礼
8.8万円ワンルーム / 30.26㎡ / 1階
賃貸マンション
板橋区向原1丁目 4階建 2024年築

東京メトロ有楽町線 / 小竹向原駅 徒歩4分
築1年 / 4階建
東京都板橋区向原1丁目

8.1万円 / 管理費15,000円
敷
無料礼
8.1万円1K / 20.63㎡ / 4階
賃貸マンション
スカイコートパレス千川

東京メトロ有楽町線 / 千川駅 徒歩9分
築9年 / 4階建
東京都豊島区高松3丁目8-13

9.12万円 / 管理費8,300円
敷
9.12万円礼
9.12万円1K / 25.5㎡ / 1階
賃貸マンション
ロジェ・ヌワール

東京メトロ副都心線 / 小竹向原駅 徒歩10分
築28年 / 5階建
東京都練馬区小竹町1丁目63-6

9.3万円 / 管理費6,000円
敷
9.3万円礼
9.3万円1DK / 28.94㎡ / 3階
賃貸マンション
ステージグランデ新桜台

東京メトロ副都心線 / 小竹向原駅 徒歩10分
築15年 / 8階建
東京都練馬区羽沢2丁目8-7

9.1万円 / 管理費5,000円
敷
無料礼
9.1万円1K / 22.86㎡ / 1階
賃貸アパート
マ・メゾン

東京メトロ有楽町線 / 千川駅 徒歩10分
築21年 / 2階建
東京都豊島区千川2丁目25-2

8.3万円 / 管理費3,500円
敷
8.3万円礼
8.3万円1K / 28.91㎡ / 2階
賃貸マンション
ハイネス要町

東京メトロ有楽町線 / 千川駅 徒歩15分
築36年 / 12階建
東京都豊島区高松1丁目1-13

7.7万円 / 管理費12,000円
敷
7.7万円礼
7.7万円ワンルーム / 18.82㎡ / 8階
賃貸マンション
ボヌール東長崎

東京メトロ副都心線 / 千川駅 徒歩14分
築14年 / 3階建
東京都豊島区長崎5丁目1-18

8.8万円 / 管理費3,000円
敷
8.8万円礼
8.8万円1K / 28.99㎡ / 2階
賃貸マンション
ガラ・ステージ大山

東京メトロ有楽町線 / 千川駅 徒歩25分
築20年 / 12階建
東京都板橋区大山金井町54-9

9.5万円 / 管理費15,000円
敷
無料礼
2万円ワンルーム / 30.08㎡ / 7階
賃貸マンション
スプリングライフ・千川

東京メトロ有楽町線 / 千川駅 徒歩12分
築17年 / 3階建
東京都板橋区大谷口1丁目7-12

7.7万円 / 管理費2,000円
敷
7.7万円礼
3.85万円1K / 23.8㎡ / 1階
賃貸マンション
クレイノポラリスⅡ

東京メトロ有楽町線 / 小竹向原駅 徒歩16分
築8年 / 3階建
東京都板橋区大谷口北町60-10

8.8万円 / 管理費5,500円
敷
無料礼
8.8万円1K / 20.29㎡ / 1階
賃貸マンション
プレール・ドゥーク小竹向原
東京メトロ副都心線 / 小竹向原駅 徒歩3分
築4年 / 5階建
東京都練馬区小竹町1丁目
9.3万円 / 管理費10,000円
敷
無料礼
9.3万円1K / 25.96㎡ / 4階
賃貸マンション
パレステュディオときわ台
)
東京メトロ有楽町線 / 小竹向原駅 徒歩25分
築18年 / 6階建
東京都板橋区南常盤台2丁目
)
8.1万円 / 管理費10,000円
敷
8.1万円礼
8.1万円1K / 28.21㎡ / 4階
賃貸アパート
ル・コクリコ

東京メトロ有楽町線 / 小竹向原駅 徒歩4分
築7年 / 3階建
東京都板橋区小茂根1丁目26-23

8.5万円 / 管理費4,000円
敷
8.5万円礼
8.5万円1K / 20.5㎡ / 1階
賃貸マンション
ルーブル板橋東新町弐番館

東京メトロ有楽町線 / 小竹向原駅 徒歩26分
築5年 / 11階建
東京都板橋区東新町1丁目

9.3万円 / 管理費7,000円
敷
無料礼
9.3万円1K / 26.24㎡ / 8階
賃貸マンション
ポラール ノースウイング
東京メトロ有楽町線 / 千川駅 徒歩19分
築13年 / 4階建
東京都板橋区大山西町
8.8万円 / 管理費5,000円
敷
8.8万円礼
8.8万円ワンルーム / 30.26㎡ / 1階
賃貸マンション
板橋区向原1丁目 4階建 2024年築

東京メトロ有楽町線 / 小竹向原駅 徒歩4分
築1年 / 4階建
東京都板橋区向原1丁目

8.1万円 / 管理費15,000円
敷
無料礼
8.1万円1K / 20.63㎡ / 4階
賃貸マンション
スカイコートパレス千川

東京メトロ有楽町線 / 千川駅 徒歩9分
築9年 / 4階建
東京都豊島区高松3丁目8-13

9.12万円 / 管理費8,300円
敷
9.12万円礼
9.12万円1K / 25.5㎡ / 1階
賃貸マンション
ロジェ・ヌワール

東京メトロ副都心線 / 小竹向原駅 徒歩10分
築28年 / 5階建
東京都練馬区小竹町1丁目63-6

9.3万円 / 管理費6,000円
敷
9.3万円礼
9.3万円1DK / 28.94㎡ / 3階
賃貸マンション
ステージグランデ新桜台

東京メトロ副都心線 / 小竹向原駅 徒歩10分
築15年 / 8階建
東京都練馬区羽沢2丁目8-7

9.1万円 / 管理費5,000円
敷
無料礼
9.1万円1K / 22.86㎡ / 1階
賃貸アパート
マ・メゾン

東京メトロ有楽町線 / 千川駅 徒歩10分
築21年 / 2階建
東京都豊島区千川2丁目25-2

8.3万円 / 管理費3,500円
敷
8.3万円礼
8.3万円1K / 28.91㎡ / 2階
賃貸マンション
ハイネス要町

東京メトロ有楽町線 / 千川駅 徒歩15分
築36年 / 12階建
東京都豊島区高松1丁目1-13

7.7万円 / 管理費12,000円
敷
7.7万円礼
7.7万円ワンルーム / 18.82㎡ / 8階
賃貸マンション
ボヌール東長崎

東京メトロ副都心線 / 千川駅 徒歩14分
築14年 / 3階建
東京都豊島区長崎5丁目1-18

8.8万円 / 管理費3,000円
敷
8.8万円礼
8.8万円1K / 28.99㎡ / 2階
賃貸マンション
ガラ・ステージ大山

東京メトロ有楽町線 / 千川駅 徒歩25分
築20年 / 12階建
東京都板橋区大山金井町54-9

9.5万円 / 管理費15,000円
敷
無料礼
2万円ワンルーム / 30.08㎡ / 7階
賃貸マンション
スプリングライフ・千川

東京メトロ有楽町線 / 千川駅 徒歩12分
築17年 / 3階建
東京都板橋区大谷口1丁目7-12

7.7万円 / 管理費2,000円
敷
7.7万円礼
3.85万円1K / 23.8㎡ / 1階
賃貸マンション
クレイノポラリスⅡ

東京メトロ有楽町線 / 小竹向原駅 徒歩16分
築8年 / 3階建
東京都板橋区大谷口北町60-10

8.8万円 / 管理費5,500円
敷
無料礼
8.8万円1K / 20.29㎡ / 1階
賃貸マンション
プレール・ドゥーク小竹向原
東京メトロ副都心線 / 小竹向原駅 徒歩3分
築4年 / 5階建
東京都練馬区小竹町1丁目
9.3万円 / 管理費10,000円
敷
無料礼
9.3万円1K / 25.96㎡ / 4階
賃貸マンション
パレステュディオときわ台
)
東京メトロ有楽町線 / 小竹向原駅 徒歩25分
築18年 / 6階建
東京都板橋区南常盤台2丁目
)
8.1万円 / 管理費10,000円
敷
8.1万円礼
8.1万円1K / 28.21㎡ / 4階
同じ最寄り駅 × 同じ特徴 で探す
同じ市区町村 × 同じ特徴 で探す








