(仮称)ジーメゾン天王台1LDK/2階(千葉県我孫子市 / 東我孫子駅)の賃貸
1/13
1/13
おすすめ物件 (1件)
同じ建物で掲載中の物件 (0件)
ファッションセンターしまむら東我孫子店 1200m
特徴
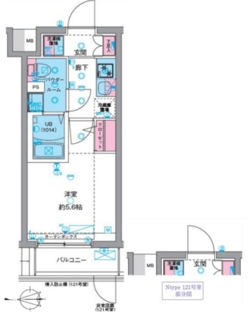
バス・トイレ別
2階以上
エアコン付き
ペット相談可
駐車場あり
室内洗濯機置場
オートロック
洗面所独立
- 入居条件
- ペット相談、初期費用カード決済可
- バス・トイレ
- 給湯、専用バス、専用トイレ、温水洗浄便座、バストイレ別、洗面所独立
- キッチン
- 2口コンロ、システムキッチン
- 室内設備
- その他インターネット、エアコン、照明付、室内洗濯置、ネット使用料不要
- 部屋の特徴
- 二階以上
- その他の特徴
- 公営水道
不動産会社からのコメント
新築 ペット相談 ネット無料 エアコン 温水洗浄便座
★オンライン内見・現地お待ち合わせ承ります★お問い合わせはタウンハウジングまでお気軽にご連絡下さい
取扱い会社
- 取扱い会社
- 株式会社タウンハウジング 柏店
- 免許番号
- 国土交通大臣(1)第9927号
- 取引態様
- 仲介
- 所在地
- 千葉県柏市末広町 4-2 1階
- 電話番号
- 04-7143-3800
- 営業時間
- 10:00~19:00
- 定休日
- 毎週水曜 (1~3月 無休)
- 所属団体名
- 東京都宅地建物取引業協会


