品川区上大崎3丁目 地上40階地下2階建 2017年築2LDK/11階/1112(東京都品川区 / 目黒駅)の賃貸
1/21
1/21
60.8万円
初期費用を知りたい管理費12,000円
- 敷金
- 60.8万円
- 保証金
- なし
- 礼金
- 60.8万円
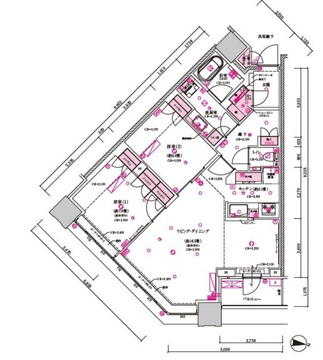
- 広さ
- 73.76㎡
- 階数
- 11階 / 40階建
- 間取り
- 2LDK
- 建物
- マンション (鉄筋コンクリート)
- 築年数
- 築8年
- 向き
- 南東
- 交通
- 山手線 / 目黒駅徒歩2分
- 東急目黒線 / 不動前駅徒歩14分
- 住所
- 東京都品川区上大崎3丁目1-2
コンビニエンスストア 62m
スーパーマーケット 183m
無料で10秒! カンタンお問い合わせ

品川区上大崎3丁目 地上40階地下2階建 2017年築
敷
60.8万円礼
60.8万円特徴
バス・トイレ別
2階以上
エアコン付き
ペット相談可
駐車場あり
室内洗濯機置場
オートロック
洗面所独立
- 入居条件
- 二人入居可、ペット相談、保証人不要、初期費用カード決済可、即入居可最新の空室状況が知りたい
- バス・トイレ
- 追焚機能浴室、温水洗浄便座、浴室乾燥機、洗面所独立、オートバス、専用バス、バストイレ別
- キッチン
- システムキッチン、カウンターキッチン、3口以上コンロ
- セキュリティ
- 防犯カメラ、オートロック
- 室内設備
- CATV、CS、BS、全居室収納、クロゼット、シューズボックス、エアコン、室内洗濯置、フローリング、ネット使用料不要お部屋の詳しい情報を知りたい
- 部屋の特徴
- 角住戸、バルコニー、二階以上写真を送ってほしい
- 共用部
- 宅配ボックス、駐輪場、エレベーター
- その他の特徴
- 分譲賃貸、定期借家、公営水道、都市ガス、下水
無料で10秒! カンタンお問い合わせ

品川区上大崎3丁目 地上40階地下2階建 2017年築
敷
60.8万円礼
60.8万円同じ建物で掲載中の物件 (6件)
その他
- 駐車/駐輪
- 近隣 費用: 35,000円 距離: 50m 空き数: 1 備考: ※要空き確認、サイズ制限有 / あり駐車可能な車種や台数を知りたい
- 入居時期
- 損保
- 住宅保険: 要
- 保証人代行
- 加入要 会社名: オリコフォレントインシュア 費用: 初回契約時:40%、月額:1,000円
- その他費用
初期費用を知りたいエアコン清掃費:22,000円
- 情報
情報登録日:2025/12/9
情報更新日:2025/12/10
次回更新予定日:2025/12/17
- 備考
- 現況: 空家 更新料: 新賃料の1.0ヶ月分 契約期間: 2年 ※定期借家 管理人: 日勤 その他交通: 東京メトロ南北線白金台駅 徒歩15分 自社管理番号: 12236668
取扱い会社
- 取扱い会社
- 株式会社カムグラン 本店条件が近い物件も紹介してほしい
- 免許番号
- 東京都知事 (1) 第113019号
- 取引態様
- 一般媒介
- 所在地
- 東京都港区麻布十番2-19-4 Laniビル4F
- 電話番号
- 03-6809-3842
- 定休日
- 無
- 所属団体名
- 東京都宅地建物取引業協会
おすすめ物件 (1件)
賃貸マンション
目黒第一マンションズ

山手線 / 目黒駅 徒歩2分
築8年 / 40階建
東京都品川区上大崎3丁目1-2

60.8万円 / 管理費12,000円
敷
60.8万円礼
60.8万円2LDK / 73.76㎡ / 11階
賃貸マンション
目黒第一マンションズ

山手線 / 目黒駅 徒歩2分
築8年 / 40階建
東京都品川区上大崎3丁目1-2

60.8万円 / 管理費12,000円
敷
60.8万円礼
60.8万円2LDK / 73.76㎡ / 11階
同じ最寄り駅 × 同じ特徴 で探す
同じ市区町村 × 同じ特徴 で探す
























