品川区 15階建 2021年築(東京都品川区 / 立会川駅) の賃貸物件情報
募集中のお部屋が7件あります
1/18
1/18
- 建物
- マンション (鉄筋コンクリート)
- 築年数
- 築5年 (2021年)
- 駐車場
- 空有 費用: 27,500円 税: 税込み 距離: 0m
- 交通
- 京急本線 / 立会川駅徒歩5分
- 京急本線 / 大森海岸駅徒歩13分
- 京浜東北線 / 大森駅徒歩16分
- 住所
- 東京都品川区南大井4丁目10-5
掲載中の物件(7件)
ザパークハビオ南大井とは
東京都品川区南大井4丁目に建つ「ザパークハビオ南大井」のご紹介です。 総戸数109戸、地上15階建ての「ザパークハビオ南大井」は、1R~2LDKのお部屋を取り揃えた高級デザイナーズマンションとして2021年5月に建てられました。 最寄りの「立会川駅」から徒歩5分、「大森駅」と「大森海岸駅」からも徒歩圏内です。 物件周辺には食料品や飲食店があり、お買い物や外食に便利なエリアです。また、「大井中央病院」や「東京品川病院」からも程近く、医療機関が充実しています。 オートロック、TVモニター付きインターホン、24時間セキュリティシステム、内廊下設計、防犯センサーがセキュリティ対策として完備されています。また、敷地内ゴミ置き場は24時間利用可能です。室内設備にはケーブルテレビ、ダウンライト、マルチメディアコンセントが含まれ、インターネットを無料でお楽しみいただけます。駐車場は月額38,500円、駐輪場は月額300円、バイク置き場はお問い合わせください。尚、楽器使用及びペット相談可物件です。
- 品川区立鈴ケ森小学校 250m
- コンビニエンスストア 100m
- スーパーマーケット 210m
- 総合病院 860m
- 立会川駅(京急 本線) 410m
その他
- 駐車/駐輪
- 空有 費用: 27,500円 税: 税込み 距離: 0m
- 入居時期
- 2026年2月上旬
- 損保
- 住宅保険: 要
- 保証代行人
- 加入要 会社名: その他 費用: 初年度委託料:賃料等合計額の50%、2年目以降:1年毎1万円
- その他費用
- -
- 情報
情報登録日:2025/12/8
情報更新日:2025/12/7
次回更新予定日:2026/1/16
- 備考
- 現況: 居住中 更新料: 新賃料の1.0ヶ月分 契約期間: 2年
この建物からのPick Up
1K/3階
1/30
1/30
10.5 万円 / 管理費15,000円
家賃割引サービス適用で最大2年間4.8万円割引
- 敷金
- 10.5万円
- 保証金
- なし
- 礼金
- 無料
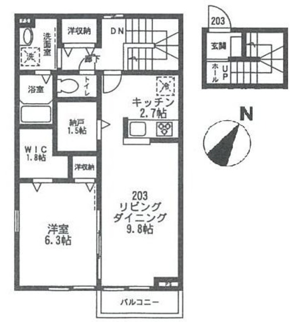
- 広さ
- 22.89㎡
- 階数
- 3階 / 15階建
- 間取り
- 1K (洋8.1帖 / K)
- 向き
- 南
無料で10秒! カンタンお問い合わせ
品川区 15階建 2021年築
敷
10.5万円礼
無料特徴
バス・トイレ別
2階以上
エアコン付き
ペット相談可
駐車場あり
室内洗濯機置場
オートロック
洗面所独立
- 入居条件
- 楽器相談、ペット相談、保証人不要、ペット可
- バス・トイレ
- 専用バス、給湯、バストイレ別、シャワー付洗面化粧台、専用トイレ、シャワー、温水洗浄便座、洗面所独立
- キッチン
- 2口コンロ、システムキッチン、ガスコンロ対応
- セキュリティ
- オートロック、防犯カメラ
- 室内設備
- BS、全居室収納、クロゼット、CATV、光ファイバー、ネット使用料不要、エアコン、インターネット対応、室内洗濯置、冷房、フローリング、CS、シューズボックス
- 部屋の特徴
- バルコニー、二階以上
- 共用部
- エレベーター、駐輪場、宅配ボックス、バイク置場、敷地内駐車場
- その他の特徴
- 下水、公営水道、駐車場あり、都市ガス
無料で10秒! カンタンお問い合わせ
品川区 15階建 2021年築
敷
10.5万円礼
無料おすすめ物件 (10件)
賃貸マンション
パークレジデンス大森
)
京浜東北線 / 大森駅 徒歩5分
築36年 / 12階建
東京都大田区大森北1丁目19-20
)
17.2万円 / 管理費16,000円
敷
34.4万円礼
17.2万円3DK / 62.64㎡ / 6階
賃貸マンション
クレフォート大森
京急本線 / 大森海岸駅 徒歩8分
築27年 / 11階建
東京都大田区大森北2丁目4-13
17万円 / 管理費9,000円
敷
17万円礼
17万円2LDK / 61.5㎡ / 10階
賃貸物件
GrandT’sOOMORI
)
京浜東北線 / 大森駅 バス7分 入新井第四小学校下車 徒歩5分
築10年 / 3階建
東京都大田区中央3丁目26-3
)
15.5万円 / 管理費4,000円
敷
15.5万円礼
無料3DK / 60.52㎡ / 2階
賃貸アパート
AXIS蓬莱坂アクシスホウライザカ

京浜東北線 / 大森駅 徒歩27分
築14年 / 2階建
東京都大田区中央6丁目1-6

13万円 / 管理費4,000円
敷
13万円礼
26万円1LDK / 56.6㎡ / 2階
賃貸マンション
品川区南大井6丁目 10階建 2002年築

京浜東北線 / 大森駅 徒歩5分
築24年 / 10階建
東京都品川区南大井6丁目

19万円 / 管理費10,000円
敷
19万円礼
19万円1LDK / 55.07㎡ / 10階
賃貸マンション
CHARMANTGRANDIR
)
京浜東北線 / 大森駅 徒歩20分
築9年 / 4階建
東京都大田区中央3丁目
)
18.5万円 / 管理費10,000円
敷
18.5万円礼
37万円2LDK / 54.98㎡ / 1階
賃貸マンション
パークレジデンス大森
)
京浜東北線 / 大森駅 徒歩5分
築36年 / 12階建
東京都大田区大森北1丁目19-20
)
17.2万円 / 管理費16,000円
敷
34.4万円礼
17.2万円3DK / 62.64㎡ / 6階
賃貸マンション
クレフォート大森
京急本線 / 大森海岸駅 徒歩8分
築27年 / 11階建
東京都大田区大森北2丁目4-13
17万円 / 管理費9,000円
敷
17万円礼
17万円2LDK / 61.5㎡ / 10階
賃貸物件
GrandT’sOOMORI
)
京浜東北線 / 大森駅 バス7分 入新井第四小学校下車 徒歩5分
築10年 / 3階建
東京都大田区中央3丁目26-3
)
15.5万円 / 管理費4,000円
敷
15.5万円礼
無料3DK / 60.52㎡ / 2階
賃貸アパート
AXIS蓬莱坂アクシスホウライザカ

京浜東北線 / 大森駅 徒歩27分
築14年 / 2階建
東京都大田区中央6丁目1-6

13万円 / 管理費4,000円
敷
13万円礼
26万円1LDK / 56.6㎡ / 2階
賃貸マンション
品川区南大井6丁目 10階建 2002年築

京浜東北線 / 大森駅 徒歩5分
築24年 / 10階建
東京都品川区南大井6丁目

19万円 / 管理費10,000円
敷
19万円礼
19万円1LDK / 55.07㎡ / 10階
賃貸マンション
CHARMANTGRANDIR
)
京浜東北線 / 大森駅 徒歩20分
築9年 / 4階建
東京都大田区中央3丁目
)
18.5万円 / 管理費10,000円
敷
18.5万円礼
37万円2LDK / 54.98㎡ / 1階
)
)
)
)





)
)


