江戸川区南篠崎町3丁目 3階建 1994年築1K/2階/201(東京都江戸川区 / 瑞江駅)の賃貸
1/25
1/25
6.8万円
初期費用を知りたい管理費2,000円
- 敷金
- 6.8万円
- 保証金
- なし
- 礼金
- 6.8万円
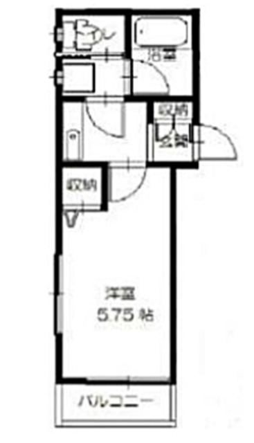
- 広さ
- 21㎡
- 階数
- 2階 / 3階建
- 間取り
- 1K
- 建物
- マンション (鉄筋コンクリート)
- 築年数
- 築31年
- 向き
- 東
- 交通
- 都営新宿線 / 瑞江駅徒歩7分
- 都営新宿線 / 篠崎駅徒歩18分
- 住所
- 東京都江戸川区南篠崎町3丁目12-14
江戸川区立瑞江第二中学校 578m
コンビニエンスストア 500m
スーパーマーケット 212m
無料で10秒! カンタンお問い合わせ

江戸川区南篠崎町3丁目 3階建 1994年築
敷
6.8万円礼
6.8万円特徴
バス・トイレ別
2階以上
エアコン付き
ペット相談可
駐車場あり
室内洗濯機置場
オートロック
洗面所独立
- 入居条件
- 即入居可最新の空室状況が知りたい
- バス・トイレ
- 専用バス、専用トイレ、バストイレ別、シャワー、給湯
- キッチン
- ガスコンロ対応、1口コンロ
- 室内設備
- エアコン、室内洗濯置、フローリング、インターネット対応、クロゼットお部屋の詳しい情報を知りたい
- 部屋の特徴
- バルコニー、角住戸、二階以上写真を送ってほしい
- その他の特徴
- 公営水道、都市ガス、下水
無料で10秒! カンタンお問い合わせ

江戸川区南篠崎町3丁目 3階建 1994年築
敷
6.8万円礼
6.8万円不動産会社からのコメント
室内設備はエアコン・全居室フローリングなど豊富に揃っており、過ごしやすいお部屋になっております。
火災保険料:9100円~ サニタリーパック:46200円 消火剤:6600円 入居応援サポート:16500円
その他
- 駐車/駐輪
- 要確認 / なし駐車可能な車種や台数を知りたい
- 入居時期
- 損保
- 住宅保険: 要
- 保証人代行
- 加入要 費用: 初回保証料:月額総額賃料等の50% 1年毎10,000円もしくは月額2.6%
- その他費用
初期費用を知りたい室内清掃費用:38,500円
鍵交換費用:19,800円
- 情報
情報登録日:2025/12/11
情報更新日:2025/12/11
次回更新予定日:2025/12/22
- 備考
- 契約期間: 2年 自社管理番号: HC1-398800-201-0102
取扱い会社
- 取扱い会社
- ハウスコム東東京株式会社 青砥店条件が近い物件も紹介してほしい
- 免許番号
- 東京都知事(1)第108283号
- 取引態様
- 仲介
- 所在地
- 東京都葛飾区 青戸2丁目2−20 メゾンノア 1階
- 電話番号
- 03-5671-8456
- 定休日
- フルオープン
- 所属団体名
- 公益社団法人首都圏不動産公正取引協議会、公益財団法人日本賃貸住宅管理協会
おすすめ物件 (20件)
賃貸アパート
Harmony Terrace Lumiere

都営新宿線 / 篠崎駅 徒歩10分
新築 / 2階建
東京都江戸川区篠崎町2丁目

7万円 / 管理費4,000円
敷
無料礼
無料1K / 17.41㎡ / 2階
賃貸アパート
ルリアン江戸川

都営新宿線 / 瑞江駅 徒歩16分
築2年 / 3階建
東京都江戸川区江戸川2丁目37-19

7.6万円 / 管理費6,000円
敷
無料礼
11.4万円ワンルーム / 23.81㎡ / 2階
賃貸マンション
スピカ東小岩

京成本線 / 江戸川駅 徒歩7分
新築 / 8階建
東京都江戸川区東小岩3丁目21-10

8.4万円 / 管理費10,000円
敷
8.4万円礼
8.4万円1DK / 25.28㎡ / 6階
賃貸アパート
メリーハイム

都営新宿線 / 篠崎駅 徒歩9分
築34年 / 2階建
東京都江戸川区篠崎町1丁目22-11

家賃カード決済可
6.8万円 / 管理費2,000円
敷
無料礼
無料1DK / 26.1㎡ / 2階
賃貸マンション
江戸川区南篠崎町3丁目 5階建 2004年築

都営新宿線 / 瑞江駅 徒歩3分
築21年 / 5階建
東京都江戸川区南篠崎町3丁目2-15

7万円 / 管理費3,800円
敷
7万円礼
無料1K / 23.48㎡ / 3階
賃貸アパート
江戸川区瑞江 2階建 2004年築
)
都営新宿線 / 瑞江駅 徒歩6分
築21年 / 2階建
東京都江戸川区瑞江2丁目
)
6.7万円 / 管理費4,000円
敷
6.7万円礼
無料1K / 20.4㎡ / 2階
賃貸アパート
ハーモニーテラス西瑞江

都営新宿線 / 瑞江駅 徒歩18分
築7年 / 2階建
東京都江戸川区西瑞江3丁目33-15

6.9万円 / 管理費4,000円
敷
無料礼
無料ワンルーム / 13.44㎡ / 2階
賃貸アパート
Harmony Terrace Lumiere

都営新宿線 / 篠崎駅 徒歩10分
新築 / 2階建
東京都江戸川区篠崎町2丁目

7万円 / 管理費4,000円
敷
無料礼
無料1K / 17.41㎡ / 2階
賃貸アパート
ルリアン江戸川

都営新宿線 / 瑞江駅 徒歩16分
築2年 / 3階建
東京都江戸川区江戸川2丁目37-19

7.6万円 / 管理費6,000円
敷
無料礼
11.4万円ワンルーム / 23.81㎡ / 2階
賃貸マンション
スピカ東小岩

京成本線 / 江戸川駅 徒歩7分
新築 / 8階建
東京都江戸川区東小岩3丁目21-10

8.4万円 / 管理費10,000円
敷
8.4万円礼
8.4万円1DK / 25.28㎡ / 6階
賃貸アパート
メリーハイム

都営新宿線 / 篠崎駅 徒歩9分
築34年 / 2階建
東京都江戸川区篠崎町1丁目22-11

家賃カード決済可
6.8万円 / 管理費2,000円
敷
無料礼
無料1DK / 26.1㎡ / 2階
賃貸マンション
江戸川区南篠崎町3丁目 5階建 2004年築

都営新宿線 / 瑞江駅 徒歩3分
築21年 / 5階建
東京都江戸川区南篠崎町3丁目2-15

7万円 / 管理費3,800円
敷
7万円礼
無料1K / 23.48㎡ / 3階
賃貸アパート
江戸川区瑞江 2階建 2004年築
)
都営新宿線 / 瑞江駅 徒歩6分
築21年 / 2階建
東京都江戸川区瑞江2丁目
)
6.7万円 / 管理費4,000円
敷
6.7万円礼
無料1K / 20.4㎡ / 2階
賃貸アパート
ハーモニーテラス西瑞江

都営新宿線 / 瑞江駅 徒歩18分
築7年 / 2階建
東京都江戸川区西瑞江3丁目33-15

6.9万円 / 管理費4,000円
敷
無料礼
無料ワンルーム / 13.44㎡ / 2階
同じ最寄り駅 × 同じ特徴 で探す
同じ市区町村 × 同じ特徴 で探す

















































)
)