シャルム藤沢1K/1階/102(神奈川県藤沢市 / 善行駅)の賃貸
1/27
1/27
5.4万円
初期費用を知りたい管理費3,000円
- 敷金
- 5.4万円
- 保証金
- なし
- 礼金
- 5.4万円
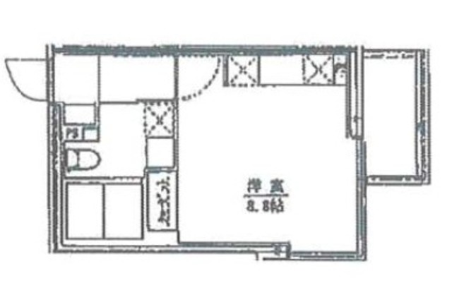
- 広さ
- 20.89㎡
- 階数
- 1階 / 2階建
- 間取り
- 1K
- 建物
- アパート (木造)
- 築年数
- 築13年
- 向き
- 南西
- 交通
- 小田急江ノ島線 / 善行駅バス14分 伊勢山入口下車 徒歩5分
- 小田急江ノ島線 / 藤沢本町駅徒歩7分
- 湘南新宿ライン高海 / 藤沢駅徒歩29分
- 住所
- 神奈川県藤沢市藤沢4丁目14-10
やまか本町店 674m
セブン-イレブン 藤沢4丁目店 699m
クリエイトS・D 鵠沼神明店 1410m
ミスターマックス 湘南藤沢ショッピングセンター 2178m
湘南長寿園病院 1095m
伊勢山緑地 (通称:伊勢山公園) 368m
無料で10秒! カンタンお問い合わせ

シャルム藤沢
敷
5.4万円礼
5.4万円特徴
バス・トイレ別
2階以上
エアコン付き
ペット相談可
駐車場あり
室内洗濯機置場
オートロック
洗面所独立
- 入居条件
- 単身者限定、子供不可、保証人不要最新の空室状況が知りたい
- バス・トイレ
- シャワー、給湯、洗面台、バストイレ別、浴室乾燥機、脱衣所、温水洗浄便座、洗面所独立
- キッチン
- IHクッキングヒーター、2口コンロ
- 室内設備
- CS、インターネット対応、CATV、BS、エアコン、シューズボックス、クロゼット、室内洗濯置、フローリングお部屋の詳しい情報を知りたい
- 部屋の特徴
- バルコニー写真を送ってほしい
- 共用部
- 敷地内ごみ置き場、バイク置場、駐輪場
- その他の特徴
- 駐車場あり、公営水道、下水
無料で10秒! カンタンお問い合わせ

シャルム藤沢
敷
5.4万円礼
5.4万円不動産会社からのコメント
室内清掃費用借主負担(退去時)/HIRO安心サポートPLUS 月額1500円/CATVでBS、CS視聴可(CATV、BS別途契約要、有償)/バイク置場(利用時):125cc以下 月額500円(現在空きなし)/敷地内駐車場(利用時):利用料等借主負担(現在空きなし)/子供不可/家賃エポスカード払い可
その他
- 駐車/駐輪
- 近隣 費用: 9,350円(税込) 距離: 301m / あり駐車可能な車種や台数を知りたい
- 入居時期
- 2025年12月中旬最新の空室状況が知りたい
- 損保
- 住宅保険: 要
- 保証人代行
- 連帯保証人: 不要 保証人代行: 必須 保証人代行会社: その他 月額賃料等の60%(初回保証料)、月額賃料等の1%/月
- その他費用
初期費用を知りたい鍵交換費:27,500円
その他費用(室内抗菌代:0.99万円/他):13,200円
- 情報
情報登録日:2025/11/3
情報更新日:2025/11/25
次回更新予定日:2025/12/13
- 備考
- 契約期間: 2年
取扱い会社
- 取扱い会社
- アエラス藤沢店 (株式会社アエラス)条件が近い物件も紹介してほしい
- 免許番号
- 国土交通大臣(3)第8522号
- 取引態様
- 仲介
- 所在地
- 神奈川県藤沢市南藤沢3-4 MINAMIFUJISAWA LILAS BLD 2階
- 電話番号
- 0466-21-9491
- 営業時間
- 10:00~19:00
- 定休日
- 毎週水曜日
- 所属団体名
- 全日本不動産協会
おすすめ物件 (13件)
賃貸アパート
リブリ・Milk-T Ⅱ

小田急江ノ島線 / 藤沢本町駅 徒歩25分
築8年 / 2階建
神奈川県藤沢市羽鳥3丁目19-39

6.8万円 / 管理費4,000円
敷
無料礼
無料1K / 26.49㎡ / 2階
賃貸アパート
リブリ・LUCIA湘南

小田急江ノ島線 / 藤沢本町駅 徒歩11分
築8年 / 2階建
神奈川県藤沢市本町1丁目8-32

7万円 / 管理費4,000円
敷
無料礼
3.5万円1K / 23.6㎡ / 2階
賃貸マンション
リブリ・オブリガーダ

東海道本線 / 藤沢駅 徒歩12分
築9年 / 3階建
神奈川県藤沢市大鋸2丁目8-10

7.4万円 / 管理費4,000円
敷
無料礼
9.25万円1K / 26.08㎡ / 2階
賃貸マンション
リブリ・FEEL-M湘南Ⅶ

東海道本線 / 藤沢駅 徒歩14分
築9年 / 3階建
神奈川県藤沢市片瀬92-10

7.4万円 / 管理費4,000円
敷
無料礼
3.7万円1K / 26.08㎡ / 3階
賃貸アパート
ソフィスみその台

小田急江ノ島線 / 善行駅 徒歩5分
築18年 / 2階建
神奈川県藤沢市みその台9-16

5.5万円 / 管理費1,000円
敷
5.5万円礼
5.5万円1K / 26.34㎡ / 1階
賃貸マンション
パインリッチ湘南

東海道本線 / 藤沢駅 徒歩22分
築20年 / 5階建
神奈川県藤沢市鵠沼桜が岡3丁目5-1

家賃カード決済可
7.3万円 / 管理費5,000円
敷
7.3万円礼
7.3万円1K / 29.43㎡ / 4階
賃貸アパート
ラ・フェリーチェ西鎌倉

湘南モノレール / 片瀬山駅 徒歩3分
築6年 / 2階建
神奈川県鎌倉市津西1丁目19-8

6.5万円 / 管理費4,000円
敷
6.5万円礼
無料ワンルーム / 21.53㎡ / 1階
賃貸マンション
ライフゾーン藤沢

湘南新宿ライン高海 / 藤沢駅 徒歩5分
築10年 / 14階建
神奈川県藤沢市藤沢545-39

7.3万円 / 管理費10,000円
敷
無料礼
7.3万円ワンルーム / 24㎡ / 2階
賃貸アパート
リブリ・Milk-T Ⅱ

小田急江ノ島線 / 藤沢本町駅 徒歩25分
築8年 / 2階建
神奈川県藤沢市羽鳥3丁目19-39

6.8万円 / 管理費4,000円
敷
無料礼
無料1K / 26.49㎡ / 2階
賃貸アパート
リブリ・LUCIA湘南

小田急江ノ島線 / 藤沢本町駅 徒歩11分
築8年 / 2階建
神奈川県藤沢市本町1丁目8-32

7万円 / 管理費4,000円
敷
無料礼
3.5万円1K / 23.6㎡ / 2階
賃貸マンション
リブリ・オブリガーダ

東海道本線 / 藤沢駅 徒歩12分
築9年 / 3階建
神奈川県藤沢市大鋸2丁目8-10

7.4万円 / 管理費4,000円
敷
無料礼
9.25万円1K / 26.08㎡ / 2階
賃貸マンション
リブリ・FEEL-M湘南Ⅶ

東海道本線 / 藤沢駅 徒歩14分
築9年 / 3階建
神奈川県藤沢市片瀬92-10

7.4万円 / 管理費4,000円
敷
無料礼
3.7万円1K / 26.08㎡ / 3階
賃貸アパート
ソフィスみその台

小田急江ノ島線 / 善行駅 徒歩5分
築18年 / 2階建
神奈川県藤沢市みその台9-16

5.5万円 / 管理費1,000円
敷
5.5万円礼
5.5万円1K / 26.34㎡ / 1階
賃貸マンション
パインリッチ湘南

東海道本線 / 藤沢駅 徒歩22分
築20年 / 5階建
神奈川県藤沢市鵠沼桜が岡3丁目5-1

家賃カード決済可
7.3万円 / 管理費5,000円
敷
7.3万円礼
7.3万円1K / 29.43㎡ / 4階
賃貸アパート
ラ・フェリーチェ西鎌倉

湘南モノレール / 片瀬山駅 徒歩3分
築6年 / 2階建
神奈川県鎌倉市津西1丁目19-8

6.5万円 / 管理費4,000円
敷
6.5万円礼
無料ワンルーム / 21.53㎡ / 1階
賃貸マンション
ライフゾーン藤沢

湘南新宿ライン高海 / 藤沢駅 徒歩5分
築10年 / 14階建
神奈川県藤沢市藤沢545-39

7.3万円 / 管理費10,000円
敷
無料礼
7.3万円ワンルーム / 24㎡ / 2階


































