HYs 綾瀬駅前1K/6階/0604(東京都足立区 / 綾瀬駅)の賃貸
1/29
1/29
9.8万円
初期費用を知りたい管理費12,000円
- 敷金
- 無料
- 保証金
- なし
- 礼金
- 9.8万円
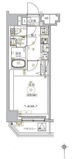
- 広さ
- 25.35㎡
- 階数
- 6階 / 8階建
- 間取り
- 1K
- 建物
- マンション (鉄筋コンクリート)
- 築年数
- 築4年
- 向き
- 北
- 交通
- 常磐線 / 綾瀬駅徒歩2分
- 東武伊勢崎線 / 小菅駅徒歩19分
- つくばエクスプレス / 青井駅徒歩24分
- 住所
- 東京都足立区綾瀬2丁目18-5
東急ストア綾瀬店 255m
ファミリーマート綾瀬二丁目店 63m
薬 マツモトキヨシ 綾瀬駅前店 116m
デコホーム イトーヨーカドー綾瀬店 374m
ゲオ綾瀬店 498m
キッチンオリジン綾瀬店 114m
無料で10秒! カンタンお問い合わせ

HYs 綾瀬駅前
敷
無料礼
9.8万円特徴
バス・トイレ別
2階以上
エアコン付き
ペット相談可
駐車場あり
室内洗濯機置場
オートロック
洗面所独立
- 入居条件
- 事務所不可、ペット相談、敷金不要最新の空室状況が知りたい
- バス・トイレ
- 給湯、洗面台、バストイレ別、浴室乾燥機、脱衣所、温水洗浄便座、洗面所独立
- キッチン
- ガスコンロ対応、2口コンロ、システムキッチン
- セキュリティ
- 防犯カメラ、ダブルロックキー、ディンプルキー、オートロック
- 室内設備
- CS、インターネット対応、BS、ネット使用料不要、エアコン、室内洗濯置お部屋の詳しい情報を知りたい
- 部屋の特徴
- 二階以上、バルコニー写真を送ってほしい
- 共用部
- 宅配ボックス、エレベーター
- その他の特徴
- 駐車場あり、都市ガス、公営水道、下水、火災警報器等設置済み、外壁タイル張り
無料で10秒! カンタンお問い合わせ

HYs 綾瀬駅前
敷
無料礼
9.8万円不動産会社からのコメント
月次費用 naviサポート 990円要 フレックス少額短期保険 18000円(2年)/ペット飼育 猫小型犬1匹まで可飼育時別途敷金1ヶ月/短期解約違約金(1年未満解約の場合賃料の1ヶ月分)/室内清掃費用借主負担
その他
- 駐車/駐輪
- 近隣 費用: 19,800円(税込) 距離: 98m / なし駐車可能な車種や台数を知りたい
- 入居時期
- 2026年1月下旬最新の空室状況が知りたい
- 損保
- 住宅保険: 要
- 保証人代行
- 保証人代行: 必須 保証人代行会社: その他 初回:賃料等の50%~(外国籍の方80%~)、月次保証料:賃料等の1%~
- その他費用
初期費用を知りたい事務手数料:11,000円
鍵交換費:38,500円
- 情報
情報登録日:2025/12/7
情報更新日:2025/12/9
次回更新予定日:2025/12/23
- 備考
- 契約期間: 2年
取扱い会社
- 取扱い会社
- アエラス北千住店 (株式会社アエラス.ER)条件が近い物件も紹介してほしい
- 免許番号
- 国土交通大臣(1)第10724号
- 取引態様
- 仲介
- 所在地
- 東京都足立区千住3丁目75-4 モリヒロビル 3階
- 電話番号
- 03-5284-1070
- 営業時間
- 10:00~19:00
- 定休日
- 毎週水曜日
- 所属団体名
- 全日本不動産協会
おすすめ物件 (15件)
賃貸マンション
クレヴィスタ北綾瀬

つくばエクスプレス / 青井駅 徒歩13分
築8年 / 9階建
東京都足立区綾瀬7丁目19-5

8.9万円 / 管理費11,000円
敷
無料礼
8.9万円1K / 20.52㎡ / 5階
賃貸マンション
葛飾区堀切6丁目 5階建 2023年築

東京メトロ千代田線 / 綾瀬駅 徒歩15分
築2年 / 5階建
東京都葛飾区堀切6丁目

8.4万円 / 管理費10,000円
敷
無料礼
無料1K / 20.53㎡ / 2階
賃貸マンション
アンベリールマーロ北綾瀬II

つくばエクスプレス / 青井駅 徒歩13分
築5年 / 6階建
東京都足立区加平1丁目

8.8万円 / 管理費10,000円
敷
無料礼
無料2K / 25.3㎡ / 4階
賃貸マンション
S-RESIDENCE綾瀬rivie

常磐線 / 綾瀬駅 徒歩3分
築2年 / 12階建
東京都足立区綾瀬3丁目

10.9万円 / 管理費10,000円
敷
無料礼
無料1K / 25.6㎡ / 2階
賃貸マンション
ペアパレス六町2号館

つくばエクスプレス / 青井駅 徒歩11分
築4年 / 6階建
東京都足立区西加平1丁目

7.9万円 / 管理費15,000円
敷
無料礼
無料1DK / 25.37㎡ / 6階
賃貸マンション
足立区綾瀬2丁目 5階建 2024年築

東京メトロ千代田線 / 綾瀬駅 徒歩4分
築1年 / 5階建
東京都足立区綾瀬2丁目

11.6万円 / 管理費10,000円
敷
無料礼
無料1K / 25.25㎡ / 4階
賃貸マンション
足立区足立2丁目 8階建 2025年築

東武伊勢崎線 / 小菅駅 徒歩8分
新築 / 8階建
東京都足立区足立2丁目

8.1万円 / 管理費15,000円
敷
無料礼
無料1K / 25.45㎡ / 6階
賃貸マンション
足立区綾瀬2丁目 11階建 2020年築

東京メトロ千代田線 / 綾瀬駅 徒歩9分
築5年 / 11階建
東京都足立区綾瀬2丁目

9.7万円 / 管理費10,000円
敷
無料礼
無料1K / 26.12㎡ / 8階
賃貸マンション
ベルシード五反野

東武伊勢崎線 / 小菅駅 徒歩10分
築1年 / 7階建
東京都足立区足立3丁目15-4

8.2万円 / 管理費15,000円
敷
無料礼
8.2万円1K / 25.76㎡ / 6階
賃貸マンション
パークヴィラ六町

つくばエクスプレス / 青井駅 徒歩21分
築4年 / 5階建
東京都足立区六町1丁目12-22

8.4万円 / 管理費10,000円
敷
8.4万円礼
8.4万円1K / 27.77㎡ / 4階
賃貸マンション
GENOVIA堀切菖蒲園

京成本線 / 堀切菖蒲園駅 徒歩11分
築2年 / 7階建
東京都葛飾区堀切1丁目25-2

8万円 / 管理費10,000円
敷
無料礼
無料1K / 20.29㎡ / 2階
賃貸マンション
ジェノヴィア綾瀬スカイガーデン

東京メトロ千代田線 / 綾瀬駅 徒歩12分
築4年 / 14階建
東京都葛飾区堀切8丁目1-4

8.9万円 / 管理費10,000円
敷
無料礼
無料1K / 20.73㎡ / 11階
賃貸マンション
クレヴィスタ北綾瀬

つくばエクスプレス / 青井駅 徒歩13分
築8年 / 9階建
東京都足立区綾瀬7丁目19-5

8.9万円 / 管理費11,000円
敷
無料礼
8.9万円1K / 20.52㎡ / 5階
賃貸マンション
葛飾区堀切6丁目 5階建 2023年築

東京メトロ千代田線 / 綾瀬駅 徒歩15分
築2年 / 5階建
東京都葛飾区堀切6丁目

8.4万円 / 管理費10,000円
敷
無料礼
無料1K / 20.53㎡ / 2階
賃貸マンション
アンベリールマーロ北綾瀬II

つくばエクスプレス / 青井駅 徒歩13分
築5年 / 6階建
東京都足立区加平1丁目

8.8万円 / 管理費10,000円
敷
無料礼
無料2K / 25.3㎡ / 4階
賃貸マンション
S-RESIDENCE綾瀬rivie

常磐線 / 綾瀬駅 徒歩3分
築2年 / 12階建
東京都足立区綾瀬3丁目

10.9万円 / 管理費10,000円
敷
無料礼
無料1K / 25.6㎡ / 2階
賃貸マンション
ペアパレス六町2号館

つくばエクスプレス / 青井駅 徒歩11分
築4年 / 6階建
東京都足立区西加平1丁目

7.9万円 / 管理費15,000円
敷
無料礼
無料1DK / 25.37㎡ / 6階
賃貸マンション
足立区綾瀬2丁目 5階建 2024年築

東京メトロ千代田線 / 綾瀬駅 徒歩4分
築1年 / 5階建
東京都足立区綾瀬2丁目

11.6万円 / 管理費10,000円
敷
無料礼
無料1K / 25.25㎡ / 4階
賃貸マンション
足立区足立2丁目 8階建 2025年築

東武伊勢崎線 / 小菅駅 徒歩8分
新築 / 8階建
東京都足立区足立2丁目

8.1万円 / 管理費15,000円
敷
無料礼
無料1K / 25.45㎡ / 6階
賃貸マンション
足立区綾瀬2丁目 11階建 2020年築

東京メトロ千代田線 / 綾瀬駅 徒歩9分
築5年 / 11階建
東京都足立区綾瀬2丁目

9.7万円 / 管理費10,000円
敷
無料礼
無料1K / 26.12㎡ / 8階
賃貸マンション
ベルシード五反野

東武伊勢崎線 / 小菅駅 徒歩10分
築1年 / 7階建
東京都足立区足立3丁目15-4

8.2万円 / 管理費15,000円
敷
無料礼
8.2万円1K / 25.76㎡ / 6階
賃貸マンション
パークヴィラ六町

つくばエクスプレス / 青井駅 徒歩21分
築4年 / 5階建
東京都足立区六町1丁目12-22

8.4万円 / 管理費10,000円
敷
8.4万円礼
8.4万円1K / 27.77㎡ / 4階
賃貸マンション
GENOVIA堀切菖蒲園

京成本線 / 堀切菖蒲園駅 徒歩11分
築2年 / 7階建
東京都葛飾区堀切1丁目25-2

8万円 / 管理費10,000円
敷
無料礼
無料1K / 20.29㎡ / 2階
賃貸マンション
ジェノヴィア綾瀬スカイガーデン

東京メトロ千代田線 / 綾瀬駅 徒歩12分
築4年 / 14階建
東京都葛飾区堀切8丁目1-4

8.9万円 / 管理費10,000円
敷
無料礼
無料1K / 20.73㎡ / 11階


































