グリーンピア森栄2K/2階/202(東京都八王子市 / 高尾駅)の賃貸
1/25
1/25
5万円
初期費用を知りたい管理費2,000円
- 敷金
- 5万円
- 保証金
- なし
- 礼金
- 無料
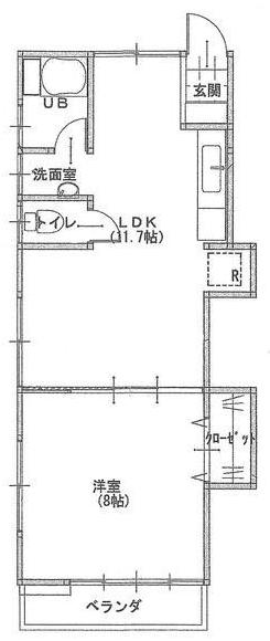
- 広さ
- 34.46㎡
- 階数
- 2階 / 2階建
- 間取り
- 2K
- 建物
- アパート (軽量鉄骨)
- 築年数
- 築36年
- 向き
- 南
- 交通
- 中央線 / 高尾駅徒歩45分
- 中央線 / 西八王子駅徒歩58分
- 京王高尾線 / 狭間駅徒歩59分
- 住所
- 東京都八王子市元八王子町2丁目1372-1
セブンイレブン元八王子店 755m
ドラッグセイムス 元八王子店 566m
スターバックス コーヒー 元八王子店 510m
共立女子大学 八王子キャンパス 1068m
八王子市立城山中学校 1988m
八王子市立城山小学校 889m
無料で10秒! カンタンお問い合わせ

グリーンピア森栄
敷
5万円礼
無料特徴
バス・トイレ別
2階以上
エアコン付き
ペット相談可
駐車場あり
室内洗濯機置場
オートロック
洗面所独立
- 入居条件
- 二人入居相談、子供可、礼金不要、即入居可最新の空室状況が知りたい
- バス・トイレ
- シャワー、バストイレ別、オートバス、追焚機能浴室
- キッチン
- ガスコンロ対応、2口コンロ
- 室内設備
- インターネット対応、エアコン、室内洗濯置お部屋の詳しい情報を知りたい
- 部屋の特徴
- 二階以上、バルコニー写真を送ってほしい
- 共用部
- 敷地内駐車場
- その他の特徴
- 駐車場あり、プロパンガス、公営水道、下水
無料で10秒! カンタンお問い合わせ

グリーンピア森栄
敷
5万円礼
無料同じ建物で掲載中の物件 (1件)
不動産会社からのコメント
☆敷地内に駐車場有り!(要確認)/保険等要2年18、000円/更新料新賃料1ヶ月/入居日・引渡日変更や付帯条件、別途料金等が発生する場合もありますのでご確認ください。/鍵交換代借主負担/室内清掃費用借主負担
その他
- 駐車/駐輪
- 有敷地内 費用: 6,000円(税込) / なし駐車可能な車種や台数を知りたい
- 入居時期
- 損保
- 住宅保険: 要
- 保証人代行
- 保証人代行: 必須 保証人代行会社: その他 賃料等の50~65%
- その他費用
- 情報
情報登録日:2025/9/5
情報更新日:2025/12/14
次回更新予定日:2025/12/26
- 備考
- 鍵交換代借主負担/室内清掃費用借主負担 契約期間: 2年
取扱い会社
- 取扱い会社
- アエラス橋本店 (株式会社アエラス.ER)条件が近い物件も紹介してほしい
- 免許番号
- 国土交通大臣(1)第10724号
- 取引態様
- 仲介
- 所在地
- 神奈川県相模原市緑区橋本3-29-9 フェイスビル 2階
- 電話番号
- 042-703-3881
- 営業時間
- 10:00~19:00
- 定休日
- 毎週水曜日
- 所属団体名
- 全日本不動産協会
おすすめ物件 (6件)
賃貸マンション
メゾンド欅

中央線 / 西八王子駅 徒歩12分
築18年 / 4階建
東京都八王子市散田町4丁目

家賃カード決済可
6.55万円 / 管理費3,500円
敷
無料礼
6.55万円1K / 31.01㎡ / 3階
賃貸マンション
メゾンド欅

中央線 / 西八王子駅 徒歩12分
築18年 / 4階建
東京都八王子市散田町4丁目

家賃カード決済可
6.55万円 / 管理費3,500円
敷
無料礼
6.55万円1K / 31.01㎡ / 3階


































