レオパレスアクアグレイス和光(埼玉県和光市 / 和光市駅) の賃貸物件情報
募集中のお部屋が1件あります
1/9
1/9
- 建物
- アパート (軽量鉄骨)
- 築年数
- 築17年 (2009年)
- 駐車場
- -
- 交通
- 東武東上線 / 和光市駅徒歩11分
- 住所
- 埼玉県和光市新倉2丁目
- スーパーマーケット 469m
その他
- 駐車/駐輪
- -
- 入居時期
- 2026年6月中旬
- 損保
- 住宅保険: 要
- 保証代行人
- -
- その他費用
- -
- 情報
情報登録日:2026/5/13
情報更新日:2026/5/12
次回更新予定日:2026/5/14
- 備考
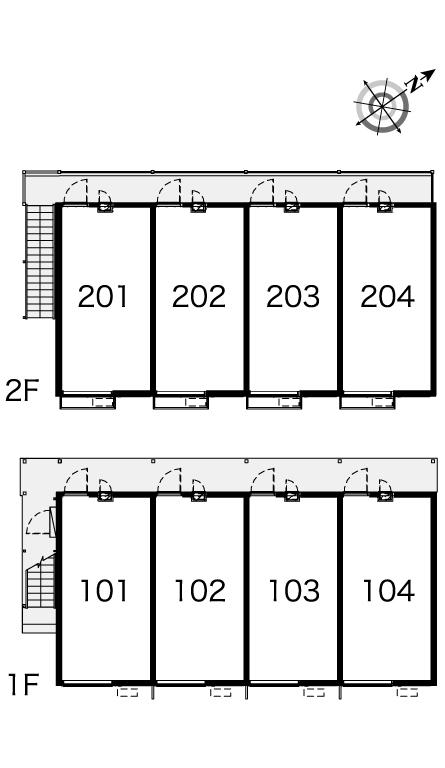
- 現況: 居住中 更新料: 16,500円 契約期間: 2年 総戸数: 8戸 自社管理番号: 39883-203
この建物からのPick Up
1K/2階
1/15
1/15
8.1 万円 / 管理費7,000円
- 敷金
- 無料
- 保証金
- なし
- 礼金
- 8.1万円
- 広さ
- 20.28㎡
- 階数
- 2階 / 2階建
- 間取り
- 1K
- 向き
無料で10秒! カンタンお問い合わせ
レオパレスアクアグレイス和光
敷
無料礼
8.1万円特徴
バス・トイレ別
2階以上
エアコン付き
ペット相談可
駐車場あり
室内洗濯機置場
オートロック
洗面所独立
- バス・トイレ
- 浴室乾燥機、給湯、温水洗浄便座
- キッチン
- 電気コンロ
- 室内設備
- 家具・家電付、エアコン、インターネット対応、室内洗濯置
- 部屋の特徴
- 二階以上、ロフト、最上階
- 共用部
- 駐輪場
無料で10秒! カンタンお問い合わせ
レオパレスアクアグレイス和光
敷
無料礼
8.1万円













