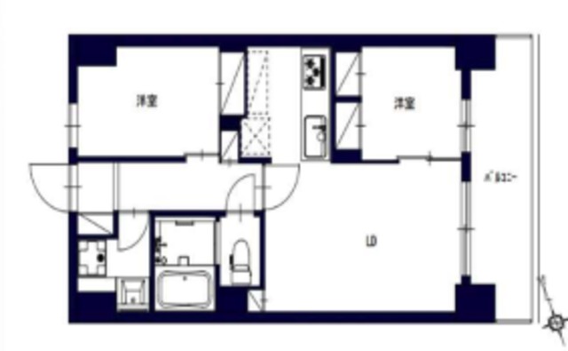
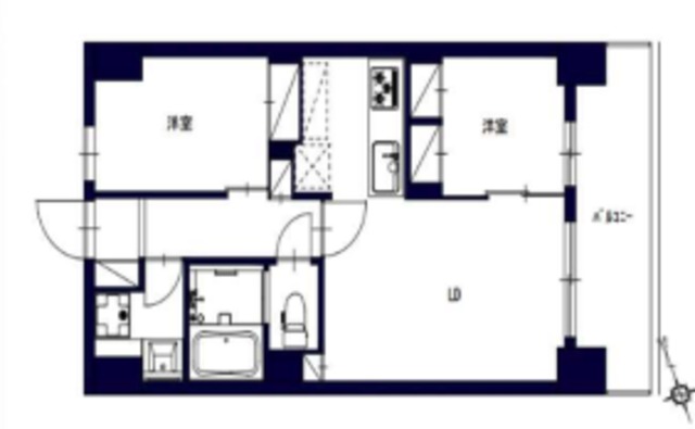
ベルウッド(東京都八王子市 / 高尾駅) の賃貸物件情報
- 建物
- 一戸建て (木造)
- 築年数
- 新築 (1963年)
- 駐車場
- -
- 交通
- 中央線 / 高尾駅徒歩10分
- 京王高尾線 / 狭間駅徒歩10分
- 住所
ベルウッドに似た条件から探す
一戸建て/木造 駅徒歩15分以下
東京都八王子市の新着物件
賃貸マンション
センチュリー八王子ルミエール

京王線 / 京王八王子駅 徒歩5分
新築 / 11階建
東京都八王子市明神町3丁目8-20
賃貸マンション
宮崎ビル

中央線 / 八王子駅 徒歩8分
築28年 / 10階建
東京都八王子市横山町19-2
東京都高尾駅の新着物件
賃貸アパート
レオネクストMaple
中央線 / 高尾駅 徒歩4分
築15年 / 2階建
東京都八王子市初沢町
賃貸マンション
シャルムベルシー

中央線 / 高尾駅 徒歩13分
築36年 / 4階建
東京都八王子市狭間町1782-1















































