アーバンヒルズ(千葉県船橋市 / 新船橋駅) の賃貸物件情報
募集中のお部屋が1件あります
1/11
1/11
- 建物
- アパート (木造)
- 築年数
- 築7年 (2019年)
- 駐車場
- -
- 交通
- 東武野田線 / 新船橋駅徒歩12分
- 東武野田線 / 塚田駅徒歩26分
- 東葉高速鉄道 / 東海神駅徒歩30分
- 住所
- 千葉県船橋市山手2
掲載中の物件(1件)
- セブンイレブン(コンビニ)まで20m
- イオンモール船橋(ショッピングセンター)まで1200m
- ケーヨーデイツー(ホームセンター)まで360m
- 東武ストア(スーパー)まで350m
- 湯楽の里(その他)まで630m
- ひなぎく幼稚園(幼稚園・保育園)まで600m
その他
- 駐車/駐輪
- -
- 入居時期
- 2026年6月下旬
- 損保
- 2.2万円2年
- 保証代行人
- -
- その他費用
- -
- 情報
情報登録日:2026/1/11
情報更新日:2026/5/20
次回更新予定日:2026/6/4
- 備考
- 保証会社: 保証会社利用必 ISLAND Financial Supports 株式会社・株式会社ジャックス 家賃保証会社 初回保証料 賃料等 (下限25,000円)50% 毎月賃料等請求金額の合計1.5% その他:巡回管理 / ほか初期費用: 合計6.16万円(内訳:消毒料1.76万円/鍵交換料4.4万円)
この建物からのPick Up
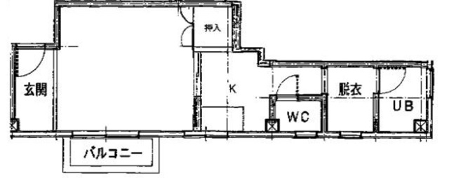
1K/1階
1/20
1/20
6 万円 / 管理費5,000円
- 敷金
- 6万円
- 保証金
- なし
- 礼金
- 無料
- 広さ
- 20.03㎡
- 階数
- 1階 / 2階建
- 間取り
- 1K
- 向き
- 東
無料で10秒! カンタンお問い合わせ
アーバンヒルズ
敷
6万円礼
無料特徴
バス・トイレ別
2階以上
エアコン付き
ペット相談可
駐車場あり
室内洗濯機置場
オートロック
洗面所独立
- バス・トイレ
- 浴室乾燥機、洗面化粧台、バストイレ別、温水洗浄便座、洗面所独立
- キッチン
- 2口コンロ、システムキッチン
- セキュリティ
- 防犯カメラ
- 室内設備
- クロゼット、CATVインターネット、光ファイバー、ネット使用料不要、エアコン、室内洗濯置、フローリング、シューズボックス
- 共用部
- 敷地内ごみ置き場、駐輪場、宅配ボックス
- その他の特徴
- プロパンガス
無料で10秒! カンタンお問い合わせ
アーバンヒルズ
敷
6万円礼
無料)
)
)
)
)
)


)
)


)
)
)
)
)
)
)
)
