スカイコート日本橋第2(東京都中央区 / 水天宮前駅) の賃貸物件情報
募集中のお部屋が1件あります
































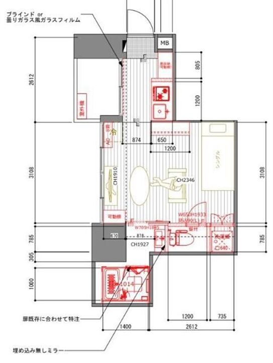
1/16
1/16
- 建物
- マンション (鉄筋コンクリート)
- 築年数
- 築24年 (2002年)
- 駐車場
- 無
- 交通
- 東京メトロ半蔵門線 / 水天宮前駅徒歩3分
- 都営新宿線 / 浜町駅徒歩13分
- 住所
- 東京都中央区日本橋箱崎町19-29
- コンビニエンスストア 63m
- スーパーマーケット 165m
- 総合病院 2265m
- 公園 847m
- ドラッグストア 470m
- 銀行 1015m
- ポニークリーニング水天宮前店 479m
その他
- 駐車/駐輪
- 無
- 入居時期
- 2026年2月中旬
- 損保
- 住宅保険: 要
- 保証代行人
- 加入要 費用: 初回保証料:総賃料の100% 更新時:2万円/年毎
- その他費用
- -
- 情報
情報登録日:2025/9/25
情報更新日:2026/1/27
次回更新予定日:2026/1/30
- 備考
- 現況: 居住中 更新料: 新賃料の1.0ヶ月分 契約期間: 2年 ※定期借家 自社管理番号: B96144R430317
この建物からのPick Up
1K/6階
1/28
1/28
11.3 万円 / 管理費11,000円
- 敷金
- 無料
- 保証金
- なし
- 礼金
- 11.3万円
- 広さ
- 20.23㎡
- 階数
- 6階 / 8階建
- 間取り
- 1K
- 向き
- 南西
無料で10秒! カンタンお問い合わせ

スカイコート日本橋第2
敷
無料礼
11.3万円特徴
バス・トイレ別
2階以上
エアコン付き
ペット相談可
駐車場あり
室内洗濯機置場
オートロック
洗面所独立
- 入居条件
- 保証人不要、初期費用カード決済可
- バス・トイレ
- 専用バス、バストイレ別、専用トイレ、温水洗浄便座
- キッチン
- 2口コンロ、システムキッチン、ガスコンロ対応
- セキュリティ
- オートロック、防犯カメラ
- 室内設備
- クロゼット、家具・家電付、冷蔵庫付、エアコン、インターネット対応、室内洗濯置、フローリング、シューズボックス
- 部屋の特徴
- バルコニー、二階以上
- 共用部
- エレベーター、駐輪場、宅配ボックス
- その他の特徴
- 下水、分譲賃貸、公営水道、定期借家、家賃保証付き、都市ガス
無料で10秒! カンタンお問い合わせ

スカイコート日本橋第2
敷
無料礼
11.3万円おすすめ物件 (10件)
賃貸マンション
グランヴァン水天宮2

東京メトロ半蔵門線 / 水天宮前駅 徒歩2分
築25年 / 10階建
東京都中央区日本橋蛎殻町2丁目6-14

10.7万円 / 管理費5,000円
敷
無料礼
10.7万円1K / 27.63㎡ / 6階
賃貸マンション
フォルティス水天宮前
)
東京メトロ半蔵門線 / 水天宮前駅 徒歩8分
築20年 / 8階建
東京都江東区佐賀2丁目3-4
)
11万円 / 管理費10,000円
敷
無料礼
11万円ワンルーム / 27.28㎡ / 1階
賃貸マンション
エクシム門前仲町

東京メトロ半蔵門線 / 水天宮前駅 徒歩11分
築21年 / 13階建
東京都江東区永代1丁目3-6

9.5万円 / 管理費15,000円
敷
9.5万円礼
9.5万円ワンルーム / 27.09㎡ / 2階
賃貸マンション
ヴェラハイツ日本橋蛎殻町

東京メトロ半蔵門線 / 水天宮前駅 徒歩4分
築43年 / 8階建
東京都中央区日本橋蛎殻町1丁目8-2

10.7万円 / 管理費11,000円
敷
無料礼
10.7万円ワンルーム / 26.9㎡ / 5階
賃貸マンション
アルテシモプリマ
東京メトロ半蔵門線 / 水天宮前駅 徒歩7分
築12年 / 11階建
東京都中央区日本橋中洲7-7
10.7万円 / 管理費20,000円
敷
10.7万円礼
10.7万円1K / 26.46㎡ / 7階
賃貸マンション
RELUXIA新大橋RiverSide(リルシアシンオオハシ
)
都営新宿線 / 浜町駅 徒歩9分
築5年 / 11階建
東京都江東区新大橋1丁目5-11
)
10.2万円 / 管理費20,000円
敷
無料礼
10.2万円1K / 26.23㎡ / 8階
賃貸マンション
メゾンドヴィレ日本橋浜町

都営新宿線 / 浜町駅 徒歩3分
築28年 / 14階建
東京都中央区日本橋浜町2丁目50-4

11万円 / 管理費7,000円
敷
無料礼
11万円1K / 25.56㎡ / 6階
賃貸マンション
スカイコートグランデ清澄白河

東京メトロ半蔵門線 / 水天宮前駅 徒歩10分
築8年 / 7階建
東京都江東区佐賀2丁目10-12

11.3万円 / 管理費7,000円
敷
11.3万円礼
11.3万円1K / 25.45㎡ / 6階
賃貸マンション
グランヴァン水天宮2

東京メトロ半蔵門線 / 水天宮前駅 徒歩2分
築25年 / 10階建
東京都中央区日本橋蛎殻町2丁目6-14

10.7万円 / 管理費5,000円
敷
無料礼
10.7万円1K / 27.63㎡ / 6階
賃貸マンション
フォルティス水天宮前
)
東京メトロ半蔵門線 / 水天宮前駅 徒歩8分
築20年 / 8階建
東京都江東区佐賀2丁目3-4
)
11万円 / 管理費10,000円
敷
無料礼
11万円ワンルーム / 27.28㎡ / 1階
賃貸マンション
エクシム門前仲町

東京メトロ半蔵門線 / 水天宮前駅 徒歩11分
築21年 / 13階建
東京都江東区永代1丁目3-6

9.5万円 / 管理費15,000円
敷
9.5万円礼
9.5万円ワンルーム / 27.09㎡ / 2階
賃貸マンション
ヴェラハイツ日本橋蛎殻町

東京メトロ半蔵門線 / 水天宮前駅 徒歩4分
築43年 / 8階建
東京都中央区日本橋蛎殻町1丁目8-2

10.7万円 / 管理費11,000円
敷
無料礼
10.7万円ワンルーム / 26.9㎡ / 5階
賃貸マンション
アルテシモプリマ
東京メトロ半蔵門線 / 水天宮前駅 徒歩7分
築12年 / 11階建
東京都中央区日本橋中洲7-7
10.7万円 / 管理費20,000円
敷
10.7万円礼
10.7万円1K / 26.46㎡ / 7階
賃貸マンション
RELUXIA新大橋RiverSide(リルシアシンオオハシ
)
都営新宿線 / 浜町駅 徒歩9分
築5年 / 11階建
東京都江東区新大橋1丁目5-11
)
10.2万円 / 管理費20,000円
敷
無料礼
10.2万円1K / 26.23㎡ / 8階
賃貸マンション
メゾンドヴィレ日本橋浜町

都営新宿線 / 浜町駅 徒歩3分
築28年 / 14階建
東京都中央区日本橋浜町2丁目50-4

11万円 / 管理費7,000円
敷
無料礼
11万円1K / 25.56㎡ / 6階
賃貸マンション
スカイコートグランデ清澄白河

東京メトロ半蔵門線 / 水天宮前駅 徒歩10分
築8年 / 7階建
東京都江東区佐賀2丁目10-12

11.3万円 / 管理費7,000円
敷
11.3万円礼
11.3万円1K / 25.45㎡ / 6階
















