コンフォート飯山満(千葉県船橋市 / 飯山満駅) の賃貸物件情報
募集中のお部屋が1件あります




















1/10
1/10
- 建物
- アパート (軽量鉄骨)
- 築年数
- 築38年 (1988年)
- 駐車場
- 空有 費用: 6,600円 税: 税込み
- 交通
- 東葉高速鉄道 / 飯山満駅徒歩14分
- 新京成線 / 前原駅徒歩17分
- 住所
- 千葉県船橋市飯山満町2丁目488-91
掲載中の物件(1件)
その他
- 駐車/駐輪
- 空有 費用: 6,600円 税: 税込み
- 入居時期
- 即
- 損保
- 住宅保険: 要
- 保証代行人
- 加入要 費用: 月額支払合計の50% 月額料:月額支払合計の1.1% 口振手数料:330円/月
- その他費用
- -
- 情報
情報登録日:2026/2/24
情報更新日:2026/3/19
次回更新予定日:2026/3/26
- 備考
- 契約期間: 2年 自社管理番号: HC2-430515-201-0005
この建物からのPick Up
3DK/2階
1/22
1/22
5.2 万円 / 管理費3,000円
- 敷金
- 無料
- 保証金
- なし
- 礼金
- 無料
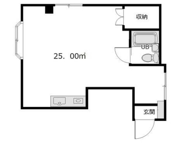
- 広さ
- 55㎡
- 階数
- 2階 / 2階建
- 間取り
- 3DK (洋6.0帖 / 和6.0帖 / 洋6.0帖 / DK6.0帖)
- 向き
- 南西
無料で10秒! カンタンお問い合わせ

コンフォート飯山満
敷
無料礼
無料特徴
バス・トイレ別
2階以上
エアコン付き
ペット相談可
駐車場あり
室内洗濯機置場
オートロック
洗面所独立
- 入居条件
- 即入居可、二人入居可
- バス・トイレ
- 専用バス、給湯、バストイレ別、専用トイレ、シャワー
- キッチン
- ガスコンロ対応
- 室内設備
- CATV、室内洗濯置、フローリング
- 部屋の特徴
- 角住戸、バルコニー、二階以上、最上階
- 共用部
- 敷地内駐車場
- その他の特徴
- 下水、公営水道、駐車場あり、都市ガス
無料で10秒! カンタンお問い合わせ

コンフォート飯山満
敷
無料礼
無料











)
)
)
)
)
)








)
)
)
)
