グローリオシェルト池袋2(東京都豊島区 / 目白駅) の賃貸物件情報
現在この建物の空室物件はありません目白駅のおすすめ物件を見る
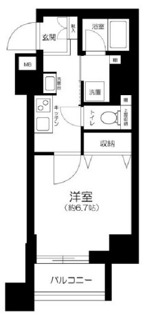
- 建物
- マンション (鉄筋コンクリート)
- 築年数
- 新築 (2024年)
- 駐車場
- -
- 交通
- 山手線 / 目白駅徒歩9分
- 西武池袋線 / 椎名町駅徒歩9分
- 山手線 / 池袋駅徒歩12分
- 山手線 / 池袋駅徒歩12分
- 東京メトロ有楽町線 / 要町駅徒歩16分
- 東京メトロ有楽町線 / 要町駅徒歩16分
- 西武新宿線 / 下落合駅徒歩23分
- 西武新宿線 / 下落合駅徒歩23分
- 住所
グローリオシェルト池袋2に似た条件から探す
マンション/鉄筋コンクリート 築3年以下 駅徒歩10分以下
おすすめ物件 (2件)
東京都豊島区の新着物件
賃貸マンション
レピュア池袋本町レジデンス
)
東武東上線 / 下板橋駅 徒歩7分
築2年 / 5階建
東京都豊島区池袋本町3丁目


)
)
)


)













)
)




)
)




