ルフト(東京都江戸川区 / 新柴又駅) の賃貸物件情報
募集中のお部屋が1件あります






















1/11
1/11
- 建物
- アパート (木造)
- 築年数
- 築3年 (2023年)
- 駐車場
- 空有 費用: 15,400円
- 交通
- 北総線 / 新柴又駅徒歩9分
- 京成本線 / 京成小岩駅徒歩14分
- 住所
- 東京都江戸川区北小岩8丁目
その他
- 駐車/駐輪
- 空有 費用: 15,400円
- 入居時期
- 2026年2月中旬
- 損保
- 住宅保険: 要
- 保証代行人
- 加入要 費用: 契約時保証委託料:2.2万/月額保証委託料:賃料総額の2.2%又は5.5% ※ペット可は2.5万/2.5%
- その他費用
- -
- 情報
情報登録日:2026/1/16
情報更新日:2026/4/15
次回更新予定日:2026/4/28
- 備考
- 現況: 居住中 契約期間: 2年 自社管理番号: 4189352
この建物からのPick Up
1K/1階
1/20
1/20
7.95 万円 / 管理費3,500円
- 敷金
- 無料
- 保証金
- なし
- 礼金
- 11.93万円
- 広さ
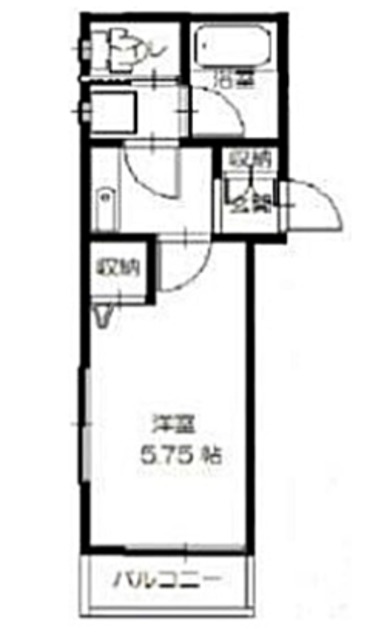
- 26.63㎡
- 階数
- 1階 / 3階建
- 間取り
- 1K
- 向き
無料で10秒! カンタンお問い合わせ

ルフト
敷
無料礼
11.93万円特徴
バス・トイレ別
2階以上
エアコン付き
ペット相談可
駐車場あり
室内洗濯機置場
オートロック
洗面所独立
- バス・トイレ
- 専用バス、追焚機能浴室、浴室乾燥機、給湯、バストイレ別、専用トイレ、シャワー、温水洗浄便座、洗面所独立
- キッチン
- システムキッチン、ガスコンロ対応
- セキュリティ
- オートロック、防犯カメラ
- 室内設備
- BS、照明付、床下収納、ネット使用料不要、エアコン、室内洗濯置、フローリング、CS
- 部屋の特徴
- バルコニー
- 共用部
- 宅配ボックス、敷地内駐車場
- その他の特徴
- 駐車場あり、都市ガス
無料で10秒! カンタンお問い合わせ

ルフト
敷
無料礼
11.93万円










)
)




)
)




