パークアクシス高田馬場テラス(東京都新宿区 / 学習院下駅) の賃貸物件情報
募集中のお部屋が3件あります
1/13
1/13
- 建物
- マンション (鉄筋コンクリート)
- 築年数
- 築13年 (2013年)
- 駐車場
- -
- 交通
- 都電荒川線 / 学習院下駅徒歩6分
- 山手線 / 高田馬場駅徒歩7分
- 都電荒川線 / 面影橋駅徒歩8分
- 住所
- 東京都新宿区高田馬場2
掲載中の物件(3件)
- 新宿区立西戸山幼稚園(幼稚園・保育園)まで1430m
- 新宿区立 西戸山小学校(小学校)まで1140m
- 新宿区立西戸山中学校(中学校)まで1010m
- 海城学園海城高等学校(高校・高専)まで1150m
- ジョナサン 新大久保東店(飲食店)まで1110m
- 松屋 大久保2丁目店(飲食店)まで1160m
その他
- 駐車/駐輪
- -
- 入居時期
- 2026年4月下旬
- 損保
- 要
- 保証代行人
- -
- その他費用
- -
- 情報
情報登録日:2026/2/10
情報更新日:2026/2/15
次回更新予定日:2026/3/2
- 備考
- 契約期間: 普通借家 2年 保証会社: 保証会社利用必 初回保証料/月額総賃料等の50パーセント 2年目以降10000円/年 その他:■退去時室内清掃(クリーニング)費用は借主様負担となります。 ■口座振替事務手数料220円/月 ■ペット飼育時は敷金が1ヶ月積増しになります。 / 条件: ペット相談 / ほか初期費用: 合計3.3万円(内訳:鍵交換費用: 3.3万円) / ほか諸費用: 更新料:新賃料1.0ヵ月、室内清掃費:55000円、口座振替事務手数料: 220円
この建物からのPick Up
1K/1階
1/20
1/20
12.5 万円 / 管理費10,000円
- 敷金
- 12.5万円
- 保証金
- なし
- 礼金
- 12.5万円
- 広さ
- 25.06㎡
- 階数
- 1階 / 6階建
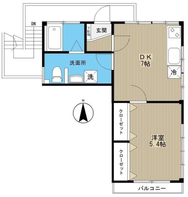
- 間取り
- 1K (洋6.5帖 / K1.9帖)
- 向き
- 東
無料で10秒! カンタンお問い合わせ
パークアクシス高田馬場テラス
敷
12.5万円礼
12.5万円特徴
バス・トイレ別
2階以上
エアコン付き
ペット相談可
駐車場あり
室内洗濯機置場
オートロック
洗面所独立
- 入居条件
- ペット相談、保証人不要、礼金1ヶ月、敷金1ヶ月
- バス・トイレ
- 浴室乾燥機、洗面化粧台、バストイレ別、脱衣所、温水洗浄便座、洗面所独立
- キッチン
- 2口コンロ、システムキッチン、ガスコンロ対応
- セキュリティ
- オートロック
- 室内設備
- BS、クロゼット、光ファイバー、エアコン、室内洗濯置、フローリング、CS、シューズボックス
- 部屋の特徴
- バルコニー
- 共用部
- 敷地内ごみ置き場、エレベーター、駐輪場、宅配ボックス、バイク置場
- その他の特徴
- 保証会社利用可、都市ガス
無料で10秒! カンタンお問い合わせ
パークアクシス高田馬場テラス
敷
12.5万円礼
12.5万円おすすめ物件 (10件)
賃貸マンション
メゾン佐藤

西武新宿線 / 高田馬場駅 徒歩10分
築52年 / 6階建
東京都新宿区高田馬場2丁目

11.5万円 / 管理費5,000円
敷
11.5万円礼
11.5万円1LDK / 40.26㎡ / 4階
賃貸マンション
メゾンサトウ
山手線 / 高田馬場駅 徒歩11分
築52年 / 6階建
東京都新宿区高田馬場3
11.5万円 / 管理費5,000円
敷
11.5万円礼
11.5万円1LDK / 40.26㎡ / 4階
賃貸マンション
豊島区高田1丁目 5階建 1998年築

東京メトロ東西線 / 高田馬場駅 徒歩14分
築28年 / 5階建
東京都豊島区高田1丁目

12万円 / 管理費5,000円
敷
12万円礼
18万円2K / 37.72㎡ / 5階
賃貸マンション
カーサブリランテ

東京メトロ東西線 / 高田馬場駅 徒歩3分
築39年 / 3階建
東京都新宿区高田馬場2丁目14-5

12.5万円 / 管理費15,000円
敷
12.5万円礼
12.5万円2DK / 34.42㎡ / 2階
賃貸マンション
N’sPARKResidence高田馬場

山手線 / 高田馬場駅 徒歩10分
築7年 / 9階建
東京都新宿区下落合1丁目

12.5万円 / 管理費15,000円
敷
12.5万円礼
18.75万円1K / 31.08㎡ / 2階
賃貸マンション
メゾン佐藤

西武新宿線 / 高田馬場駅 徒歩10分
築52年 / 6階建
東京都新宿区高田馬場2丁目

11.5万円 / 管理費5,000円
敷
11.5万円礼
11.5万円1LDK / 40.26㎡ / 4階
賃貸マンション
メゾンサトウ
山手線 / 高田馬場駅 徒歩11分
築52年 / 6階建
東京都新宿区高田馬場3
11.5万円 / 管理費5,000円
敷
11.5万円礼
11.5万円1LDK / 40.26㎡ / 4階
賃貸マンション
豊島区高田1丁目 5階建 1998年築

東京メトロ東西線 / 高田馬場駅 徒歩14分
築28年 / 5階建
東京都豊島区高田1丁目

12万円 / 管理費5,000円
敷
12万円礼
18万円2K / 37.72㎡ / 5階
賃貸マンション
カーサブリランテ

東京メトロ東西線 / 高田馬場駅 徒歩3分
築39年 / 3階建
東京都新宿区高田馬場2丁目14-5

12.5万円 / 管理費15,000円
敷
12.5万円礼
12.5万円2DK / 34.42㎡ / 2階
賃貸マンション
N’sPARKResidence高田馬場

山手線 / 高田馬場駅 徒歩10分
築7年 / 9階建
東京都新宿区下落合1丁目

12.5万円 / 管理費15,000円
敷
12.5万円礼
18.75万円1K / 31.08㎡ / 2階
)
)
)
)


