東武伊勢崎線 谷塚駅 地上5階建て 築10年(埼玉県草加市 / 谷塚駅) の賃貸物件情報
募集中のお部屋が1件あります
1/25
1/25
- 建物
- マンション (鉄骨)
- 築年数
- 築10年 (2016年)
- 駐車場
- -
- 交通
- 東武伊勢崎線 / 谷塚駅徒歩7分
- 東武伊勢崎線 / 竹ノ塚駅徒歩29分
- 東武伊勢崎線 / 草加駅徒歩37分
- 住所
- 埼玉県草加市谷塚1丁目
掲載中の物件(1件)
その他
- 駐車/駐輪
- -
- 入居時期
- 2026年3月下旬
- 損保
- 住宅保険: あり - 1年 10,000円
- 保証代行人
- -
- その他費用
- -
- 情報
情報登録日:2026/3/28
情報更新日:2026/3/26
次回更新予定日:2026/4/10
- 備考
- 更新料 90,000円、鍵交換代 38,500円、室内清掃費用 64,900円、害虫防除 16,500円、安心入居サポート/月 1,100円 賃貸保証料:契約時、月額総賃料の50%、月額総賃料の2%/PH賃貸サポート ※初回保証料:総賃料の50%、月額保証料:総賃料の1% 賃貸戸数 1戸
この建物からのPick Up
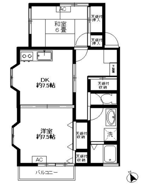
1LDK/2階
1/26
1/26
9 万円 / 管理費5,000円
- 敷金
- 9万円
- 保証金
- なし
- 礼金
- 9万円
- 広さ
- 43.6㎡
- 階数
- 2階 / 5階建
- 間取り
- 1LDK (洋6帖 / LDK10.9帖)
- 向き
- 南
無料で10秒! カンタンお問い合わせ
東武伊勢崎線 谷塚駅 地上5階建て 築10年
敷
9万円礼
9万円特徴
バス・トイレ別
2階以上
エアコン付き
ペット相談可
駐車場あり
室内洗濯機置場
オートロック
洗面所独立
- 入居条件
- ペット相談、ペット相談、保証人不要、二人入居可、二人入居可
- バス・トイレ
- 追焚機能浴室、追焚機能浴室、給湯、バストイレ別、バストイレ別、シャワー付洗面化粧台、シャワー、洗面台、洗面台、温水洗浄便座、温水洗浄便座、シャンプードレッサー
- キッチン
- システムキッチン、システムキッチン、3口以上コンロ、IHクッキングヒーター、IHクッキングヒーター
- セキュリティ
- オートロック、オートロック、24時間セキュリティ、24時間セキュリティ
- 室内設備
- BS、BS、クロゼット、クロゼット、オール電化、CATV、CATV、光ファイバー、ネット使用料不要、エアコン、エアコン、インターネット対応、室内洗濯置、室内洗濯置、フローリング、フローリング、シューズボックス
- 部屋の特徴
- バルコニー、二階以上
- 共用部
- 敷地内ごみ置き場、エレベーター、エレベーター
無料で10秒! カンタンお問い合わせ
東武伊勢崎線 谷塚駅 地上5階建て 築10年
敷
9万円礼
9万円おすすめ物件 (10件)
賃貸アパート
新アネックス

東武伊勢崎線 / 草加駅 バス9分 小山下車 徒歩5分
築14年 / 2階建
埼玉県草加市苗塚町280

8.9万円 / 管理費2,900円
敷
無料礼
8.9万円2LDK / 60.86㎡ / 1階
賃貸物件
ロイヤルメゾン
)
東武伊勢崎線 / 草加駅 バス14分 安行北谷下車 徒歩3分
築37年 / 2階建
埼玉県川口市大字安行北谷581-1
)
7万円 / 管理費2,000円
敷
無料礼
無料3DK / 60.4㎡ / 1階
賃貸アパート
カーサネクスト

東武伊勢崎線 / 草加駅 バス12分 柳島下車 徒歩10分
築21年 / 2階建
埼玉県草加市新里町520番地3

7.9万円 / 管理費2,600円
敷
無料礼
3.95万円2LDK / 58.86㎡ / 2階
賃貸マンション
フォルチュネラメゾン
)
東武伊勢崎線 / 草加駅 徒歩15分
築35年 / 地上3階地下1階建
埼玉県草加市草加5丁目2-7
)
8.3万円 / 管理費5,000円
敷
8.3万円礼
無料3DK / 58㎡ / 1階
賃貸アパート
新アネックス

東武伊勢崎線 / 草加駅 バス9分 小山下車 徒歩5分
築14年 / 2階建
埼玉県草加市苗塚町280

8.9万円 / 管理費2,900円
敷
無料礼
8.9万円2LDK / 60.86㎡ / 1階
賃貸物件
ロイヤルメゾン
)
東武伊勢崎線 / 草加駅 バス14分 安行北谷下車 徒歩3分
築37年 / 2階建
埼玉県川口市大字安行北谷581-1
)
7万円 / 管理費2,000円
敷
無料礼
無料3DK / 60.4㎡ / 1階
賃貸アパート
カーサネクスト

東武伊勢崎線 / 草加駅 バス12分 柳島下車 徒歩10分
築21年 / 2階建
埼玉県草加市新里町520番地3

7.9万円 / 管理費2,600円
敷
無料礼
3.95万円2LDK / 58.86㎡ / 2階
賃貸マンション
フォルチュネラメゾン
)
東武伊勢崎線 / 草加駅 徒歩15分
築35年 / 地上3階地下1階建
埼玉県草加市草加5丁目2-7
)
8.3万円 / 管理費5,000円
敷
8.3万円礼
無料3DK / 58㎡ / 1階


)
)




)
)


