Alivis東瑞江(東京都江戸川区 / 瑞江駅) の賃貸物件情報
募集中のお部屋が5件あります
1/6
1/6
- 建物
- マンション (鉄筋コンクリート)
- 築年数
- 築1年 (2024年)
- 駐車場
- 敷地内22000円
- 交通
- 都営新宿線 / 瑞江駅徒歩8分
- 都営新宿線 / 一之江駅徒歩25分
- 都営新宿線 / 篠崎駅徒歩31分
- 住所
- 東京都江戸川区東瑞江1
掲載中の物件(5件)
- 江戸川区立下鎌田東小学校(小学校)まで444m
- 江戸川区立瑞江第三中学校(中学校)まで422m
- 瑞江ホーム東部認証保育所(幼稚園・保育園)まで294m
- 東京都立篠崎高校(高校・高専)まで2246m
- 市川市役所行徳支所(役所)まで4250m
- 瑞江駅前郵便局(郵便局)まで586m
その他
- 駐車/駐輪
- 敷地内22000円
- 入居時期
- 即
- 損保
- 2.2万円2年
- 保証代行人
- -
- その他費用
- -
- 情報
情報登録日:2025/8/10
情報更新日:2025/12/10
次回更新予定日:2025/12/25
- 備考
- 保証会社: 保証会社利用必 K-net株式会社 家賃保証会社 初回保証料50% 年間保証料12,000円 口座振替手数料/月330円 その他:保証会社K-net株式会社 初回保証料:月額賃料総額の50%、年間保証料:12,000円/年、口座振替手数料:330円(税込)/月 短期解約違約金: 1年未満の解約で賃料・共益費の1ヶ月分 ペット飼育:敷金1ヶ月追加、小型犬、猫どちらか1匹 バイク置き場:敷金1ヶ月 本八幡店 総武・中央緩行線 本八幡駅(徒歩3分) / 条件: ペット相談 / ほか初期費用: 合計17.05万円(内訳:駐輪場初回登録料0.55万円/退去時ハウスクリーニング代8.03万円/退去時鍵交換代3.3万円/退去時エアコンクリーニング代/台1.65万円/消毒料1.76万円/入居安心サービス料1.76万円) / ほか諸費用: バイク置場代3300円
この建物からのPick Up
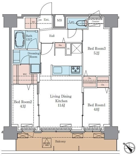
1SLDK/3階
1/15
1/15
18.7 万円 / 管理費12,000円
- 敷金
- 無料
- 保証金
- なし
- 礼金
- 無料
- 広さ
- 51.44㎡
- 階数
- 3階 / 6階建
- 間取り
- 1SLDK
- 向き
- 北東
無料で10秒! カンタンお問い合わせ
Alivis東瑞江
敷
無料礼
無料特徴
バス・トイレ別
2階以上
エアコン付き
ペット相談可
駐車場あり
室内洗濯機置場
オートロック
洗面所独立
- 入居条件
- 即入居可、ペット相談
- バス・トイレ
- 追焚機能浴室、浴室乾燥機、バストイレ別、温水洗浄便座、洗面所独立
- キッチン
- システムキッチン、ガスコンロ対応、3口以上コンロ
- セキュリティ
- ダブルロックキー、ディンプルキー、オートロック、防犯カメラ
- 室内設備
- BS、クロゼット、ネット使用料不要、エアコン、室内洗濯置、フローリング、CS、シューズボックス
- 部屋の特徴
- バルコニー、二階以上
- 共用部
- エレベーター、駐輪場、宅配ボックス、バイク置場
- その他の特徴
- 駐車場あり
無料で10秒! カンタンお問い合わせ
Alivis東瑞江
敷
無料礼
無料おすすめ物件 (10件)
賃貸マンション
愛幸中葛西マンション

都営新宿線 / 一之江駅 バス10分 長島町交差点下車 徒歩7分
築29年 / 5階建
東京都江戸川区中葛西1丁目36-10

16万円 / 管理費12,000円
敷
16万円礼
16万円3LDK / 82.33㎡ / 3階
賃貸マンション
河内屋ビル

都営新宿線 / 一之江駅 徒歩20分
築35年 / 3階建
東京都江戸川区江戸川6丁目36-43

10.5万円 / 管理費なし
敷
10.5万円礼
10.5万円3LDK / 73.55㎡ / 3階
賃貸マンション
ダイアパレス船堀

都営新宿線 / 一之江駅 徒歩24分
築25年 / 5階建
東京都江戸川区東小松川4丁目54-8

18万円 / 管理費9,800円
敷
18万円礼
18万円3LDK / 70.68㎡ / 3階
賃貸物件
DWELLGARDEN

都営新宿線 / 瑞江駅 徒歩13分
築10年 / 2階建
東京都江戸川区南篠崎町1丁目1-13

家賃カード決済可
14.2万円 / 管理費3,000円
敷
14.2万円礼
14.2万円2LDK / 69.56㎡ / 2階
賃貸マンション
愛幸中葛西マンション

都営新宿線 / 一之江駅 バス10分 長島町交差点下車 徒歩7分
築29年 / 5階建
東京都江戸川区中葛西1丁目36-10

16万円 / 管理費12,000円
敷
16万円礼
16万円3LDK / 82.33㎡ / 3階
賃貸マンション
河内屋ビル

都営新宿線 / 一之江駅 徒歩20分
築35年 / 3階建
東京都江戸川区江戸川6丁目36-43

10.5万円 / 管理費なし
敷
10.5万円礼
10.5万円3LDK / 73.55㎡ / 3階
賃貸マンション
ダイアパレス船堀

都営新宿線 / 一之江駅 徒歩24分
築25年 / 5階建
東京都江戸川区東小松川4丁目54-8

18万円 / 管理費9,800円
敷
18万円礼
18万円3LDK / 70.68㎡ / 3階
賃貸物件
DWELLGARDEN

都営新宿線 / 瑞江駅 徒歩13分
築10年 / 2階建
東京都江戸川区南篠崎町1丁目1-13

家賃カード決済可
14.2万円 / 管理費3,000円
敷
14.2万円礼
14.2万円2LDK / 69.56㎡ / 2階











)
)
