アヴェニール(東京都府中市 / 西府駅) の賃貸物件情報
募集中のお部屋が1件あります
1/21
1/21
- 建物
- アパート (軽量鉄骨)
- 築年数
- 築11年 (2015年)
- 駐車場
- 空有 費用: 11,000円 税: 税込み 距離: 0m 空き数: 1
- 住所
- 東京都府中市日新町2丁目6-1
- コンビニエンスストア 2987m
- ドラッグストア 2536m
- フレスポ国立南 2790m
その他
- 駐車/駐輪
- 空有 費用: 11,000円 税: 税込み 距離: 0m 空き数: 1
- 入居時期
- 2026年7月上旬
- 損保
- 住宅保険: 不要
- 保証代行人
- 加入要 会社名: その他 費用: 機関保証加入必須。初回保証料35000円、月額保証料賃料等総額の1%+800円/月(商品あり)
- その他費用
- -
- 情報
情報登録日:2026/5/10
情報更新日:2026/5/11
次回更新予定日:2026/5/18
- 備考
- 現況: 居住中 更新料: 新賃料の1.0ヶ月分 契約期間: 2年
この建物からのPick Up
2LDK/2階
1/30
1/30
11.6 万円 / 管理費6,000円
適用で最大2年間4.8万円割引
本物件のヘヤワリ適用可否については、不動産会社へご確認ください。
- 敷金
- 無料
- 保証金
- なし
- 礼金
- 11.6万円
- 広さ
- 49㎡
- 階数
- 2階 / 2階建
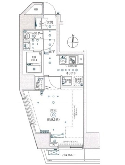
- 間取り
- 2LDK (LDK10.0帖 / 洋6.0帖 / 洋3.0帖)
- 向き
- 南
無料で10秒! カンタンお問い合わせ
アヴェニール
敷
無料礼
11.6万円特徴
バス・トイレ別
2階以上
エアコン付き
ペット相談可
駐車場あり
室内洗濯機置場
オートロック
洗面所独立
- 入居条件
- 初期費用カード決済可、二人入居可
- バス・トイレ
- 専用バス、追焚機能浴室、浴室乾燥機、給湯、バストイレ別、シャワー付洗面化粧台、専用トイレ、シャワー、温水洗浄便座、洗面所独立
- キッチン
- カウンターキッチン、2口コンロ、システムキッチン、IHクッキングヒーター
- セキュリティ
- セキュリティ会社加入済、24時間セキュリティ
- 室内設備
- BS、クロゼット、CATV、ネット使用料不要、エアコン、インターネット対応、室内洗濯置、冷房、フローリング、シューズボックス
- 部屋の特徴
- 角住戸、バルコニー、二階以上、最上階
- 共用部
- 駐輪場、敷地内駐車場
- その他の特徴
- 公営水道、駐車場あり、都市ガス
無料で10秒! カンタンお問い合わせ
アヴェニール
敷
無料礼
11.6万円







)
)
)
)
)
)




)
)
