川越線 指扇駅 地上2階建て 築3年(埼玉県上尾市 / 指扇駅) の賃貸物件情報
募集中のお部屋が1件あります
1/30
1/30
- 建物
- 一戸建て (木造)
- 築年数
- 築3年 (2023年)
- 駐車場
- あり 無料
- 交通
- 川越線 / 指扇駅徒歩50分
- 高崎線 / 上尾駅徒歩62分
- 川越線 / 西大宮駅徒歩68分
- 住所
- 埼玉県上尾市大字平方
掲載中の物件(1件)
その他
- 駐車/駐輪
- あり 無料
- 入居時期
- 相談
- 損保
- 住宅保険: あり - 2年 22,000円
- 保証代行人
- -
- その他費用
- -
- 情報
情報登録日:2026/3/23
情報更新日:2026/4/13
次回更新予定日:2026/4/28
- 備考
- 更新料 153,000円、鍵交換代 49,500円、安心入居サポート 16,500円、保証委託料 76,500円、消火剤代 7,480円 賃貸保証料:初回保証料:月額賃料等総額の50%。継続保証料:月額1,000円お家賃のお支払いについて口座振替のみとなります。 掲載物件以外にも多数ご紹介出来ます♪当店ならオンライン接客・内見可能です!メールでのお問い合わせの際は、電話番号も記載頂きますとスムーズに御対応できます♪★タウンハウジングはLINE&チャット対応でお手軽にスムーズな物件探しが可能★掲載しきれない他の写真もLINEでお届けできます★土日祝日対応★
この建物からのPick Up
4LDK/1階
1/31
1/31
15.3 万円 / 管理費なし
- 敷金
- 無料
- 保証金
- なし
- 礼金
- 無料
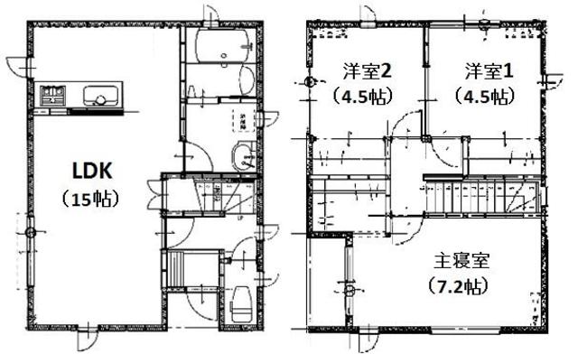
- 広さ
- 99.36㎡
- 階数
- 1階 / 2階建
- 間取り
- 4LDK
- 向き
- 南西
無料で10秒! カンタンお問い合わせ
川越線 指扇駅 地上2階建て 築3年
敷
無料礼
無料特徴
バス・トイレ別
2階以上
エアコン付き
ペット相談可
駐車場あり
室内洗濯機置場
オートロック
洗面所独立
- 入居条件
- ペット相談、ペット相談、保証人不要、二人入居可、二人入居可
- バス・トイレ
- 追焚機能浴室、追焚機能浴室、浴室乾燥機、浴室乾燥機、バストイレ別、バストイレ別、温水洗浄便座、温水洗浄便座
- キッチン
- システムキッチン、システムキッチン
- 室内設備
- エアコン、エアコン、インターネット対応、室内洗濯置、室内洗濯置、フローリング、フローリング、シューズボックス
- 部屋の特徴
- バルコニー
- その他の特徴
- 駐車2台以上、駐車場あり、駐車場2台分
無料で10秒! カンタンお問い合わせ
川越線 指扇駅 地上2階建て 築3年
敷
無料礼
無料おすすめ物件 (10件)
賃貸マンション
パストラルピア
京浜東北線 / 大宮駅 バス20分 県営住宅前下車 徒歩5分
築17年 / 4階建
埼玉県さいたま市西区三橋6
11.2万円 / 管理費5,000円
敷
無料礼
16.8万円4LDK / 84.3㎡ / 1階
賃貸アパート
グレースメゾン
)
京浜東北線 / 大宮駅 バス15分 馬宮コミュニティセンター下車 徒歩4分
築14年 / 2階建
埼玉県さいたま市西区大字西遊馬162-1
)
9.2万円 / 管理費5,000円
敷
無料礼
9.2万円2SLDK / 73.76㎡ / 2階
賃貸マンション
パストラルピア
京浜東北線 / 大宮駅 バス20分 県営住宅前下車 徒歩5分
築17年 / 4階建
埼玉県さいたま市西区三橋6
11.2万円 / 管理費5,000円
敷
無料礼
16.8万円4LDK / 84.3㎡ / 1階
賃貸アパート
グレースメゾン
)
京浜東北線 / 大宮駅 バス15分 馬宮コミュニティセンター下車 徒歩4分
築14年 / 2階建
埼玉県さいたま市西区大字西遊馬162-1
)
9.2万円 / 管理費5,000円
敷
無料礼
9.2万円2SLDK / 73.76㎡ / 2階




)
)






)
)
)
)
