3万円以下
15万円
100万円以上
うしおマンション
AFFABILEMIDORI
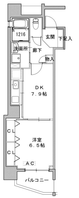
MARIOTERRACE平野町
クシティガルバビル
リバーフォレスト河原町
ウイング広瀬1
セントヒルズ上幟町
ディアメゾン御幸橋
コーポ西縮景園
クリスタルビル